Desain Rumah 4 Kamar Tidur 1 Mushola - Rumah merupakan tempat untuk berlindung dari panas dan hujan, tetapi rumah tidak akan terasa tenang dan damai jika kita tidak menambahkan satu ruangan untuk ibadah yaitu mushola.
Jika kamu berniat untuk membangun rumah untuk keluarga besar dengan 4 kamar tidur, maka kamu juga tidak boleh melupakan satu ruangan khusus untuk tempat ibadah yaitu mushola jika kamu seorang muslim.
Ketika kamu ingin mencari Desain Rumah 4 Kamar Tidur 1 Mushola, dan masih bingung seperti apa contoh desain denah rumah dengan model seperti ini. Kami disini akan memberikan beberapa referensi ide dan inspirasi Desain Rumah 4 Kamar Tidur 1 Mushola terbaik untuk ditiru.
1. Mushola di Rumah Berukuran Kecil

Pada desain rumah yang pertama ini, memanglah tidak ada ruangan yang digambarkan untuk dijadikan sebuah mushola. Tetapi dengan kelebihan tanah di halaman belakang denah rumah ini kamu bisa membuat sebuah mushola kecil.
Jadi kamu perlu merenovasi bagian belakang rumah ini dengan menambahkan bangunan sederhana bisa terbuat dari kayu agar terlihat minimalis, apalagi mushola dihalaman belakangnya kamu buat dengan desain terbuka. Maka akan membuat suasana ibadah lebih sejuk dan tenang.
Untuk melengkapi suasana ibadah yang khusyu kamu juga bisa menambahkan beberapa pepohonan di halaman belakang ataupun kolam ikan kecil dengan suara air yang gemricik.
2. Mushola di Rumah Melebar

Untuk referensi kedua masih dengan denah rumah dengan 3 kamar tidur, kamu dapat melihat pada gambar denah ini ada ruangan yang dikhuskan sebagai tempat jemuran. Sebagai alternatif kamu bisa menggantikan fungsi dari tempat jemuran ini sebagai ruangan khusus untuk ibadah atau sebagai mushola.
Jadi dengan gambaran denah rumah dengan pembagian ruangan seperti ini, kamu masih bisa menambahkan sebuah mushola di dalam rumah yang bisa didekorasi dengan indah dengan dekorasi yang bernuansa islami.
3. Mushola di Sudut Rumah

Untuk referensi membangun mushola di dalam rumah, kamu bisa melihat pada denah rumah berikut ini. Pada denah rumah ketiga ini sebenarnya juga tidak ada keterangan untuk ruangan sebagai mushola. Tapi kamu bisa menggantikan ruangan tidur pembantu untuk diganti sebagai ruangan untuk mushola.
Untuk denah desain rumah yang satu ini juga sebenarnya memiliki lantai 2, jadi untuk 2 kamar lainnya bisa kamu tempatkan di lantai 2. Atau mungkin kamu bisa menambahkan mushola di lantai 2nya.
4. Mushola di Rumah Dengan Ruangan Terbuka

Selanjutnya adalah contoh desain Mushola di Rumah Dengan Ruangan Terbuka, pada desain rumah di bawah ini tidak ada keterangan ruangan untuk dijadikan sebagai mushola. Tapi kita juga bisa melihat ada ruangan di dalam rumah yang digunakan sebagai taman terbuka.
Di area ruangan taman terbuka ini kamu bisa menggantikan ruangan ini sebagai mushola di ruangan terbuka. Untuk bagian atap mushola ini bisa kamu tambahkan atap rumah yang transparan. Sehingga cahaya ketika siang hari bisa masuk ke dalam ruangan ini. Dan ketika malam hari nuansa ibadah di ruangan ini juga akan lebih khusyu.
5. Desain Rumah Dengan Mushola Tampak Depan

Setelah beberapa gambaran tentang denah rumah dengan mushola di dalam rumah. Kami disini memberikan gambaran desain rumah tampak bagian depan dengan nuansa putih bersih. Pada desain rumah satu ini nampak jelas memiliki banyak ruangan termasuk 4 kamar dan 1 mushola di dalamnya.
Kamu bisa mendapatkan gambaran bagian dalam dari 4 contoh desain yang kami sajikan diatas. Kamu bisa menambahkan ruangan sebagai mushola di lantai 1 ataupun di lantai 2.
6. Desain Mushola di Rumah Sederhana

Pada contoh desain mushola selanjutnya ini bisa kamu lihat dari beberapa contoh denah rumah yang kami sajikan di bawah ini. Kamu dalam memilih beberapa ruangan pada denah di bawah ini untuk dijadikan ruangan sebagai tempat ibadah.
7. Rumah Split Level dengan Mushola Di Dalamnya

Berikut ini ada sebuah contoh desain rumah yang unik. Dengan desain rumah split level seperti yang digambarkan di bawah ini. Kamu bisa menambahkan mushola di dalam rumah. Kamu bisa melihat desain yang ada pada rumah tampak depan ini dengan ornamen yang islami.
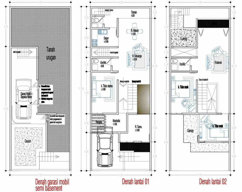
8. Rumah 3 Lantai Dengan Mushola

Untuk desain rumah selanjutnya adalah desain rumah dengan 3 lantai yang di dalamnya terdapat sebuah mushola. Pada area besment kamu bisa menambahkan ruangan untuk garasi mobil.
Untuk lantai satunya setelah naik tangga terdapat sebuah mushola yang berjejeran dengan ruang tamu. Di lantai 1 ini juga terdapat 1 kamar tidur, 1 kamar mandi, dapur, ruang keluarga, ruang makan dan taman. Ketika naik ke lantai 3 disini juga teradpat 2 kamar tidur anak, 1 kamar tidur tamu ada juga ruangan untuk menonton tv.
9. Sudut Rumah Untuk Dijadikan Mushola

Selanjtunya di urutan ke sembilan ini ada referensi terbaik untuk kamu yang ingin membangun rumah dan ditambah ruangan untuk dijadikan mushola. Pada desain rumah di bawah ini kamu dapat melihat rumah ini memiliki 3 kamar tidur, 3 kamar mandi, dapur, ruang makan, ruang tamu, ruang cuci pakaian dan satu ruang lagi pada nomor 3 yang dijadikan sebagai ruang bersantai.
Nah di ruangan nomor 3 ini, kamu bisa alih fungsikan sebagai ruangan untuk ibadah atau mushola. Jadi dengan desain rumah seperti ini kamu bisa memiliki sebuah mushola dibagian sudut rumah.
10. Mushola di Halaman Belakang Rumah

Selanjutnya ada lagi sebuah desain denah rumah yang memiliki banyak kamar. Sama dengan desain-desain sebelumnya. Pada contoh desain rumah satu ini memang sebenarnya tidak ada ruangan yang digambarkan khusus untuk dijadikan sebuah mushola di dalam rumah.
Tapi jika kita melihat secara seksama dengan gamaran desain denah rumah seperti ini, kita masih bisa menambahkan ruangan khusus untuk mushola dibagian teras dan teman belakang rumah. Jadi ini adalah pilihan terbaik untuk kamu yang ingin menerapkan desain rumah seperti pada denah ini.
11. Jika kamu lihat pada desain rumah berikut ini, kamu juga masih bisa mengganti ruangan untuk tempat setrika baju dekat taman di bagian kanan untuk dijadikan sebagai mushola

12. Untuk denah rumah berukuran 11 meter x 20 meter hook kamu dapat melihat ada ruangan khusus untuk dijadikan sebagai mushola

13. Selanjutnya adalah contoh desain rumah dengan mushola di dalamnya dengan 3 kamar tidur dan 1 lantai

14. Ini adalah contoh gambaran desain rumah yang memiliki 4 kamar tidur dan 1 mushola

15. Sudut rumah pada denah rumah selanjutnya juga sangat tepat untuk dijadikan sebagai mushola

16. Pada salah satu ruangan di denah rumah ini bisa kamu ganti untuk dijadikan sebuah mushola

17. Dengan ukuran 7x15 dengan 2 lantai, kamu juga bisa menambahkan ruangan untuk dijadikan mushola di dalamnya

18. Di ruangan halaman belakang rumah yang masih lapang ini bisa kamu renovasi sebagai mushola

19. Desain ini juga telah memberikan gambaran ruangan khusus untuk dibuat sebagai mushola

20. Masih sama dengan desain denah rumah lainnya, kamu di denah rumah seperti ini bisa memanfaatkan bagian halaman belakang rumah untuk dijadikan mushola

21. Ini adalah tampilan tampak depan yang minimalis untuk rumah dengan 4 kamar dan di dalamnya ada ruangan khusus untuk dijadikan tempat ibadah

22. Ini adalah contoh desain rumah yang menempatkan mushola di ruangan tenah

23. Alternatif lainnya juga kamu dapatkan untuk menambahkan mushola di ruangan yang dijadikan teras belakang rumah atau dibagian taman

24. Denah rumah selanjutnya ini juga memiliki alternatif untuk dijadikan mushola, kamu bisa mengganti ruang tempat cuci, gudang atau dress room

25. Menempatkan mushola di halaman belakang rumah diterapkan pada contoh denah rumah satu ini

26. Desain rumah satu ini juga bisa kamu rubah sedikit bagian taman untuk dijadikan mushola

27. Masih dengan desain rumah berukuran kecil yang dihalaman belakang rumah kamu renovasi untuk dijadikan mushola

28. Kamu bisa menambahkan mushola menggantikan fungsi ruangan makan

29. Ruang cuci pakaian pada denah ini cocok untuk diganti menjadi mushola loh

30. Untuk denah terakhir ini mushola ditempatkan di paling belakang

