Desain Rumah 2 Lantai 6 x 10 - Bagi kamu yang sedang mencari atau ingin membuat rumah 2 lantai dengan ukuran 6 x 10 maka kali ini kita akan memeberikan beberapa desain tersebut.
Rumah dengan ukuran 6 x10 meter tergolong luas serta bisa menampung beberapa orang, apalagi jika kita mebuatnya menjadi 2 lantai.
1. Desain Rumah yang Kecil Namun Elegan

Desain ini menghadirkan taman yang ada disetiap lantainya. Pada bagain atapnya menggunakan genteng yang berbahan beton sehingga terlihat tampilannya lebih eksklusif dan elegan.
Kunci utama yang terletak pada desian rumah ini yaitu denagn memaksimalkan runagan sehingga bisa membuat nyaman dan betah bagi para penghuninya.
Dengan menggunakan konsep minimalis namun elegan, rumah ini mempunyai dinding yang terbuat dari batu alam, atap beton flat dan untuk memberikan penerangan pada malam hari maka kita bisa memberikan lampu tempel pada dinding pada lantai duanya.
Bagian atapnya menggunakan atap beton yang bisa memantulkan panas, dan berpengaruh pada suhu ruangan yang tidak panas dan terasa sejuk.
Terdapat taman yang berada di lantai 1 maupun lantai 2 rumah ini. Hal tersebut akan memberikan kesejukan dalam rumah. Banyaknya jendela yang menanjang juga bisa digunakan sebagai temapt untuk ventilasi udara.
Konsep lantai 1 dari rumah ini yaitu terdapat taman depan rumah yang hijau, serta lantai terasnya yang terbuat dari granit. Sehingga kita tidak perlu khawatir orang tua akan jatuh terpeleset karena licin.
Selain itu pada lntai 1 juga terdapat kamar mandi serta dapur, dengan tangga keatas yang digunakan untuk akses kelantai duanya. Jadi desain dpaur ini letaknya dibawah tangga dengan memanfaatkan setiap sudut ruangan.
Untuk lantai 2 penggunaannya banyak dmanfaatkan untuk privasi bagi pemilik rumah. Ada 2 kamar yang dipakai sebagai kamar utama dan kamar anak ayang ada pada bagian depan yang berhadapan langsung dengan balkon yang ada di lantai 2.
Selain itu lantai 2 nya juga dilengkapi dengan jendela yang berbentuk panjang sebagai tempat untuk masuknya cahaya dan udara. Oleh karena itu menjadikan ruangan ini menjadi semakin nyaman.
Untuk ruang keluarganya ada di bagian tengah, terdapat juga mushola dilengkapi dengan jendela kecil dan kamar mandi yang ada dibagian belakang.
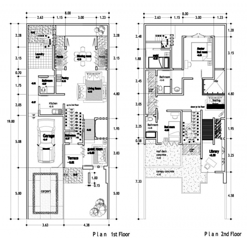
Dibawah ini merupakan detail denah lantai 1 yang lebih rinci :
Utnuk bagian depannya terdapat area untuk carport dengan ukuran 4,9 x 3 m, terdapat juga taman kecil dengan ukuran 3 x 1 m yang berdampingan langsung dengan teras yang berukuran 3 x 4,9 m.
Bagian yang digunakan untuk ruang tamu ukurannya cukup luas dibandingkan dengan ruangan lain yaitu 4 x 3 m, terdapat juga kamar tamu yang ada di belakang carport dengan ukuran 3 x 3 m, kamar mandi kecil yang ada di belakang dengan ukuran 1,6 x 1,6 m, dan dapur 3 x 1,5 m.
Berikutnya yaitu untuk detail pada lantai 2 ;
Detail yang ada di lantai 2 banyak dimanfaatkan untuk runagn privasi bagi penghuninya. Pada lantai ini terdapat 2 kamar tidur dengan ukuran 3 x 3 m,pada bagain depannya terdapat balkon dengan ukuran 1,9 x 6 m yang digunakan untuk taman mini.
Sehingga dengan atap yang kosong maka kita bebas untuk mendesain taman yang hijau sesuai dengan ide kreatif yang kita miliki, bisa juga dengan menanam sayuran organik.
Selain itu ada juga mushola kecil denagn ukuran 2 x2 m, ruang keluarga yang menggunkan konsep terbuka, kamar mandi kecil yang mempunyai ukuran 1,6 x 1,6 m.
2. Desain Dengan Halaman Luas

Bagi kamu yang saat ini gemar mengoleksi tanaman hias, desain rumah yang satu ini cocok bagi kamu.
Terdapat area depan rumah yang cukup luas dan bisa dimanfaatkan untuk menanam berbagai jenis tanaman.
Rumah ini juga cukup fungsional karena mempunyai buah kamar tidur yang berukuran sedang, ruang keluarga, kamar mandi dan dapur.
Pada area yang ada di belakang rumah kita juga bisa membuat taman kecil. Nantinya halaman belakang rumah ini bisa dijadikan tempat untuk menjemur pakaian.
3. Dengan Dapur Terbuka

Apabila kamu mempunyai impian untuk memiliki dapur terbuka pada sebuah hunian, maka kamu bisa mencontoh model dapur terbuka ini.
Penempatan dapur yang ada diluar rumah menjadikan ruangan yang ada didalam rumah terkesan menjadi lebih luas.
Rumah ini juga memuat ruang keluarga dengan rung makan yang menjadi lebih luas karena menghilangkan sekat yang membatasinya.
Sebelum kita menggunakan mengeksekusi dapaur terbuka ini pastikan kamu mempunyai konsep yang matang dan kita juga harus mengetahui apa saja yang dibutuhkan jika kita memilih dapur terbuka.
4. Ruang Tamu Terpisah

Pada desain kali ini keberadaan ruang tamu terpisah dengan ruang keluarga. Kali ini kita juga akan menempatkan ukuran ruang keluarga dan dapur dengan ukuran ynag lebih luas.
Desain ini juga terdiri atas 4 buah kamar tidur yang cocok ditempati oleh keluarga baru ataupun yang sudah meiliki 1 atau 2 orang anak.
Keberadaan belakang rumah juga membuat tampilan rumah terlihat lebih asri dan sejuk. Sedangkan untuk ruang tamu dan ruang makan tempatnya tidak terpisah menggunakan sekat. Hal ini dimaksudkan agar runagn tampak lebh luas.
Untuk lantai 2 terdapat balkon kecil yang bisa kita gunakan untuk menikmati suasana sore bersama keluarga sambil menikmati pemandangan sekitar rumah.
5. Desain dengan 3 Kamar

Untuk desain selanjutnya yaitu mempunayi 3 buah kamar tidur. Dengan satu kamar tidur utama dan 2 kamar tidur anak.
Bagian depannya terdiri dari taman dan carport. Utnuk taman ini juga terdapat dielakang rumah yang bisa kita manfaatkan sebagi tempat untuk menjemur pakaian.
6. Desain deangan 4 Kamar Tidur

Desain ini memiliki 4 kamar tidur. 3 kamar tidur terletak di lantai 1 dan 1 kamar tidur yang letaknya dilantai 2.
Untuk halaman depannya terdiri atas carport dan taman yang cukup luas. Untuk membuat tampilan rumah semakin asri maka pada taman kita letakkan pohon-pohon dan tanaman kecil yang menarik.
7. Desain Rumah 2 Lantai 6x10 ini sangat simple tapi tetap terjaga keamanannya karena dikelilingi tembok dan pagar depan rumah

8. Untuk desain ini juga tidak kalah menarik, karena memiliki carport yang memiliki desain yang unik

9. Selanjutnya ada denah rumah 2 lantai yang cocok diterapkan pada Desain Rumah 2 Lantai 6x10

10. Ada desain lengkap yang bisa kamu terapkan dalam membangun Rumah 2 Lantai 6x10

11. Untuk rumah dua lantai kamu bisa terinspirasi dari contoh ini

12. Untuk foto Desain Rumah 2 Lantai 6x10 juga bisa menginspirasi kamu dalam membangun rumah tampak depan yang lengkap dengan contoh denah rumahnya

13. Untuk konsep selanjutnya ini tampak sangat sederhana tapi tetap modern

14. Kamu bisa mendapatkan inspirasi untuk rumah 2 lantai dengan luas tanah 6x10 seperti gambar berikut

15. Untuk penggambaran posisi ruangan denah rumah bisa kamu dapatkan inspirasinya dari gambar berikut

16. Ini adalah contoh tampak depan Desain Rumah 2 Lantai 6x10 yang minimalis

17. Desain Rumah 2 Lantai 6x10 berikut ini cocok untuk rumah 2 lantai

18. Ini adalah contoh denah Desain Rumah 2 Lantai 6x10 2 lantai lainnya

19. Walaupun dengan luas tanah terbatas kamu masih bisa membuat Desain Rumah 2 Lantai 6x10 yang minimalis seperti ini

20. Untuk denahnya bisa kamu terapkan seperti contoh denah Desain Rumah 2 Lantai 6x10 iini

21. Atau pilihan lain untuk denah Desain Rumah 2 Lantai 6x10 seperti ini

22. Untuk denah 1 lantainya seperti ini untuk ukuran 6x10 meter

23. Ini adalah contoh denah rumah 6x10 meter ukuran kecil

24. Contoh denah Desain Rumah 2 Lantai 6x10 sederhana seperti ini

25. Atau kamu juga dapat inspirasi dari contoh Desain Rumah 2 Lantai 6x10 2 lantai ini

26. Terakhir adalah inspirasi untuk contoh denah Desain Rumah 2 Lantai 6x10 1 lantai

Itulah beberapa desain rumah 2 lanti ukuran 6 x 10 m yang bisa dijadikan inspirasi. Untuk menambah referensi lain lagi maka kamu bisa mendapatkan desain tersebut di internet.
Setelah itu agar hasilnya memuaskan kita juga bisa menggunakan jasa yang ahli dalam mendesain rumah.
Intinya adalah saat kita memiliki sebuah rumah, maka jadikan rumah itu tempat yang nyaman bagi keluarga. Buatlah rumah terlihat menarik sehingga membuat betah keluarga.
Untuk melakukan hal tersebut kita bisa berkreasi sendiri untuk bagian interior atau eksteriornya. Semoga ulasan mengenai rumah 2 lantai dengan ukuran 6 x 10 ini bisa bemanfaat.
