Desain Rumah 10 x 15 - Desain rumah 10 x 15 tentunya sangat beragam. Kitapun bisa lebih leluasa untuk mengatur ukuran ruangan yang dibutuhkan. Selain itu kita juga bisa membangun rumah diatas lahan ini tidak hanya dengan 1 lantai saja, tetapi bisa dengan 2 lantai.
Untuk desainnya sendiri, bisa kita cari referensinya di internet. Kita akan temukan ada banyak sekali konsep desain rumah 10 x 15. Tentu semua ini disesuaikan dengan keinginan dari yang akan membangun rumah. Disini kami juga akan memberikan beberapa desain rumah 10 x 15.
1. Desain Rumah 10 x 15 1 lantai, dengan 4 kamar tidur

Untuk kamu yang mempunyai rumah diatas lahan 10 x 15 maka bisa memiliki kamar dengan 4 kamar, tetapi kamar tersebut berukuran tidak terlalu besar. Jika ingin memperbesar ukuran kamar maka kita bisa mengurangi jumlah kamar menjadi 3 ruangan saja. Walaupun begitu kita tetap masih mempunyai ruangan -ruangan lain dengan ukuran yang cukup nyaman untuk keluarga.
2. Desain 2 lantai dengan 4 kamar tidur

Untuk desain dengan menggunakan 2 lantai ini, kita bisa lebih leluasa untuk memiliki 4 kamar tidur dengan ukuran yang cukup nyaman. Sebenarya kita bisa saja untuk memiliki 5 buah kamar tidur, akan tetapi ukuran tiap kamar menjadi lebih kecil sehingga membuat kita kurang nyaman. Untuk lantai 1 terdapat 2 kamar tidur, sedangkan lantai 2 juga terdapat 2 kamar tidur. Dilantai atas juga terdapat ruang berkumpul keluarga serta kamar mandi.
3. Desain eksterior rumah 10 x 15

Kita bisa memilih desain eksterior rumah dengan menggunakan warna krem dan coklat. Selain itu agar membuat suasana lebih hangat serta natural maka kita juga bisa menambahkan unsur kayu.
4. Ruang tamu dan ruang keluarga

Untuk ruang tamu ini juga bisa difungsikan sebagai ruang keluarga. Gunakan warna putih pada dinding dan lantai keramik agar bisa memberikan kesan yang luas.
5. Desain Kamar tidur untuk Rumah 10 x 15

Agar tampilan kamar senada dengan fasad rumah maka kita bisa memberikan nuansa warna coklat muda. Untuk jendelanya, kita bisa menambahkan tempat duduk sekaligus bantal. Ini bisa digunakan untuk bersantai. Penggunaan lampu di table side juga akan memberikan tampilan mewah.
6. Desain Dapur dan ruang makan untuk Rumah 10 x 15

Karena ukurannya yang cukup luas, maka dapur dan ruang makan ini pun dirancang agar kita lebih leluasa. Untuk dapur dan ruang makan ini kita bisa membuat terpisah dengan menggunakan dinding atau bisa juga dibuat menyatu tanpa sekat.
7. Desain Kamar mandi untuk Rumah 10 x 15

Kita bisa menggunakan marmer sebagai material untuk keramik lantai maupun dinding. Pilihlah warna yang kontras agar tetap nyaman untuk dilihat. Selain itu kita juga bisa menggunakan dekorasi yang mewah agar menghadirkan kesan yang mewah pada kamar mandi.
8. Penambahan gasebo kecil untuk Desain Rumah 10 x 15

Untuk tempat bersantai di sekitar rumah maka kita bisa menambahkan gasebo kecil di depan rumah. Gasebo bisa terbuat dari kayu sehingga kesan yang ditimbulkan lebih natural dan apik.
9. Desain taman kecil di area depan rumah 10 x 15

Untuk melengkapi keindahan rumah ini maka kita perlu memberikan taman kecil didepan rumah. Taman kecil ini membuat halaman rumah makin terlihat sejuk.
10. Tangga rumah minimalis untuk Rumah 10 x 15

Kita bisa menggunakan area bawah tangga sebagai temoat untuk menyimoan barang-barang. Agar lebih rapi maka kita bisa membuat lemari custom, sehingga barang-barang yang ada tidak berserakan.
11. Denah Desain Rumah 10 x 15 di bawah ini memiliki taman depan rumah dan sedikit lahan untuk taman di bagian belakang rumah dan untuk kamar tidur terdiri dari 3 kamar tidur dan 3 kamar mandi

12. Denah Desain Rumah 10 x 15 Terbaru selanjutnya ini memiliki teras depan rumah, ada 3 kamar tidur ada 1 kamar mandi, ada taman depan dan belakang rumah serta dapur, ruang tamu dan ruang makan

13. Desain Rumah 10 x 15 3 Kamar Tidur bisa menginspirasi kamu yang ingin memiliki desain rumah yang minimalis

14. Ketika ingin membangun rumah 2 lantai, kamu bisa menerapkan konsep dari Desain Rumah 10 x 15 2 Lantai berikut

15. Desain Rumah 10 x 15 Detail ini memiliki penjelasan lengkap yang bisa kamu pelajari ketika membangun rumah ukuran 10 meter x 15 meter

16. setelah melihat Denah Desain Rumah 10 x 15 dan Tampak Depan ini apakah kamu mendapatkan inspirasi?

17. Mungkin kamu bisa mencontoh Desain Rumah 10 x 15 2 Lantai Tampak Depan ini saat memabangun rumah yang memiliki desain minimalis dan modern

18. Desain Rumah 10 x 15 dan Denahnya diharapkan bisa menginspirasi dan membuat kamu dalam membangun rumah mendapatkan referensi yang lengkap

19. Desain Rumah 10 x 15 Lengkap dengan penjelasan setiap ruangan yang ada di dalamnya, sehingga bisa mempermudah kamu dalam mendapatkan inspirasi saat ingin membangun rumah dan menentukan posisi setiap ruangannya

20. Desain Rumah 10 x 15 Minimalis ini memiliki 4 kamar tidur yang terdiri dari 1 kamar tidur atama, 3 kamar tidur anak

21. ini merupakan salah satu contoh Desain Rumah 10 x 15 Minimalis dari tampak depan yang bisa membuat kamu mendapatkan ide dan inspirasi terbaik dalam membangun rumah

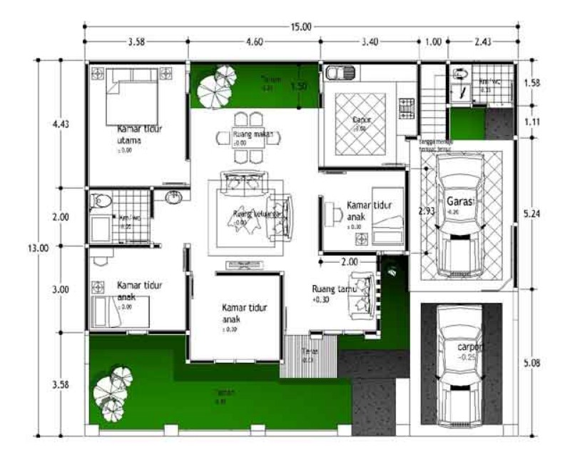
22. Denah Konsep Desain Rumah 10 x 15 ini memiliki taman dari depan rumah sampai belakang rumah, selain itu terdapat taman di ruangan tengah di daalam rumah

23. Ingin membangun rumah dengan 4 kamar? maka kamu bisa mencontoh inspirasi dari Desain Rumah 10 x 15 4 Kamar Tidur ini

24. Desain Rumah 10 x 15 Sederhana ini memiliki 3 kamar tidur dan memiliki ruangan untuk mushola dan tempat cuci dan jemur pakaian serta memiliki gudang

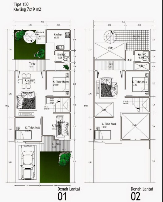
25. Desain Rumah 10 x 15 Type 150 ini memiliki 2 lantai yang membuat ruangan di dalam rumah ini sangat banyak, terutama kamar tidur dari rumah ini sebanyak 4 kamar tidur

26. Desain Rumah 10 x 15 Lantai 1 ini juga bisa kamu jadikan referensi

27. Rancangan Desain Rumah 10 x 15 lengkap bersama dengan denah rumah lengkap dan desain tampak depan yang modern

28. Gambaran Desain Rumah 10 x 15 dijelaskan secara detail baik dari tinggi bangunan, atap rumah lebar dan luas bangunan yang dibutuhkan untuk membangun rumah

29. Contoh Desain Rumah 10 x 15 Minimalis Terbaru ini cocok untuk kamu yang ingin membangun rumah minimalis dengan 4 kamar tidur

30. Desain Rumah 10 x 15 Minimalis Terbaru yang kami rekomendasikan di bawah ini memiliki konsep rumah yang dijadikan tempat untuk praktek doketer

