Desain Rumah 10 x 12 - Memiliki lahan luas yang akan dibangun rumah membuat kita merasa mudah untuk membagi menjadi beberapa bagian ruangan. Di Indonesia sendiri sangat umum jika mempunyai rumah dengan kamar tidur berjumlah 3 atau empat. Mengingat kamar tidur tersebut diperuntukkan untuk anak-anak mereka ataupun orang tua yang akan tinggal bersama.
Lalu bagaimana sih cara membagi ruangan atau cara mendesain rumah ukuran 10 x 12 agar menjadi hunian sesuai yang kita impikan. Yukk simak bersama beberapa alternatif Desain Rumah 10 x 12 berikut ini.
1. Desain Rumah 10 x 12 minimalis

Rumah dengan luas mencapai 120 m2 ini bisa kita bagi menjadi beberapa ruangan. Untuk kamar tidur sendiri bisa dibagi menjadi 3 bagaian. Sedangkan untuk lainnya ada ruang tamu, runag makan, dapur, loundry room. Untuk carport bisa kita bangun memanjang dengan lebar 3 meter, sehingga bisa muat 2 mobil.
2. Denah rumah ukuran 10 x 12 meter

Denah rumah ini sebenarnya sangat simple, terbagi menjadi 3 kelompok ruangan. Yang pertama adalah kelompok kamar tidur. Untuk kamar tidur terdiri dari 3 buah kamar yaitu kamar utama dengan ukuran paling besar dan mempunyai kamar mandi dalam. Sedangkan dua kamar lainnya mempunyai ukuran kamar yang lebih sempit, biasanya diperuntukkan untuk anak-anak.
Selanjutnya yang kedua adalah kelompok ruang servis yang terdiri dari ruang tamu atau ruang TV, ruang makan , dapur dan ruang loundry. Sedangkan kelompok ruang terakhir adaalh carport. Carport ini bisa berisi 2 mobil.
3. Desain Rumah 10 x 12 Tampak Depan Rumah

Rumah ini didominasi oleh garis horizontal, dimana garius ini didapatkan pada liplank beton yang berasal dari atap rumah, kanopi carport dan teras, dan anak tangga yang berada di halaman rumah. Sedangkan untuk elemen dari garis vertikal bisa terlihat dari penggunaan dinding yang beraksen batualam serta tiang-tiang kanopi.
4. Desain Rumah 10 x 12 dengan 3 kamar tidur

Jika kita melihat denah diatas, penggunaan ruangan untuk kamar tidur dibuat dengan desain sirkulasinya sendiri. Ini berarti kamar tidur benar-benar digunakan sebagai tempat untuk istirahat saja.
5. Desain Rumah 10 x 12 1 lantai

Desain rumah ini menggunakan 1 lantai yang minimalis, artinya setiap rungan benar-benar difungsikan sesuai dengan fungsinya masing-masing serta mempunyai konstruksi yang kekinian.
6. Desain Rumah Menggunakan atap dak beton

Dengan menggunakan finishing atap flat tanpa floor drain. Atap ini hampir menyerupai kanopi besar yang meyalurkan air hujan langsung kearah kemiringan yang kita inginkan.
7. Desain Taman depan rumah dengan jalan setapak

Taman di halaman rumah tidak harus menggunakan bunga yang warna-warni. Dengan hanya menonjolkan rumput hijau pun taman bisa menjadi asri. Agar tidak terinjak maka gunakan jalan setapak sebagai tempat untuk pijakan kaki.
8. Desain Dapur minimalis yang tersaa hangat

Tampilan dapur tidak harus terlihat cantik dan bersih, yang terpenting adalah dapur bisa memberikan kenyamanan pada penggunanya. Kita bisa membuat sebagian lemari menempel pada dinding, selain bisa menghemat ruang juga mudah dijangkau.
9. Desain kamar utama yang luas dengan hiasan foto keluarga

Untuk kamar utama disini ukurannya paling luas dibanding dengan lainnya. Kita bisa memberikan dekorasi kamar dengan menempel . foto-foto tersebut bisa dijadikan kolase untuk selanjutnya diletakkan dibagian atas headboard tempat tidur. Gunakan warna netral untuk kamar tidur agar kita bisa beristirahat dengan nyaman.
10. Desain kamar mandi serba putih

Agar terlihat bersih dan nyaman, kita bisa memilih tampilan kamar mandi dengan menggunakan warna yang putih dan cerah.
11. Gambar Denah Desain Rumah 10 x 12 selanjutnya ini memiliki 1 kamar tutama, dan 3 kamar berukuran lebih kecil lainnya, untuk 2 kamar lainnya uykuran lebih besar dibanding kamar paling ujung

12. Jika kamu ingin mencari inspirasi rumah ukuran 10x12 meter untuk tampak depannya mungkin desain Desain Rumah 10 x 12 Tampak Depan ini bisa menginspirasi

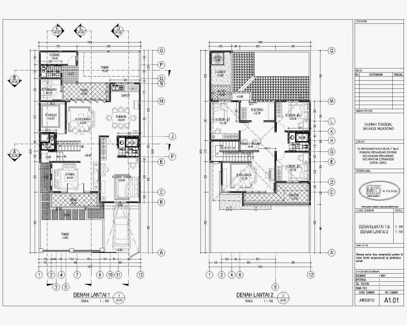
13. Denah Desain Rumah 10 x 12 selanjutnya ini terdiri dari 3 kamar tidur, ada teras depan, tempat sumur ada dibagian depan untuk bagian kiri ada carport dan tempat waduk, setelah teras ada ruang tamu dan ruang keluarga serta dapur, dan toilet berada di bagian belakang sebelah kanan

14. Jika kamu mencari inspirasi desain rumah lengkap mungkin contoh Desain Rumah 10 x 12 dan Denahnya berikut ini bisa menginspirasi dari contoh denag dan tampak depan serta interiornya

15. Sketsa Desain Rumah 10 x 12 ddengan 3 kamar tidur seperti ini tata letak ruangannya apakah kamu tertarik?

16. Sketsa Denah Desain Rumah 10 x 12 ini memiliki penjelasan yang detail dan lengkap jadi untuk kamu yang mencari gambar desain yang detail untuk sketsa denah rumah, kamu bisa membacanya dari gambar ini

17. Konsep Desain Rumah 10 x 12 tidak kalah menarik dengan contoh sebelumnya, karena untuk desain rumah ini memiliki halaman depan untuk taman rumah yang cukup luas

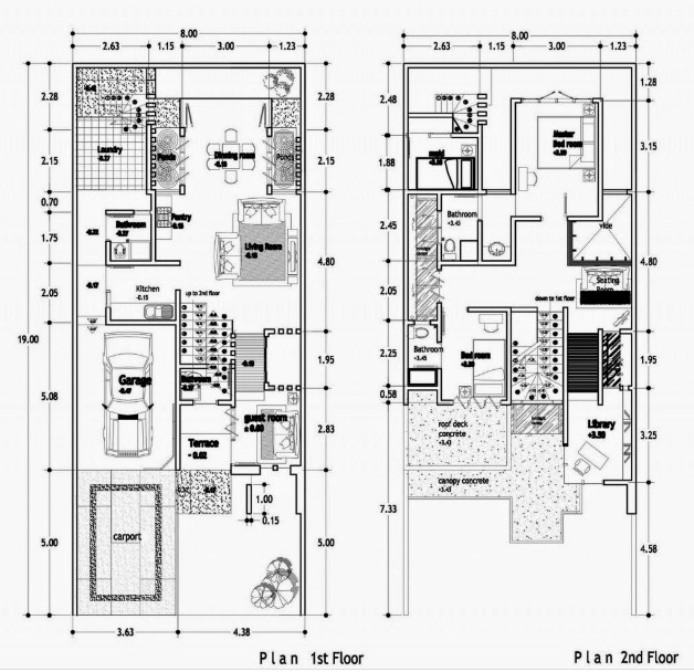
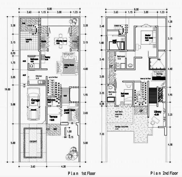
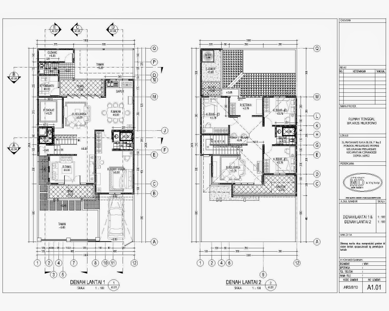
18. Kamu ingin membangun rumah 2 lantai dari tanah berukuran 10x12 meter? maka kamu wajib melihat contoh Desain Rumah 10 x 12 2 Lantai ini

19. Jika membutuhkan inspirasi rumah 2 lantai lainnya mungkin kamu bisa melihat lihat Desain Rumah 10 x 12 Dua Lantai berikut

20. Desain Rumah 10 x 12 Type 120 dengan 1 lantai bisa kamu dapatkan inspirasi dari contoh denah berikut, atau kamu juga bisa menggambarkan denangnya sendiri

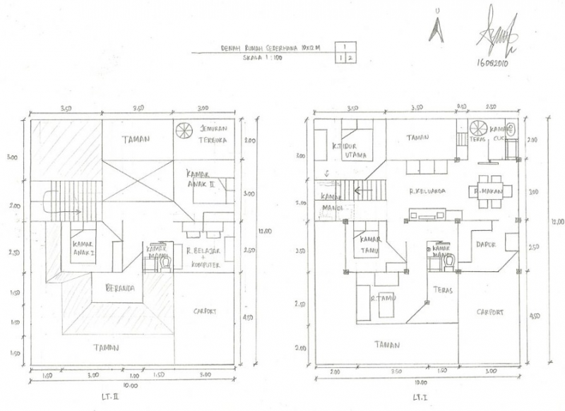
21. Masih dengan sketsa rumah ukuran 10x12 meter, ini adalah contoh penggambaran sketsa Denah Desain Rumah 10 x 12 1 Lantai yang dibuat dengan gambar tangan

22. Desain Rumah 10 x 12 3 Kamar Tidur sangat umum orang inginkan buat, karena itu jika kamu ingin membangun rumah dengan 3 kamar tidur dengan ukuran 10x12 meter maka kamu bisa terinspirasi dari desain berikut

23. Jika desain 3 kamar kurang banyak, maka kamu bisa lihat inspirasi Desain Rumah 10 x 12 4 Kamar Tidur ini

24. Desain Rumah 10 x 12 Atap Datar bisa menjadi solusi terbaik untuk kamu yang ingin memiliki rumah tampak depan yang mewah, minimalis dan elegan

25. Selain menggunakan atap datar, penggunaan Desain Rumah 10 x 12 Atap Limas seperti ini juga tidak kalah keren loh

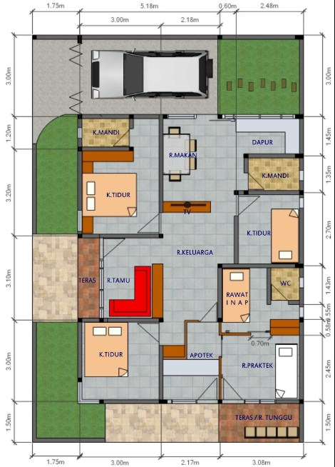
26. Desain Rumah 10 x 12 Dengan 3 Kamar ini cukup simple dan sederhana dengan adanya 3 kamar tidur dan 2 kamar mandi

27. Desain Rumah 10 x 12 2 Lantai Minimalis selanjutnya ini cocok untuk kamu yang membutuhkan inspirasi dalam mendesain rumah 2 lantai dengan jumlah kamar 4 kamar tidur

28. Jika kamu memiliki kapling atau tanah hook maka kamu bisa melihat inspirasi contoh Desain Rumah 10 x 12 Hook di bawah ini

29. Rencana Desain Rumah 10 x 12 di bawah ini tidak boleh kamu lewatkan jika kamu ingin mendain rumah di lahan cukup luas untuk membangun rumah 2 lantai dengan 4 kamar tidur

30. Terakhir ada contoh Desain Rumah 10 x 12 3 Kamar Tidur 2 Kamar Mandi untuk desain tampak luarnya yang terlihat modern

