Desain Rumah 2 Lantai Sederhana dan Biaya - Sebelum membangun sebuah rumah kita juga perlu untuk mengetahui berapa biaya yang harus dikeluarkan. Begitu juga ketika kita mendesain rumah 2 lantai sederhana,juga perlu mengetahui biayanya.
Sebenarnya ketika kita membangun rumah 2 lantai sederhana, biaya yang dikeluarkan tidak bisa disamaratakan. Ini juga terkait dengan harga tanah yang ada pada masing-masing daerah yang berbeda.
1. Perhitungan Biaya Umum dan Per-meter Persegi

Perhitungan biaya umum merupakan kalkulasi biaya kasar dari keseluruhan pembiayaan bangunan. Untuk melakukan biaya pembandingnya kita bisa memperoleh informasi dari teman, keluarga atau tukang bangunan.
Berdasarkan harga pasar yang ada pada saat ini maka biaya untuk membuat rumah 2 lantai sederhana adalah sebagai berikut :
Rumah 2 lantai dengan luas bangunan 100 meter persegi , maka biayanya sekitar 300-350 juta

Rumah 2 lantai dengan luas bangunan 150 meter persegi, maka biayanya sekitar 350 - 400 juta

Rumah 2 lantai dengan luas bangunan 300 meter persegi maka akan mengeluarkan biaya sekitar 400 sampai 500 juta.

Selain contoh tersebut, kita juga akan memberikan beberapa rekomendasi rumah 2 lantai sederhana dengan perkiraan biayanya :
Rumah 2 lantai yang ada di Tangerang

Lokasi rumah tersebut berada di Tangerang dengan spesifikasi Luas Tanahnya 70 m2 dengan luas bangunan 110 m2. Untuk kamar mandinya berjumlah 3 buah dan kamar tidurnya 3 buah. Biaya rumah tersebut kurang lebih sekitar Rp 700.000.000 hingga Rp 800.000.000.
Rumah 2 lantai di Bogor

Spesifikasi Rumah 2 lantai yang ada di Bogor tersebut memiliki luas tanah 90 m2 dengan luas bangunannya mencapai 80 m2. kamar mandinya berjumlah 2 buah dan kamar tidurnya memiliki 3 buah. Harga atau biayanya mencapai Rp 900 jutaan.
Rumah 2 Lantai di Harapan Baru

Lokasi rumah tersebut berada di Jalan Taman Harapan Baru, Harapan Indah. Dengan luas tanahnya mencapai 60 m2 dan luas bangunannya 100 m2. kamar mandi dan kamar tidurnya masing-masing berjumlah 2 buah. Biaya yang dibutuhkan yaitu sekitar Rp 600 jutaan.
Biaya umum yang dicantumkan di atas sudah mencakup semuanya. Termasuk didalamnya adalah biaya tukang, namun dengan catatan untuk pembelian perabot non primer diabaikan.
Kita juga bisa melakukan perhitungan besaran biaya pembangunan rumah 2 lantai dengan biaya perhitungan untuk setiap lantainya. Hal ini dilakukan ketika luas bangunan antara lantai 1 dan lantai 2 berbeda.
Untuk menghitungnya, kita contohkan saja ketika kita akan menghitung luas lantai satu 60 meter persegi dan untuk luas lantai duanya 40 meter persegi.
Maka untuk menghitungnya kita bisa mengasumsikan harga permeternya 5 juta rupiah. Dengan begitu akan kita dapatkan perhitungannya (60 + 40 ) X 5 juta = 500 juta. Jadi total biaya pembangunannya sekitar 500 juta rupiah.
Cara tersebut sangat membantu kita ketika akan melakukan pembangunan atau renovasi rumah menjadi dua lantai.
2. Perhitungan Biaya Satuan
Selanjutnya untuk menghitung biaya pembangunan rumah yang kedua yaitu dengan cara melakukan perhitungan biaya satuan.
Ketika kita akan melakukan perhitungan dengan cara ini maka kita akan menghitung setiap detail pembiayaan yang diperlukan.
Dengan menggunakan cara ini maka kita jadi bisa lebih menekan pengeluaran dengan lebih kecil. Karena kita benar-benar detail menghitungnya. Tetapi kita juga harus punya waktu untuk melakukan survei sana sini untuk mendapatkan harga yang sesuai.
Berikut ini beberapa hal yang harus kita lakukan agar kita bisa berhemat dalam melakukan perhitungan biaya satuan.
- Mencari informasi mengenai harga material serta besaran upah tukang saat ini
- Membuat desain rumah 2 lantai yang kita inginkan
- Melakukan rincian material secara detail dengan disesuaikan luas bangunan yang kita miliki
- Membuatkan jadwal agenda kerja dalam pembangunan rumah
- menghitung jumlah keseluruhan biaya pembangunan serta termasuk didalamnya menghitung biaya cadangan
Ketika kita membuat RAB ( Rencana Anggaran Belanja ) maka kita akan merinci biaya pembelian material yang dibutuhkan pada setiap pos. Contohnya ketika kita menghitung untuk pondasi, dinding lantai 1 dan 2, rangka atap, plafon dan lain-lain sampai dengan pengecatan atau finishing.
Dengan begitu kita akan tahu berapa biaya yang harus dikeluarkan pada setiap masing-masing pos, serta kita menjadi lebih mudah untuk menyiapkan anggaran dari awal sampai dengan akhir.
3. Tips Melakukan Penghematan Budget Membangun Rumah

Seringkali pada sat kita akan membangun rumah atau renovasi rumah maka biasanya akan merasa was-was terutama mengenai jumlah anggaran. Untuk bisa meminimalkan perasaan tersebut maka kita bisa melakukan langkah-langkah sebagai berikut :
Menyiapkan Material yang Bisa Diusahakan Sendiri
Alasannya yaitu karena material adalah bagian yang sangat penting ketika akan membangun sebuah rumah. Pengadaan material bisa menghabiskan biaya 1/3 dari jumlah keseluruhan biaya yang harus dikeluarkan.
Oleh karena itulah jika kita mengusahakan sendiri pengadaan material tersebut maka akan menekan biaya yang harus dikeluarkan.
Misalnya jika rumah kita dekat dengan penambangan pasir, maka kita bisa mengangkut sendiri pasir-pasir tersebut . Ataupun kita juga bisa mengusahakan material lain tanpa harus membeli. Dengan demikian maka kita akan lebih berhemat karena bisa menekan pengeluaran.
Selain itu kita juga bisa mencari toko material yang tepat untuk melakukan survei sekaligus agar bisa menemukan harga terbaik. Oleh karena itu hal ini penting untuk dilakukan.
Pada toko material tersebut selain melakukan survei maka kita juga bisa membandingkan harga dengan toko material lain.
Dalam memilih harga tersebut mka kita tidak boleh mengesampingkan kualitas. Jadi kita tetap memilih barang yang berkualitas dengan harga yang sesuai di kantong.
Menunda Finishing
Selain itu kita juga bisa menghemat biaya pengeluaran dengan cara menunda finishing pada bangunan rumah kita.
Apabila rumah kita sudah selesai dibangun maka pengerjaan finishing dan kegiatan perlengkapan eksterior lain bisa kita lakukan setelah uang terkumpul kembali.
Contoh pengerjaan finishing rumah dua lantai sederhana:
- Pengecatan plafond serta pemasangan plafond sekitar Rp 5.000.000 hingga Rp 10.000.000
- Pemasangan Instalasi kanopi dengan atap polikarbonat sekitar Rp 5.000.000- Rp 6.000.000
- Pemasangan teralis sekaligus pintu gerbang rumah.
Dengan mengetahui biaya yang dikeluarkan maka kita juga bisa menyesuaikannya dengan budget dana yang tersedia. Jangan sampai rumah 2 lantai yang kita bangun melebihi dari budget yang tersedia.
Pada ulasan diatas juga sudah dijelaskan bagaimana cara meminimalkan biaya pengeluaran ketika akan membangun atau melakukan renovasi rumah. Walaupun caranya agak sedikit ribet tapi tidak ada salahnya kita lakukan untuk bisa menekan pengeluaran.
Oleh karena itu menghitung biaya pengeluaran khususnya ketika akan membangun rumah 2 lantai sederhana memang harus dilakukan. Hal ini agar pembangunannya bisa berjalan dengan baik dan lancar.
Jika kamu ingin konsep yang modern tapi terlihat natural maka desain ini patutt untuk dipertimbangkan

Selanjutnya ini adalah konsep rumah 2 lantai sederhana dengan nuansa klasik eropa

Masih dengan konsep rumah gaya eroopa yang sederhana dan minimalist untuk rumah 2 lantai

Jika kamu suka dengan konsep modern bisa terinspirasi dari desain berikut

Selanjutnya ada contoh sketsa rumah 2 lantai dengan konsep yang simple

Untuk biaya terbatas atau pas pasan kamu bisa mencontoh desain rumah ini

Satu lagi contoh dari desain rumah yang modern dan nautrtal dengan 2 lantai yang menginspirasi

Arsitek Desain Rumah 2 Lantai Sederhana dan Biaya rumah seperti ini juga sekarang cukup mahal

Atau kamu bisa mencntoh rumah 2 lantai klasik tapi tetap cocok diterapkan di beberapa tahun terakhir ni

Masih dengan konsep yang simple dan elegan

Jika ingin tampak depan sederhana dan tidak terlalu mewah desain ini cocok dijadikan inspirasi

Selanjutnya ada rumah 2lantai yang sederhana dan simple untuk dicontoh

Kesan modern dan minimalis tampak jelas pada rumah dengan kolam renang ini

Jika kamu suka konsep desain rumah modern, klasik dan sederhana mungkin contoh ini sangat tepat untuk diterapkan

Dengan kombinasi atap datar dan miring seperti ini membuat kesan rumah sangat modern nan kekinian

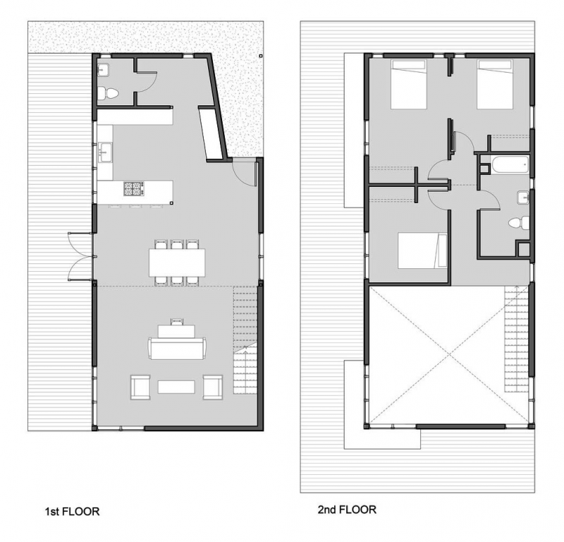
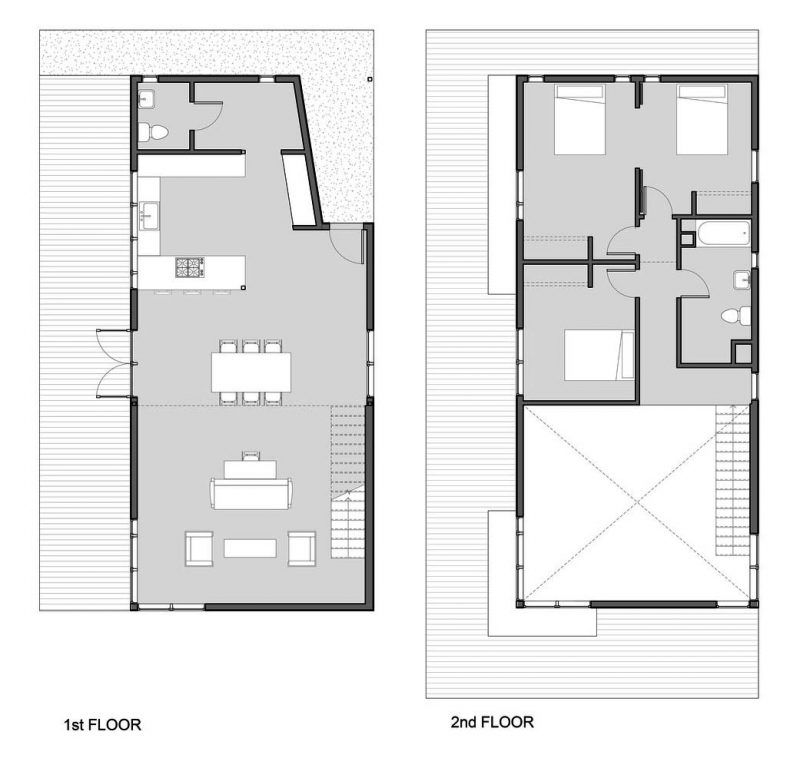
Masih bingung dengan desain denah rumah 2 lantai sederhana? mungkin gambar di bawah ini dapat menginspirasi

Dengan tanah terbatas, kamu masih bisa menempatkan kolam renang kecil di halaman belakang rumah

Tinggal di perumahan dan ingin merenovasi rumah menjadi 2 lantai, coba deh liat desain rumah 2 lantai sederhana ini

Dengan konsep taman minimalis, kamu masih bisa memiliki lingkungan rumah yang menyegarkan seperti ini

Atau kamu bisa terinspirasi dengan konsep atap datar dan dinding kaca kamu bisa membuat rumah 2 lantai sederhana lebih tampak modern

