Desain Rumah 3 Lantai - Tidak jarang saat ini orang-orang memiliki lahan terbatas ketika akan membangun sebuah rumah. Tentu saja lahan yang terbatas menjadi masalah tersendiri. Karenanya, orang menjadi terbatas juga dalam membangun rumah, padahal yang diinginkan adalah rumah berukuran luas.
Tapi jangan khawatir. Tentu setiap masalah ada solusinya bukan? Nahh untuk lahan terbatas yang kamu miliki, kamu bisa membangun rumah dengan 2 hingga 3 lantai. Walaupun tidak terlalu luas, tetapi rumah 3 lantai dapat menampung banyak orang.
Membangun rumah di daerah perkotaan memang sering diserbu masalah lahan terbatas. Oleh karena itu, kamu harus pandai menyiasati lahan terbatas agar tetap bisa dibangun rumah yang bagus dan mencakup.
Salah satu ide yang bisa dipraktekkan adalah mendesain rumah dengan memaksimalkan ruang yang tersedia, yaitu dengan membangun rumah bertingkat. Pada kesempatan kali ini kita akan membahas macam-macam desain rumah 3 lantai. Yuk kupas tuntas untuk mendapatkan referensi desain yang cocok.
1. Desain Modern untuk Fasad Rumah 3 Lantai

Salah satu desain yang bisa kamu terapkan untuk membangun rumah 3 lantai adalah gaya modern. Gaya ini cukup sederhana namun tetap stylish dan fungsional. Selain itu, desain gaya modern juga selalu mengikuti perkembangan zaman, sehingga rumah kamu terlihat lebih kekinian.
Untuk membentuk karakteristik fasad dengan desain modern, kamu bisa menggunakan bahan alami yang dikombinasikan dengan properti berbahan metal. Biasanya konsep ini mengusung dari desain rumah modern minimalis.
Gunakan warna netral seperti hitam, cokelat, dan putih untuk memunculkan kesan modern, ditambah dengan ruangan terbuka dan jendela yang besar.
2. Desain Tradisional untuk Fasad Rumah 3 Lantai

Tidak hanya desain modern, kamu juga bisa menerapkan desain tradisional untuk rumah 3 lantai. Umumnya, desain tradisional ini didominasi properti kayu yang sudah dipoles dengan tekstur khas dan ukuran yang unik dan tradisional.
Untuk pemilihan warna, desain tradisional cenderung menggunakan warna gelap atau lembut yang tentunya memunculkan kesan tradisional, seperti coklat. Kamu juga bisa menambahkan ragam rumah yang ada di Indonesia, sehingga ada unsur etnik yang bisa kamu nikmati.
3. Desain Industrial untuk Fasad Rumah 3 Lantai

Desain industrial merupakan salah satu desain yang banyak diterapkan di kafe-kafe, perkantoran, coworking space, dan bangunan komersial lainnya. Desain ini cukup familiar dan banyak kamu temukan di tempat-tempat tersebut.
Tentu saja untuk membangun rumah 3 lantai kamu bisa mengusung desain industrial ini, meskipun saat ini masih jarang orang-orang yang menerapkan desain industrial untuk merancang bangunan rumah.
Pada desain ini, elemen struktural dan mekanik terbuka lebih ditonjolkan. Kemudian pemilihan warna juga menjadi pertimbangan yang utama agar kesan industrial itu hadir, beberapa warna yang bisa digunakan adalah hitam, coklat, emas, dan abu-abu tua.
4. Desain Scandinavian untuk Fasad Rumah 3 Lantai

Beralih dari desain rumah berwarna gelap, kali ini anda bisa mencoba desain scandinavian yang menampilkan rumah dengan warna cerah dan terang. Pada desain ini, kamu bisa memaksimalkan pencahayaan dengan memilih warna yang cocok, seperti putih, coklat muda, krem, dan abu-abu.
Konsep dasar dari desan scandinavian ini adalah bersih, sederhana dan terang. Jadi, usahakan kamu memilih material dan warna yang cocok untuk dikombinasikan.
5. Desain Natural untuk Fasad Rumah 3 Lantai

Salah satu rekomendasi desain rumah 3 lantai adalah natural. Kamu cukup memanfaatkan beberapa properti alami seperti kayu, bambu, rotan, rumput teki, dan batu alam. Selain itu, kamu juga bisa membangun taman di ruang sisa yang penuh dengan bunga dan tanaman favorit.
Tidak hanya itu, kamu harus memilih warna yang cocok dan memunculkan kesan natural itu sendiri, misalnya dengan warna cerah dan terang yang menjadi favorit kamu. Dengan begitu, tempat hunian kamu dapat memberikan kesan yang hangat dan sederhana.
6. Desain Rustic untuk Fasad Rumah 3 Lantai

Desain rustic menjadi rekomendasi untuk kamu yang menginginkan suasana rumah sederhana namun juga terlihat mewah. Desain rustic cenderung menonjolkan karakteristik tekstur yang kasar dari material alami, seperti kayu, batu, rotan, dan bambu.
Konsep dasar desain rustic ini adalah tua dan berkarat, sehingga selain material alami, desain rustic juga sering menggunakan material besi dan logam untuk menampakkan kesan berkarat itu sendiri.
7. Desain Rumah 3 Lantai Transparan Serba Kaca

Jika kamu menyukai rumah dengan pencahayaan yang begitu terang maka desain rumah dengan menggunakan kaca transparan pada glass window atau jendela serba kaca menjadi solusinya.
Dengan dinding serba atau jendela serba kaca, tentu rumah kamu akan mendapatkan penerangan yang lebih maksimal. Hanya saja, memilih desain ini berarti anda sudah siap dengan privasi yang bisa dilihat dari luar, karena memang aktivitas di dalam rumah menjadi terpampang nyata dengan jendela atau dinding kaca transparan.
Meskipun demikian, tetap saja kamu bisa menikmati ilusi rumah yang lebih lega dan menyatu dengan alam jika terdapat banyak pohon di sekitar rumah.
8. Desain Rumah 3 Lantai Model Berundak

Model berundak menjadi model desain rumah 3 lantai yang kami rekomendasikan untuk kamu. Khusunya kamu yang tidak terlalu ingin menonjolkan bangunan rumah yang terlalu tinggi, meskipun ada 3 lantai.
Dengan model berundak, kamu bisa menciptakan tangga sebaga akses utama pada sisi bangunan dengan model berundak, sehingga penampakan rumah dengan bangunan yang tinggi dapat terkurangi.
9. Desain Rumah 3 Lantai Modern dan Asri

Pada point di atas, kami sudah membahas desain dengan model modern dan natural. Namun pada point ini kami merekomendasikan kamu untuk mengkombinasikan model modern dan natural atau asri.
Untuk memunculkan kesan modern, kamu bisa memilih marmer sebagai material yang akan menghiasi dinding eksterior. Agar tampak lebih modern, kamu bisa memolesnya dengan finishing mengkilap, sehingga dinding terlihat lebih mengkilap dan memukau.
Untuk memberikan kesan asri, kamu bisa memanfaatkan beberapa jenis tanaman hias atau bunga-bunga favorit untuk ditanam di sekeliling rumah. Kamu juga bisa memanfaatkan pohon berukuran besar seperti palem untuk ditanam di samping atau depan rumah.
10. Desain Rumah 3 Lantai Model Sederhana

Merancang rumah 3 lantai dengan model sederhana bukanlah keputusan yang salah. Meskipun mengusung konsep sederhana, akan tetapi ketika dilihat rumah tersebut tampak simpel dan elegan.
Tidak perlu banyak properti untuk menghiasi. Kamu hanya perlu memilih warna yang cocok untuk dikombinasikan dengan material yang digunakan dan menanam pohon bambu di pinggir taman kecil depan rumah, serta pencahayaan yang maksimal.
Selain itu, kamu juga bisa mengatur posisi tangga, misalnya tangga berada di samping rumah, sehingga kamu bisa langsung menuju ke lantai 2 atau 3 tanpa perlu masuk rumah melalui pintu utama yang ada di lantai 1.
11. Contoh desain rumah 3 lantai ini cocok untuk kamu yang memiliki keluarga besar dan memiliki 2 mobil

12. Ini adalah contoh desain untuk rumah 3 lantai yang tampak mewah dan elegan

13. Untuk tampilan yang lebih sederhana dan alami kamu bisa membuat desain rumah seperti ini

14. Jika kamu memilili lahan cukup luas untuk halaman rumah maka desain ini cocok untuk diperitmbangkan

15. Desain rumah seperti ini juga cocok untuk kamu yang tinggal di perumahan elite dan ingin merenovasi rumah yang sekarang

16. Dengan konsep modern dan minimalis, kamu bisa merenovasi atau membangun rumah dengan atap datar

17. Untuk contoh desain rumah 3 lantai klasik kamu bisa dapatkan inspirasinya dari desain ini

18. Untuk desain rumah 3 lantai selanjutnya cocok untuk kamu yang memiliki tanah berukuran 8x15 meter

19. Ini adalah contoh interior untuk desain rumah 3 lantai yang minimalis dan modern

20. Selanjutnya ini juga tidak kalah menarik untuk dijadikan referensi dalam membangun rumah dengan memanfaatkan semua lahan tanah yang ada

21. Untuk rumah 3 lantai berikut sudah dilengkapi dengan penempatan denah setiap ruangannya lengkap

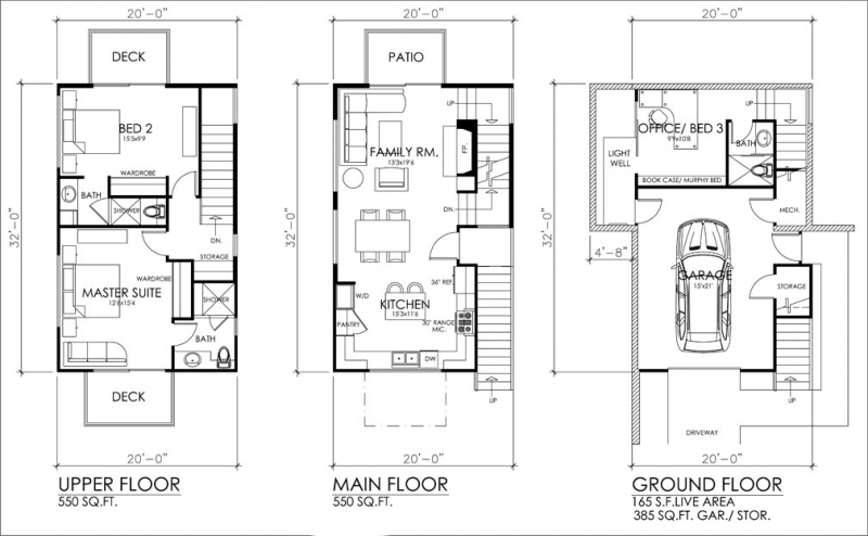
22. Selanjutnya ada gambaran contoh denah desain rumah 3 lantai terbaik

23. Rumah dengan 3 lantai pastinya adalah rumah mewah, maka berikut ini adalah inspirasi interior untuk rumah 3 lantai yang kekinian

24. Contoh denah selanjutnya ini juga cocok diterapkan pada desain rumah 3 lantai yang ingin kamu buat

25. Ingin rumah terlihat modern dan kekinian, coba kamu lihat inspirasi desain rumah berikut

26. Untuk contoh selanjutnya masih dengan contoh denah rumah yang cocok untuk rumah 3 lantai

27. Ini adalah inspirasi denah desain rumah 3 lantai yang bisa kamu jadikan inspirasi

28. Masih dengan contoh denah yang tidak kalah menarik untuk kamu jadikan sebagai referensi

29. Lanjut lagi dengan desain rumah 3 lantai yang cocok diterapkan di area perumahan

30. Tanah cukup luas maka kamu harus simak contoh desain rumah 3 lantai terakhir satu ini

