Desain Rumah 4 x 10 - Diperkotaan saat ini keberadaan rumah minimalis makin banyak dimininati. Selain karena penggunaan lahan yang terbatas juga harganya yang mahal. Oleh karena itu kita harus pandai untuk mendesain agar rumah terlihat nyaman.
Keterbatasan lahan tidak menjadi masalah jika kita mampu untuk mengatur ruangan yang ada didalamnya. Pengaturan itu dimaksudkan agar ruangan lebih fungsional dan terlihat cantik. Berikut ini desain rumah 4 x 10 yang bia menjadi referensi.
1. Desain Rumah 4 x 10 dengan penggunaan twin bed

Jika desain rumah dibuat 2 lantai , maka lantai atas kita bisa gunakan untuk kamar anak. Karena lahan yang terbatas maka kita menggunakan twin bed untuk kamar anak-anak. Penggunaan twin bed ini bisa menghemat ruangan.
2. Desain Kamar mandi Rumah 4 x 10

Untuk kamar mandi, sebaiknya didesain yang minimalis dan sederhana. Gunakan cat yang putih atau warna cerah agar kamar mandi tidak terlalu sempit. Disamping itu jumlah kamar mandi sebaiknya satu saja mengingat tempatnya yang terbatas.
3. Pemanfaatan lantai atas untuk Rumah 4 x 10

Untuk lantai atas kita bisa gunakan sebagai kamar tidur anak dan ruang keluarga. Di ruang ini keluarga bisa berkumpul untuk saling bercerita dan melepas lelah.
4. Penggabungan dapur dan ruang makan untuk Rumah 4 x 10

Agar bisa menghemat tempat maka kamu bisa menggabungkan kamar tidur dan dapur. Selain menghemat tempat, ruangan juga tidak terkesan sempit karena penggunaan sekat.
5. Desain Rumah 4 x 10 dengan menggunakan dapur minimalis

Pemilihan dapur sebaiknya sesuai dengan fungsinya saja. Tidak perlu menambahkan banyak dekorasi, malah akan membuat kumuh tampilan jika dekorasi yang digunakan tidak sesuai.
6. Ruang kerja diminimalisasi untuk Rumah 4 x 10

Bagi yang mempunyai rumah model minimalis ini kita juga bisa loh mempunyai ruang kerja. Tapi syaratnya ruang kerja ini diminimalisasi tujuannya yaitu agar kita bisa memanfaatkan space secara maksimal. Misalnya dengan membuat meja kerja yang memiliki beberapa rak diatasnya sehingga kita tidak perlu memiliki ruang tambahan untuk penempatan rak buku.
7. Balkon untuk kesan lebar untuk Rumah 4 x 10

Jika luas lahan terbatas sedangkan kita ingin memaksimalkan lahan, maka kita bisa membuat balkon sederhana. Keberadaan balkon ini akan memberikan kesan yang luas sehingga kita bisa memanfaatkan untuk berbagai kebutuhan.
8. Desain Rumah 4 x 10 sekaligus sebagai tempat kerja

Jika kamu ingin memulai bisnis dari rumah, kita bisa kok membuat tempat kerja dari rumah. Tidak masalah jika rumahnya di lahan terbatas. Solusinya adalah dengan memanfaatkan garasi mobil sebagai tempat kerja. Tetapi sisi yang kurang baiknya adalah memarkir mobil didepan rumah.
9. Ruang tamu minimalis untuk Rumah 4 x 10

Untuk ruang tamunya usahakan jangan terlalu banyak menempatkan furniture. Terutama furniture yang berukuran besar. Karena bisa membuat ruangan terlihat sempit. Oleh jarena itu sebaiknya kita menggunakan furniture yang minimalis. Apalagi sesuatu yang serba minimlais saat ini sedang diminati banyak orang. Selain itu untuk dekorasi rumahnya juga perlu diperhatikan. Karena ruangan yang tidak begitu luas kita hanya bisa menempatkan beberapa dekorasi rumah saja untuk mempercantik ruangan.
10. Taman kecil didepan Rumah 4 x 10

Untuk melengkapi tampilan rumah, maka kita bisa memanfaatkan lahan kecil yang ada didepan rumah untuk menanam beberapa macam bunga. Taman ini bisa membuat rumah terlihat sejuk dan natural.
11. Renovasi Desain Rumah 4 x 10 ini cocok untuk kamu yang membeli perumahan tapi rumah masih memiliki desain yang standar

12. Denah Desain Rumah 4 x 10 selanjutnya ini memiliki 3 lantai sehingga muat untuk berbagai ruangan walaupun lahan yang dimiliki terbatas

13. Sketsa Desain Rumah 4 x 10 cocok untuk kamu yang hanya memiliki tanah terbatas tapi tetap ingin membangun rumah untuk keluarga kecil

14. Gambar Desain Rumah 4 x 10 ini juga bisa menjadi inspirasi terbatu dalam mendesain rumah dengan ukuran 4 meeter x 10 meter yang memanjang

15. Desain Rumah 4 x 10 2 Lantai menjadi solusi terbaik ketika kamu ingin membangun rumah denga 4 kamar tidur di lahan yang terbatas

16. Pada Desain Rumah 4 x 10 Simple tetap bisa memiliki taman depan dan belakang rumah, 2 kamar tidur, dan halaman depan untuk parkir mobil

17. Setelah itu lanjut dengan Desain Rumah 4 x 10 Sederhana yang merupakan sketsa untuk membangun rumah 2 lantai

18. Desain Rumah 4 x 10 2 Lantai Minimalis pada desain ini sangat simple tetapi kamu tetap bisa memiliki rumah dengan ruangan yang komplit termasuk e kamar tidur

19. Ini adalah untuk inspirasi kamu dalam mendesain Rumah 4 x 10 2 Lantai Tampak Depan yang modern dan minimalis

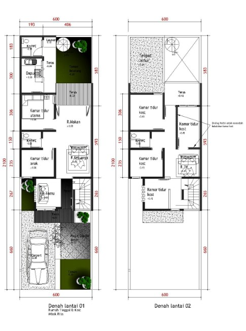
20. Denah Desain Rumah 4 x 10 2 Lantai ini sangat lengkap dengan keterangan untuk penempatan setiap ruangannya

21. Desain Rumah 4 x 10 Minimalis ini walaupun dilahan terbatas dengan atap datar yang miring ke samping membuat tampak depan rumah menjadi lebih elegan

22. Solusi untuk rumah dibangun di lahan yang sempit dan ingin memiliki banyak ruang adalah dengan membangunnya ke atas, sehingga contoh Desain Rumah 4 x 10 2 Lantai Modern bisa kamu jadikan inspirasi

23. Selanjutnya Desain Rumah 4 x 10 2 Kamar ini bisa membuat kamu tetap memiliki kelebihan tanah di halaman depan dan belakang untuk dijadikan taman

24. Masih dengan Desain Rumah 4 x 10 Terbaru dengan 2 lantai ini memiliki kamar yang cukup banyak

25. Desain Rumah 4 x 10 Terbaik berikut ini memiliki bangunan dengan 2 lantai dan memiliki 4 kamar tidur

26. Gambar 3D Desain Rumah 4 x 10 seperti ini bisa kamu buat sendiri mengggunakan aplikasi desain rumah di komputer atau laptop

27. Tampak Depan Desain Rumah 4 x 10 ini sangat cocok diterapkan di era modern seperti sekarang ini, jadi walaupun rumah berukuran kecil tapi tetap terlihat mewah

28. Cara Desain Rumah 4 x 10 termudah saat ini adalah dengan mengumpulkan informasi contoh desain rumah dan denah rumah sebanyak mungkin

29. Inspirasi Desain Rumah 4 x 10 mungkin cocok untuk kamu terapkan untuk membangun rumah impian

30. Alternatif terakhir yang kami rekomendasikan adalah pada contoh Gambar Denah Desain Rumah 4 x 10 berikut

Itulah beberapa desain rumah 4 x 10 yang bisa kamu jadikan inspirasi untuk mendesain rumah. Sekali lagi bahwa rumah model seperti ini hanya memerlukan keahlian dalam penempatan ruangan agar terkesan luas dan longgar. Walauoun begitu kita tetap mempunyai beberapa fasilitas lengkap yang dibutuhkan.
