Desain Rumah 4x6 – Semakin mahalnya harga tanah dan sedikitnya lahan kosong, konsep rumah minimalis kian digemari masyarakat. Rumah minimalis tidak membutuhkan lahan yang terlalu luas. Beragam konsep bisa kamu terapkan untuk membuat rumah minimalis dengan desain modern. Berikut ini ada 30 inspirasi desain rumah 4x6 meter minimalis dan sederhana yang bisa dijadikan inspirasi dalam membangun rumah untuk keluarga kecil.
1. Arsitektur rumah 4x6 dengan 1 lantai

Desain rumah ini dibuat hanya dengan 1 lantai. Tidak terlalu banyak ruangan yang dibuat dalam rumah ini. ruangannya terdiri dari carport, taman, ruang tamu, 2 kamar tidur, kamar mandi, dapur yang merangkap dengan ruang makan, gudang, taman, dan halaman belakang.
2. Desain rumah 4x6 dengan 1 lantai

Desain rumah 4x6 ini dibangun dengan gaya modern. Adanya penambahan marmer pada tiang dan sisi pinggir bangunan, membuat rumah ini menjadi terlihat mewah. Jendela dan pintu rumah ini dibuat dalam ukuran ukuran besar untuk memaksimalkan sirkulasi udara dan cahaya yang masuk ke rumah.
3. Desain rumah mungil yang unik

Bangunan rumah ini dibuat dengan bentuk dan desain yang unik. Dinding rumah ini dibuat dengan susunan kayu ini memiliki sisi keindahan yang berbeda dari rumah pada umumnya. Jendelanya dibuat dalam bentuk lingkaran dan kotak tersebut memperlihatkan sisi-sisi unik dari bangunan rumah. Rumah ini juga dibuat panggung, dengan tangga yang terbuat dari kayu.
4. Desain rumah 2 lantai

Rumah yang dibangun dalam 2 lantai ini dibuat memanjang ke belakang. Rumah ini dibuat simpel dan dengan gaya yang modern. Penggunaan pintu kaca berukuran bersar membuat rumah ini mendapatkan asupan cahaya matahari.
5. Desain rumah sederhana

Desain rumah 4x6 ini dibuat dengan bentuk yang sederhana. Desain yang digunakan yaitu modern. Rumah ini menggunakan pintu berukuran besar untuk memudahkan movement dan juga jendela panjang.
6. Arsitektur rumah 2 kamar

Desain rumah ini dibuat dengan 2 kamar tidur. Jika pada desain lama letak kamar mandinya di dekat kamar, pada desain yang baru kamar mandinya diposisikan di dekat dapur. Rumah ini memiliki halaman depan dan belakang yang cukup luas. Ada juga ruang tamu dan ruang keluarga.
7. Desain rumah modern

Rumah ini dibangun dengan gaya yang modern. Ada tambahan marmer di bagian tembok dekat jendela. Rumah ini juga memiliki pintu yang besar dan beberapa jendela untuk memberikan sirkulasi udara yang baik.
8. Desain rumah kayu

Rumah ini dibangun dengan gaya tradisional bangunannya terbuat dari kayu dengan lantai yang cukup tinggi. Bagian luar rumah ini dipasang pagar kecil yang menghiasi halaman rumah. Atap rumahnya terbuat dari genteng. Sisi keindahan juga ditampilkan dari rumah dengan gaya tradisional ini.
9. Desain rumah kayu unik

Nah desain rumah 4x6 ini juga bisa menjadi inspirasi kamu dalam membangun hunian. Konsep dari rumah ini sangat unik. Dindingnya terbuat dari kayu dan lantainya dibuat panggung. Rumah ini memiliki teras kecil yang unik dengan atap. Pemasangan pintu kaca yang tidak terlalu lebar dan adanya banyak jendela berukuran besar membuat rumah ini memiliki sirkulasi udara dan pencahayaan yang baik.
10. Arsitektur rumah sederhana

Untuk rumah ukuran 4x6, kamu bisa membuatnya terlihat lebih luas dengan tidak membuat terlalu banyak ruangan di rumah kamu. Seperti pada gambar tersebut, rumah didesain dengan 1 kamar tidur, ruang tamu, dapur, toilet, dan halaman kecil.
11. Desain Rumah 4x6 ini adalah contoh desain tampak depan, dengan konsep tampak depan rumahyang minimalis

12. Selain desain tampak depan rumah, jika kamu masih bingung bagaimana penataan atau tata letak ruangan interior umah kamu bisa mencontoh dari Denah Desain Rumah 4x6 di bawah ini

13. Jika bangunan 1 lantai menurutmu masih kurang luas untuk memiliki ruangan kamar dan ruangan lainnya, kamu bisa mencontoh Desain Rumah 4x6 2 Lantai dengan 3 kamar ini

14. Desain Rumah 4x6 Sederhana ini juga bisa menginspirasi kamu dalam mendesain rumah sederhana, kamu bisa menempatkan kamar tidur di sisi kanan, di sisi kiri terdapat ruang tamu, dapur, kamar mandi dan tempat mencuci pakaian

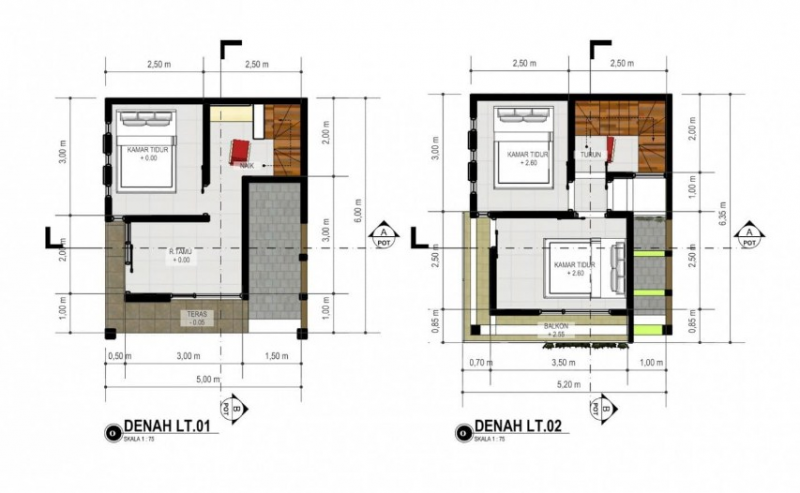
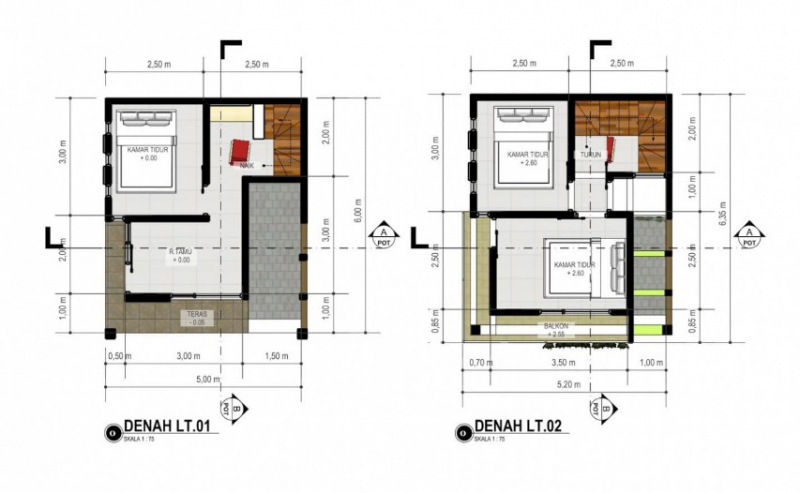
15. Gambar Denah Desain Rumah 4x6 2 Lantai juga tidak kalah menarik untuk dipertimbangkan untuk digunakan dalam mendesain rumah, pada desain ini kamu bisa memiliki 4 kamar tidur di lahan yang terbatas

16. Contoh Desain Rumah 4x6 ini adalah contoh dari bangunan rumah dengan ukuran 4 x 6 meter yang nampak sangat simple

17. Masih dengan Desain Rumah 4x6 Minimalis 2 lantai, pada contoh desain ini kamu bisa memiliki 2 kamar tidur di lantai atas dan 1 kamar tidur di lantai bawah

18. Desain Rumah 4x6 Mungil selanjutnya ini juga bisa menginspirasi dengan ukuran kamar 3x3 meter yang terdiri dari 2 kamar dan 1 kamar mandi

19. Jika kamu mencari Desain Rumah 4x6 2 Lantai Terbaik, maka contoh desain rumah di bawah ini cocok untuk kamu terapkan

20. Desain Rumah 4x6 Type 21 tampak depan ini terlihat sangat sederhana dan simple dengan memiliki pencahayan dari jendela yang cukup luas

21. Walaupun Denah Desain Rumah 4x6 Kecil kamu tetap bisa memiliki 2 kamar tidur, 1 ruang tamu, 1 kamar amndi dan dapur lengkap berserta meja makan

22. jika kamu masih bingung menempatkan Interior Desain Rumah 4x6 maka kamu bisa dapatkan inspirasi dari desain berikut

23. Selanjutnya ada Desain Rumah 4x6 2 Lantai Terbaru yang cukup mudah untuk dijadikan referensi dalam membangun rumah impian untuk keluarga kecil

24. Ini adalah salahs atu Desain Rumah 4x6 Modern yang bisa menginspirasi kamu dalam membangun rumah dengan 2 lantai dan memiliki banyak kamar

25. Jika kamu suka dengan desain yang unik dan berbeda dari yang lain, kamu mungkin bisa mendapatkan inspirasi dari Desain Rumah 4x6 Bentuk Kotak Unik ini

26. Dari penggambaran desain diatas, kamu juga bisa menerapkan penempatan ruangan seperti Desain Rumah 4x6 2 Lantai Sederhana berikut

27. Konsep Desain Rumah 4x6 selanjutnya ini masih memiliki taman dean belakang rumah dan juga garasi depan rumah untuk parkir 1 mobil

28. Karena keterbatasan lahan untuk membangun rumah maka kamu bisa menerapkan Desain Rumah 4x6 1 Kamar Tidur terutama cocok untuk pasangan baru menikah

29. Selanjutnya kamu juga bisa menerapkan Desain Rumah 4x6 2 Kamar Tidur berikut ini untuk diterapkan di rumah yang memiliki lahan terbatas

30. Terakhir masih dengan Desain Rumah 4x6 2 Kamar Minimalis, kamu bisa menerapkan dapur di bagian depan rumah, ruang tamu, kamar mandi dan 2 kamar terletak di bagian belakang

Itulah beberapa desain rumah 4x6 yang bisa kamu gunakan sebagai referensi untuk kamu yang ingin membangun sebuah rumah berukuran kecil, terutama cocok untuk pasangan muda yang baru menikah.
