Desain Rumah 5 Kamar - Rumah dengan lahan yang luas bisa memiliki beberapa ruangan sekaligus. Kita juga bisa memiliki kamar yang lebih banyak. Misalnya dengan memiliki kamar sebanyak 5 buah. Kamar tersebut biasanya di tempati bukan oleh keluarga inti saja , tetapi bisa juga ditempati oleh orang tua yang datang untuk menginap ataupun tamu dalam rumah tersebut.
Desain rumah 5 kamar ini pun ada bermacam -macam yang bisa kita jadikan inspirasi. Ada yang berukuran luas, sedang serta kecil. Sedangkan untuk rumahnya bisa terdiri dari 1 lantai maupun bisa juga rumah 2 lantai. Untuk penempatan kamar-kamarnya bisa dilihat desainnya sebagai berikut.
1. Desain Rumah lantai 2, dengan 5 kamar

Desain rumah inipun menyesuaikan dengan lahan yang ada. Jika lahannya gidak terlalau luas maka kita bisa membangun rumah tingkat. Untuk lantai pertama kita bisa menempatkan kamar tidur dengan jumlah 3 kamar, sedangkan untuk lantai 2 kita bisa memiiki 2 kamar beserta kamar mandinya 1 buah
2. Desain Rumah 5 Kamar dengan penambahan carport

Untuk lantai pertama yang terdiri dari ruang fungsional serta ditambah dengan 2 kamar. Selain itu juga terdapat dapur, ruang tamu dan ruang makan. Lalu terdapat juga carport luas yang bisa menamapung 2 mobil. Sedangkan untuk lantai 2, terdiri dari 3 kamar dengan penambahan 1 kamar mandi dan ruang untuk bersantai.
3. Desain Rumah 5 Kamar modern

Desain ini juga terdiri dari 2 lantai. Untuk lantai pertamanya terdiri dari 3 kamar, dan 2 kamar lagi berada di lantai atas. Untuk keseluruhan ruangannya sebaiknya menggunakan cat putih dan dipadukan dengan warna gelap. Sedangakan untuk penggunaan lantainya menggunkan warna kayu untuk memberikan kesan yang lebih hangat.
4. Desain Rumah 5 Kamar elegan

Terdiri dari 1 lantai dengan warna dominan coklat dan putih menambah kesan elegan dan hangat. Tata ruang dari rumah 5 kamar ini terlihat pas serta tidak menjadikan rumah terlalu kumuh walaupun memiliki banyak sekat.
5. Desain Rumah 5 Kamar hitam putih

Penggunaan warna hitam dan putih ini menjadi sangat dominan. Walaupun begitu kesan yang ditimbulkan tidak terlalu monoton karena ada penambahan pintu yang bermaterial kayu. Tidak ketinggalan juga untuk warna furniturenya yang dominan hitam putih.
6. Desain Rumah 5 Kamar 1 lantai

Walaupun terdiri dari 1 lantai tetapi penempatan kamar-kamar ini cukup rapi dan baik. Pada desain ini dominan warnanya adalah putih dan cerah.
7. Desain Rumah 5 Kamar 3 lantai

Desain rumah 3 lantai ini terdiri dari 5 kamar. Untuk lantai 1 diisi dengan runag tamu serta satu buah kamar tidur. Disamping itu juga terdapat garasi mobil . Lalu untuk lantai 2, kita bisa mengisinya dengan kamar tidur 2 buah. Serta kamar mandi,pada masing-masing lantai terdpat satu buah.
8. Desain Kamar dengan Taman kecil disebelah kamar tidur

Agar udara yang masuk kedalam masing masing kamar, maka perlu adanya taman yang kecil didepan kamar.
9. Desain Kamar yang mempunyai ukuran sama

Desain ini unik, karena mempunyai ukuran yang sama,tidsk dibedakan.
Penggunaan karpet pbisa meletakkan karpet dibawahnya sebagai dekorasi ruangan.
10. Desain Kamar dengan memanfaatkan ruang

Apabila ruangan terbatas, maka kita bisa memanfaatkan ruanga yanga ada untuk kamarv tidur. Contohnya adalah seperti diatas. Kita bisa memanfaatkan bawah tempat tidur untuk ruang belajar. Sedangkan tempat tidurnya terletak diatasnya.
11. Denah Desain Rumah lantai 2, dengan 5 kamar ini memiliki kamar mandi dllam dan untuk taman depan dan belakang rumah juga cukup luas

12. Desain Rumah 5 Kamar 2 Lantai memiliki garasi mobil muat 2 mobil, memiliki taman depan dan belakang rumah, untuk 1 kamar terdapat di lantai 1 dan 4 kamar lain di lantai 2

13. Untuk mendapatkan gambaran lengkap dalam mendesain,berikut ini adalah inspirasi Desain Rumah 5 Kamar Terbaru dengan contoh denah dan desain tampak dari luar yang modern dan mewah

14. Jika kamu ingin membangun rumah dengan 5 kamar den desain sederhana maka Desain Rumah 5 Kamar 2 Lantai Minimalis ini cocok untuk kamu jadikan referensi

15. Jika kamu tiodak ingin membangun rumah 2 lantai tetapi ingin memiliki 5 kamar di dalamnya, maka Desain Rumah 5 Kamar 1 Lantai ini cocok untuk menginspirasi dalam membangun rumah

16. Untuk lebih detail kamu bisa membuat sketsa denah rumah sendiri dengan melihat contoh gambar Sketsa Desain Rumah 5 Kamar berikut

17. Jika kamu memiliki komputer atau laptop bisa download aplikasi desain rumah untuk mendapatkan contoh Desain Rumah 5 Kamar 3D seperti ini, jadi kamu akan lebih puas dalam mendesain rumah impian

18. Desain Rumah 5 Kamar 2 Lantai Mewah ini memiliki contoh desain tampak luar dan juga denah bagian dalam rumah, sehingga kamu bisa belajar dari contoh desain ini dengan lebih detail

19. Desain Rumah 2 Lantai 5 Kamar juga tidak kalah menarik jika kamu memiliki keterbatasan tanah untuk membangun rumah solusi membangun rumah dengan 2 lantai pasti adalah pilihan tepat

20. Selain membangun rumah dengan 5 kamar menggunakan konsep 2 lantai, kamu masih bisa membangunnya dengan 1 lantai seperti contoh Desain Rumah 5 Kamar Simple berikut

21. Desain Rumah 5 Kamar 2 Lantai Sederhana ini sangat sederhana bukan? apakah kamu tertarik mendesain rumah 5 kamar seperti ini?

22. Jika kamu ingin rumah memiliki kolam renang dan terdiri dari 2 lantai, maka contoh Desain Rumah 5 Kamar Dengan Kolam Renang ini sangatlah tepat untuk dijadikan contoh

23. Jika kamu tidak suka dengan rumah 2 lantai dan tetap ingin memiliki kolam renang di dalam rumah impian, maka contoh Desain Rumah 5 Kamar 1 Lantai ada Kolam Renang ini adalah solusi terbaik untuk kamu bangun

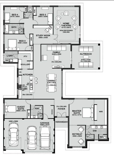
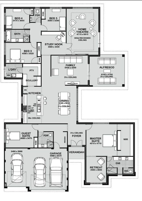
24. Desain Rumah 5 Kamar Terbaik karena terdiri dari 5 kamar, garasi mobil cukup luas yang muat untuk parkir 3 mobil, terdapat ruang home theater, ruang santai, dan ruangan lengkap lainnya

25. Desain Rumah 5 Kamar Dengan 2 Lantai ini juga sangat menarik karena dengan lahan terbatas kamu masih bisa memiliki rumah dengan 5 kamar tidur

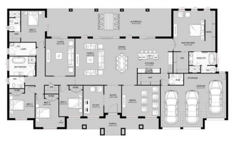
26. Desain Rumah 5 Kamar Garasi 3 Mobil ini cukup luas, jadi ini bisa menginspirasi kamu yang memiliki tanah luas tuntuk membangun rumah

27. Desain Rumah 5 Kamar Minimalis dibuat berderet-deret seperti kamar kos-kosan kecuali untuk kamar tidur utama berukuran lebih luas

28. Desain Rumah 5 Kamar Tampak Depan ini cocok untuk kamu yang ingin membangun rumah 2 lantai

29. Denah Desain Rumah 5 Kamar 2 Lantai ini juga tidak kalah menarik dan simple seperti pada desain lain diatas

30. Desain Rumah 5 Kamar Mewah 2 Lantai adalah contoh desain rumah dengan 5 kamar tidur dengan 2 lantai yang bisa menginspirasi kamu dalam membangun rumah impian

