Desain Rumah 60 Meter – Kita semua tentunya memiliki impian untuk memiliki rumah dengan desain yang sesuai dengan keinginan. Karena itu, jika saat ini kamu sudah memiliki tanah berukuran 60 meter, dan masih bingung dengan ukuran tersebut bisa dibuat rumah seperti apa.
Karena itu disini kami akan memberikan beberapa inspirasi dan ide desain rumah 60 meter yang memiliki desain yang modern dan minimalis. Tentunya dengan beberapa contoh desain dan denah yang akan kami bagikan disini kamu akan mendapatkan gambaran dalam membangun rumah yang sesuai dengan yang diimpi-impikan selama ini.
Berikut ini adalah contoh dan inspirasi desain rumah 60 meter terbaik dengan gaya modern dan minimalis :
1. Desain Rumah 2 Lantai Berwarna Biru

Pertama ada sebuah desain rumah minimalis yang dibagun dengan luas 60 meter, rumah satu ini memiliki bangunan 2lantai ditambah dengan pagar dinding dan pagar besi untuk membuat keamanan rumah lebih baik.
Untuk bagian depan rumah kamu juga masih bisa memiliki taman depan rumah untuk berkebun dengan mendekorasinya dengan berbagai tanaman hias atau tanaman yang dapat tumbuh tinggi dan rimbun. Selain itu dibagian depan rumah kamu juga bisa menambahkan garasi rumah yang diatasnya dibuat balkon untuk tempat bersaintai di pagi, sore atau malam hari.
2. Desain Perumahan Elite 2 Lantai

Kemudian pada referensi dan inspirasi desain kedua ada sebuah inspirasi yang didapatkan dari desain sebuah perumahan elite yang memiliki luas tanah 60 meter. Pada desain ini kamu dapat melihat perumahan tersebut dibangun dengan 2 lantai dan pada lantai 2 dibuat dengan desain yang datar tanpa ada tambahan balkon.
Untuk bagian depan masih ada sedikit taman depan rumah, ada area yang digunakan untuk parkir kendaran mobil. Untuk bagian tempat parkir mobil di depan rumah ini masih bisa kamu tambahkan carport agar kendaraan yang kamu miliki tidak terkena panas dan hujan langsung.
Di bagian lantai 2 yang didominiasi kaca berukuran besar membuat desain rumah ini juga menjadi lebih terlihat modern dan mewah loh. Bagaimana tertarik dengan inspirasi desain dari perumahan elite satu ini?
3. Desain 2 Lantai di Perumahan Avezza BSD City

Inspirasi selanjutnya kami berikan adalah dari sebuah Perumahan Avezza BSD City, pada setiap rumah di perumahan ini memiliki desain yang mewah dan minimalis dengan bangunan 2 lantainnya.
Dengan memanfaatkan tanah yang terbatas berukuran 60 meter seperti ini, pengembang perumahaan ini bisa dengan sukses membuat tampilan depan rumah yang membuat banyak orang tertarik untuk membelinya. Selain itu, kita yang ingin membangun rumah sendiri setelah melihat desain ini juga bisa dijadikan inspirasi.
Pertama dari membuat atap dengan bentuk limas, memanfaatkan semua lebar rumah untuk dibagun, menyisakan beberapa meter tanah untuk dibuat sebagai tempat parkir mobil/motor dan untuk area hijau di depan rumah.
4. Inspirasi Desain Rumah Dari Buenos Park BSD City

Ini adalah perumahan Buenos Park BSD City, jika dibandingkan dengan 2 desain perumahan sebelumnya desain dari rumah di Buenos Park BSD City lebih sederhana dan minimalis. Jadi untuk kamu yang tidak ingin mendesain rumah dengan detail yang rumit bisa menerapkan desain ini.
Pertama kamu dapat menempatkan pintu rumah dibagian kanan atau kiri sesuai dengan selera, untuk bagian depan bisa digunakan untuk area parkir, bagian lantai 2 dibuat datar dan ditambahkan dengan sedikit balkin dengan jendela kaca berukuran besar.
Pada bagian atap kamu bisa membuat atap miring 45 derajat ke belakang, ditambah dengan membangunnya dengan atap genteng yang datar. Sehingga kesan rumah tampak depan lebih elegan.
5. Ide Dari Perumahan Thumson Summarecon

Diurutan kelima dalam ide dan inspirasi desain rumah 60 meter ada referensi dari Perumahan Thumson Summarecon. Pada setiap rumah disini memiliki gambaran desain rumah yang berwarna-warni dengan warna-warna yang soft. Dengan kombinasi dengan warna abu-abu membuat rumah di perumahan ini menjadi lebih elegan.
Selain itu kesan desain nutaral juga namapk jelas dengan adanya penerapan batu alam dibagian dinding depan rumah. Kamu juga masih bisa bekebun dengan tanaman hias yang tinggi ataupun tanaman hias dengan bunga warna-warni.
Dengan 2 lantai, membuat desain rumah ini bisa dipastikan memiliki banyak ruang termasuk memiliki 3 kamar tidur atau lebih jika kamu inginkan.
6. Desain Rumah di Sevilla Park BSD City Yang Minimalis

Ini adalah Desain Rumah di Sevilla Park BSD City Yang Minimalis yang juga tidak kalah menarik untuk kamu jadikan referensi dalam membangun rumah impian 2 lantai di lahan berukuran 60 meter. Pada desain rumah ini untuk cat rumah bagian depan memiliki kombinasi warna cat abu-abu gelap dan cerah serta putih yang membuat rumah lebih elegan dilihat.
Jika dibandingkan dengan desain diatas lainnya, ini juga merupakan konsep desain rumah yang simple dan sederhana. Untuk bagian lantai 2 juga terdapat balkon. Bagian depan rumah ada sedikit taman dan area untuk parkir kendaraan.
7. Desain Askara House BSD City Modern

Apakah kamu suka dengan konsep desain rumah industrial? jika kamu suka dengan konsep dan gaya desain rumah industrial maka inspirasi dari desain rumah di Askara House BSD City Modern ini bisa dijadikan referensi.
Pertama untuk desain rumah industrial tentunya kamu harus mengedapankan bangunan yang didominasi dengan dinding dominasi terbuat dari kaca. Dikombinasikan dengan bahan besi, kayu dan batu dengan warna yang gelap. Untuk memberikan kesan yang mewah dan elegan pada desain industrial kamu juga harus memikirkan pencahayaan yang tepat.
8. Denah dan Desain Tampak Depan Rumah 60 Meter

Jika kamu telah mendapatkan inspirasi dalam mendesain rumah dari tampak depannya dari beberapa inspirasi gambar desain rumah 60 meter diatas. Kali ini kamu akan memberikan kamu gambaran denah rumah dan juga desain tampak depan rumah 60 meter dengan 1 lantai.
Pada denah rumah 1 lantai ini, kamu bisa menempatkan area carport dan teman di bagian depan, setelah masuk rumah kamu bisa membuat ruang tamu, kemudian tambahkan sekat untuk ruang keluarga di belakang ruang tamu. Untuk kamar utama pertama ada dibagian kiri. Untuk kamar mandi kamu bisa buat menjadi 2 dibagian tengah ruangan.
Untuk area kamar tidur kedua kamu bisa menempatkan dibagian kanan belakang dan dapur bisa kamu buat dibagian paling belakang rumah dengan area terbuka.
9. Desain Minimalis Perumahan Azzura House BSD City

Di referensi atau ide desain rumah 60 meter ada dari Perumahan Azzura House BSD City yang minimalis. Yang membedakan perumahan ini dengan perumahan yang dijadikan referensi diatas adalah desain perumahan ini memiliki konsep desain klasik dengan bahan dinding terbuat dari kayi dan batu alam. Sehingga untuk kamu yang suka dengan konsep rumah klasik natural, desain dari Perumahan Azzura House BSD City cocok untuk ditiru.
10. Desain Rumah Modern Di Alegria Park BSD City

Untuk selanjutnya ini ada desain rumah di perumahan Alegria Park BSD City yang tampak modern. Untuk atap rumah ini di desain dengan atap berbentuk limas, untuk rumah memiliki 2 lantai. Untuk bagian lantai 2 dinding bagian depannya di dominasi dengan dinding terbuat dari kaca.
Untuk bagian depan masih sama dengan desain lainnya yang mengutamakan area yang cukup luas untuk parkir mobil dan juga dibuat untuk taman mini di depan rumah.
11. Konsep desain di Assana House BSD City juga juga tidak kalah menari dengan pilar rumah berukuran besar, menggunakan batu alam dan juga memiliki konsep desain victorian

12. Untuk di perumahan Kireina Park, desain rumahnya tampak lebih natural dengan dinding kayu berwarna coklat dan juga didinding batu alam yang berwarna coklat cerah

13. Desain ini cocok untuk kamu yang ingin membuat rumah dengan tipe 60 dengan posisi tanah hook

14. Konsep desain rumah selanjutnya ini juga tidak kalah menarik dengan bagian lantai 1 dibuat untuk garasi mobil yang menjorok ke dalam bagunan

15. Ini adalah konsep denah rumah yang cocok diterapkan pada desain rumah 60 meter

16. Untuk desain denah berikutnya ini memiliki 3 kamar tidur utama dan 1 kamar tidur pembantu

17. Desain dari PT Alamuda ini juga sangat modern, elegan dan tampak sangat mewah dengan kombinasi warna cat putih dan hitam

18. Untuk desain lainnya masih dengan rumah 2 lantai dengan konsepw arna cat rumah berwarna gelap

19. Masih kurang puas dengan rumah 2 lantai sebagai referensi diatas, mungkin kamu tertarik untuk membuat rumah 3 lantai yang minimalis dan modern seperti ini

20. Konsep rumah 60 meter ini cocok untuk kamu yang sudah memiliki kavling di perumahan yang memiliki tanah dibagian pojok/sudut/hook

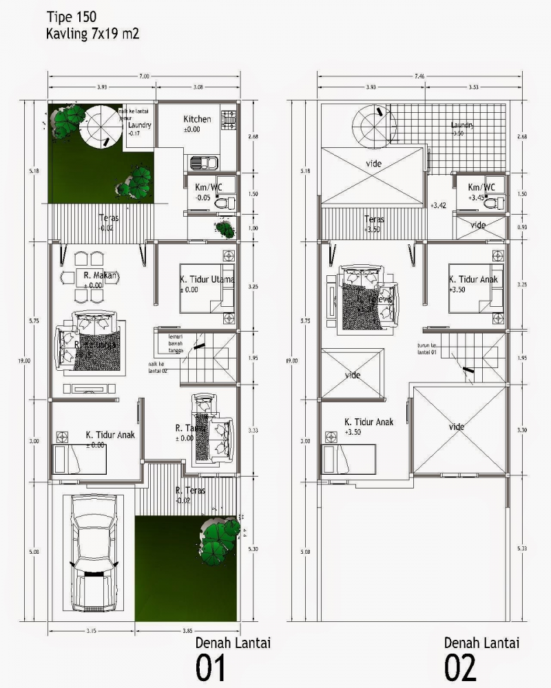
21. Atau kamu mungkin juga mendapatkan inspirasi dari denah rumah tipe 150 seperti ini?

22. Denah rumah sepanjutnya ini cocok untuk dibuat di lantai 1 rumah

23. Ukuran tanah 60 meter, ingin membuat desain rumah 1 lantai, ini adalah desain terbaik untuk dijadikan referensi

24. Desain mewah, minimalis, modern dan elegan ini adalah karya dari Emporio Architect

25. Selanjutnya ada rumah minimalis dengan ukuran 5x10 untuk bagunan yang minimalis

26. Selanjutnya ada contoh desain rumah 2 lantai dengan ukuran tanah 60 meter dengan memiliki 4 kamar, 2 kamar mandi dan ada kolam renangnya

27. Ini adalah contoh hasil denah sebelum dan sesudah di renovasi dari lantai 1 menjadi 2 lantai

28. Desain ini memiliki ruangan lengkap ditambah dengan 2 kamar tidur

29. Desain dengan 2 kamar tidur untuk tanah ukuran 60 meter lainnya bisa didapatkan dari desain ini

30. Terakhir adalah contoh desain rumah 60 meter dari seorang youtuber bernama Yogie Ervanata

