Desain Rumah 6x12 - Dalam membangun rumah impian kita harus benar-benar memperhatikan banyak aspek, baik dari desain, denah, material, ukuran dan hal lainnya seperti anggaran dan biaya.
Salah satu rumah yang banyak dibangun sekarang ini adalah memiliki ukuran 6x12 meter, karena itu pada kesempatan hari ini dan pada postingan kali ini kami akan mengajak kamu untuk menemukan inspirasi desain rumah 6x12 meter dengan konsep desain minimalis dan modern. Yuks langsung saja cek sekitar 30 contoh desain rumah berikut :
1. Desain Rumah 6x12 Meter 2 Lantai

Pertama dalam contoh Desain Rumah 6x12 meter yang akan kami bagikan kepada kamu adalah rumah dengan 2 lantai. Pada desain rumah pertama ini kamu dapat menemukan rumah ini menggunakan desain yang minimalis dan natural.
Karena penggunaan batu alam dan unsur kayu di bagian depannya. Untuk menambahkan kesan modern kamu bisa menambahkan kaca berukuran lebar di setiap dinding bagian depan rumah untuk dijadikan sebagai jendela depan rumah.
2. Desain Rumah Memanjang

Pada konsep desain yang kedua ini rumah dibuat memanjang dan memiliki bangunan 2 lantai. Jadi untuk kamu yang sedang mencari konsep desain rumah yang banyak kamar dan banyak ruangan maka contoh desain satu ini bisa menjadi inspirasi terbaik.
Dengan ukuran tanah 6x12 meter, tentunya rumah yang kita buat akan memiliki desain yang memanjang. Karena itu untuk membuat desain rumah menjadi lebih maksimal apalagi jika kamu memiliki keluarga besar, maka desain ini bisa kamu terapkan.
3. Desain Rumah Mungil Minimalis

Untuk pasangan muda yang baru menikah atau baru memiliki 1 anak dan memiliki impian untuk membangun rumah sederhana kami memiliki gambaran desain yang tepat untuk kamu pilih.
Pada desain rumah satu ini memiliki konsep Desain Rumah 6x12 meter dengan bangunan yang sederhana, dengan konsep desain minimalis natural seperti ini kamu bisa membangun rumah untuk 2 kamar.
4. Denah Desain Rumah 6x12 Minimalis

Jika kamu mencari contoh denah Desain Rumah 6x12 yang minimalis dan cocok untuk menerapkan rumah 3 kamar maka konsep desain keempat ini bisa kamu jadikan referensi.
Pada desain ini, kamu bisa memiliki ruang keluarga yang digabung dengan ruang makan, dan di sisi ruangan sampingnya kamu bisa membangun dapur dan ruang tamu di letakan di bagian depan dan untuk kamar mandi pada rumah ini 3 kamar mandi.
5. Denah Rumah 3 Kamar Tidur Minimalis

Masih dengan contoh denah rumah yang menerapkan ukuran 6x12 meter, pada denah satu ini kamu bisa membangun rumah dengan 3 kamar tidur, untuk bagian depan ada garasi, taman depan rumah, lalu masuk ke ruang tamu dan dapur berada di samping ruang tamu.
Pada ruang etngah terdapat ruang makan dan ruang keluarga, lanjut dengan kamar tidur ditempatkan di belakang garasi dengan 2 kamar, untuk kamar ketiga terletak dibagian belakang di sisi kanan.
6. Desain Rumah 3 Kamar dan 4 Kamar Mandi

Jika kamu ingin membangun rumah di lahan yang terbatas tetapi ingin memiliki banyak kamar tidur dan kamar mandinya, maka konsep desain rumah diperkotaan di lahan sempit seperti ini bisa menjadi pilihan terbaik.
Jadi untuk yang ingin menerapkan desain seperti ini, rumah kamu bangun dengan desain yang memiliki 3 lantai, dan bangunan tentunya dibuat lebih minimalis dan memanfaatkan ruang dengan maksimal.
7. Sketsa Denah Rumah Minimalis

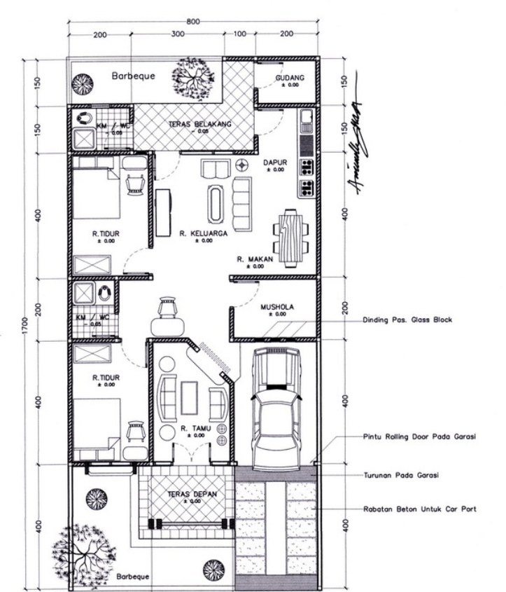
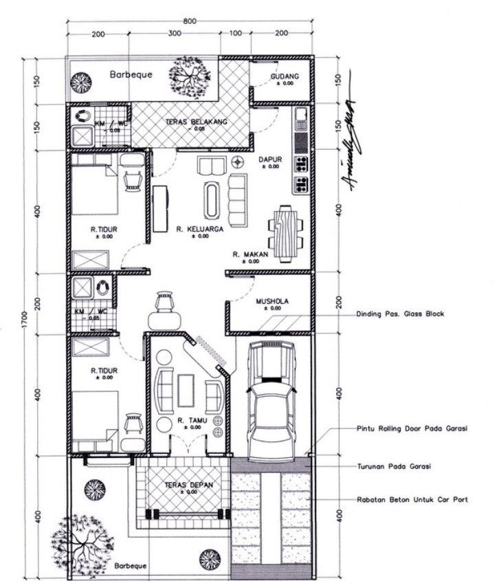
Masih dengan konsep denah rumah minimalis yang cocok untuk tanah berukuran 6x12 meter. Pada contoh denah satu ini kamu bisa memiliki 2 kamar tidur, tapi ruangan di dalamnya sangat lengkap karena memiliki mushola, gudang, dan teras belakang rumah yang cocok untuk bersantai bersama keluarga.
8. Desain Rumah 6x12 Sederhana

Jika kamu tidak ingin tampilan depan rumah yang terlalu mewah dan ribet desainnya, maka desain tampak depan rumah dari desain yang ke delapan ini bisa kamu pertimbangkan untuk dicontoh.
Kamu hanya perlu membangun rumah dengan jendela bagian depan yang memanjang dan banyak, untuk dinding bagian depan rumah kamu kombinasi dengan batu alam berwarna hitam atau abu-abu.
9. Desain Rumah 6x12 Mungil

Untuk kamu yang budget membangun rumah terbatas, kamu masih bisa kok memiliki rumah impian seperti yang ditunjukan pada desain ini.
Kamu bisa memanfaatkan lahan rumah yang terbatas seperti ini, tetapi untuk contoh desain seperti ini kamu tidak memiliki area untuk parkir kendaraan roda empat. Tapi jika dilihat dari konsep desain rumah ini cocok untuk diterapkan di desa.
10. Desain Rumah 6x12 Di Desa

Jika kamu ingin membangun rumah di desa atau di kampung, maka konsep desain rumah yang mungil dan minimalis seperti ini patut untuk kamu pertimbangkan. Jika selama ini kamu tengah bekerja di rantau atau kota orang dan ingin membangun rumah di desa bukanlah di tempat kamu bekerja sekarang, mungkin Desain Rumah 6x12 di kampung ini cocok untuk kamu terapkan.
Kamu bisa memanfaatkan konsep yang perumahan di kota untuk dibuat di desa. Jadi dibandingkan kamu membeli perumahan yang mahal di kota, kamu masih bisa membangun rumah di kampung dengan budget yang lebih murah tetapi desainnya tidak kalah dengan yang ada di kota.
11. Contoh desain rumah 6x12 meter ini cocok untuk keluarga kecil yang baru menikah atau masih memiliki 1 anak

12. Untuk desain selanjutnya ini sangat simple dengan atap yang dibuat berbentuk limat yang nampak modern tapi klasik

13. Lanjut lagi dengan desain rumah 6x12 meter 1 lantai dan memiliki 2 kamar tidur dengan kosep desain yang sederhana

14. Untuk yang ingin membangun rumah 6x12 meter dengan 4 kamar mungkin desain ini cocok untuk diterapkan

15. Pada desain rumah 6x12 meter 2 lantai ini memiliki 3 kamar tidur dengan tampak depan rumah yang modern minimalis

16. Desain rumah atap miring dengan konsep tropical house design sangatlah menarik karya dari youtuber Rafa Pahing

17. Lanjut lagi dengan desain rumah 6x12 meter yang sangat mungil tetapi nampak sangat elegan

18. Ini adalah contoh penerapan desain rumah 6x12 meter dengan konsep split level

19. Untuk kamu yang suka dengan konsep desain ala rumah jepang simak deh desain ini

20. Pada desain rumah yang sperti ini kamu dapat membangun rumah dengan 2 kamar tidur yang luas

21. Konsep desain rumah yang klasik ini juga tidak kalah menarik untuk kamu terapkan saat membangun rumah

22. Untuk yang ingin membangun rumah mewah di lahan terbatas hanya 6x12 meter maka konsep desain ini wajib kamu lihat

23. Lanjut lagi dengan rumah ruko yang cocok diterapkan kamu yang tinggal di pinggir jalan raya dan memiliki tanah 6x12 meter

24. Untuk yang ingin membangun rumah 1 lantai dengan 3 kamar di lahan 6x12 meter coba cek desain ini

25. Contoh denah rumah 6x12 meter ini cocok untuk yang ingin membangun rumah dengan 3 kamar tidur

26. Untuk rumah 6x12 meter kamu juga masih bisa membangun rumah agar terlihat mewah seperti ini loh

27. Anggaran terbatas cuma 100 juta lebih, mungkin kamu bisa menerapkan contoh desain rumah 6x12 meter 3 kamar seperti ini

28. Untuk kamu yang ingin membangun rumah kayu panggung bisa cek struktur bangunan ini

29. Karya DiA Desain ini sangatlah mewah dengan bangunan 3 lantai yang modern minimalis

30. Terakhir adalah contoh penerapan desain rumah 2 lantai yang sangat modern dan minimalis di area perumahan

