Desain Rumah 6x8 - Membangun rumah tentunya tidaklah mudah, karena ada banyak hal yang harus dipertimbangkan salah satunya adalah desain dari rumah tersebut. Untuk mendapatkan desain kita bisa dengan 2 cara pertama adalah meminta bantuan dari seorang arsitektur dan kedua adalah mencari sendiri referensinya melalui internet ataupun majalah tentang desain rumah.
Tapi cara termudah yang banyak orang gunakan saat ini adalah mencarinya di internet. Jika kamu adalah salah satu orang yang sedang mencari referensi atau inspirasi desain rumah 6x8 meter, kamu sudah tepat berada di webiste ini. Karena kami disini akan mengajak kamu untuk melihat beberapa contoh desain dari rumah yang dibangun dengan ukuran 6x8 meter.
1. Desain Rumah 6x8 1 Lantai Minimalis

Pertama ada contoh Desain Rumah 6x8 dengan bangunan 1 lantai yang dibuat dengan desain yang minimalis. Kamu bisa mendapatkan inspirasi dari desain pertama ini karena desain ini cocok untuk kamu yang tinggal di desa, di perumahan ataupun di perkotaan.
Pada desain rumah pertama ini kamu akan memiliki bangunan yang berwarna sangat kalem, karena rumah ini menggunakan kombinasi warna cat krem dan juga abu-abu. Selain itu desain rumah ini juga telah full pagar depan rumahnya, sehingga rumah akan lebih aman.
2. Contoh Desain Rumah 6x8 Minimalis Modern

Selanjutnya inspirasi kedua yang dapat kami berikan kepada kamu ada rumah dengan desain minimalis elegan. Berbeda dengan desain pertama yang bagian depan rumahnya dipagar full bagian depannya. Untuk desain ini kamu akan memiliki rumah dengan area bagian depan lebih terbuka.
Kelebihan dari rumah dengan desain seperti ini, rumah akan lebih nampak keindahannya dan juga sirkulasi udara yang masuk ke dalam rumah juga akan lebih baik, dibandingkan rumah dipagar keliling bagian depannya.
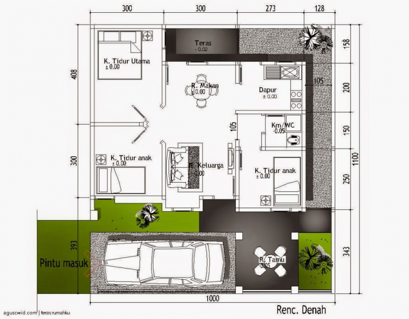
3. Denah Desain Rumah 6x8

Urutan ketiga kami memberikan inspirasi untuk kamu yang belum memiliki gambaran denah dari Desain Rumah 6x8 meter. Jika kamu melihat contoh gambar denah diatas, memanglah bukan dikhususkan untuk rumah berukuran 6x8 meter, tetapi kamu bisa mencontoh denah diatas untuk menyusun atau menerapkan setiap ruangan untuk rumah yang akan kamu bangun.
Agar dalam membangun rumah ukuran setiap ruangannya lebih tepat, kamu harus mengecilkan ukuran dan skala perbanding yang ada dengan contoh gambar denah di atas.
4. Desain Rumah 6x8 Mungil

Untuk kamu yang mungkin dalam membangun rumah hanya memiliki budget terbatas, jangan khawatir. Karena disini kami juga akan memberikan inspirasi terbaik untuk kamu yang ingin mendesain rumah berukuran mungil di lahan seluas 6x8 meter.
Contoh desain rumah satu ini cocok untuk diterapkan jika kamu memiliki tanah di perumahan, atau bisa dijadikan juga sebagai bahan untuk inspirasi saat merenovasi rumah di permahan yang sudah nampak desainnya kurang modern.
5. Desain Rumah 6x8 2 Lantai

Ketika kamu memiliki tanah berukuran 6x8 dan ingin membangun rumah dengan 2 lantai, maka inspirasi desain di urutan kelima ini menjadi pilihan terbaik untuk kamu jadikan contoh.
Kamu jika membangun rumah dengan desain seperti ini, rumah kamu akan memiliki bangunan yang tampak sangat minimalis dan modern. Dengan kombinasi cat berwarna krem, kuning dan orange membuat kesan rumah tampak lebih segar.
6. Desain Rumah 6x8 Meter di Perumahan

Ada satu lagi contoh Desain Rumah 6x8 yang cocok diterapkan untuk kamu yang tinggal di perumahan. Ini adalah salah satu konsep desain terbaik yang patut kamu pertimbangkan jika rumah yang kamu bangun di perumahan memiliki desain yang minimalis elegan.
Dengan menerapkan desain ini kamu masih bisa memiliki lahan untuk parkir kendaraan, ada taman depan rumah ber ukuran kecil, teras rumah dengan desain atap limas serta bangunan rumah yang nampak modern.
7. Desain Rumah 6x8 Meter Berukuran Kecil

Lagi-lagi kami memberikan contoh desain rumah untuk perumahan. Jika contoh di atas kamu kurang tertarik karena mungkin budget membangun rumah terlalu mahal. Ini adalah salah satu contoh desain rumah berukuran kecil yang bisa diperkirakan akan memakan biaya lebih murah dibanding beberapa desain di atas yang telah kami bagikan.
8. Contoh Desain Rumah 6x8 Dengan 3 Kamar

Jika kamu membutuhkan contoh desain rumah untuk 3 kamar dan kamu ingin membangunnya di tanah atau bangunan berukuran 6x8 maka contoh desain ini sangat tepat untuk kamu jadikan sebagai inspirasi.
Kamu dapat memiliki rumah dengan 3 kamar tidur, lengkap dengan adanya ruang tamu, ruang keluarga, teras depan dan belakang rumah, 1 kamar mandi, dan jugaa memiliki dapur.
9. Denah Desain Rumah 6x8 2 Kamar

Untuk contoh desain selanjutnya ini ada contoh desain rumah untuk keluarga baru menikah atau keluarga kecil. Kamu dapat membangun rumah dengan mencontoh konsep denah yang ada di atas.
Untuk penerapan ruangan yang tepat kamu dapat mencontoh setiap ruangan yang telah digambarkan pada denah diatas, baik letak kamar tidur, letak ruang tamu, dapur dan juga kamar mandinya.
10. Desain Rumah 6x8 Tampak Depan Sederhana

Di urutan ke 10, kami memberikan contoh inspirasi untuk Desain Rumah 6x8 dengan tampak depan yang sederhana. Jika kamu tidak suka dengan desain yang terlalu ribet, maka desain yang satu ini bisa kamu jadikan sebagai inspirasi dalam membangun rumah.
Desain ini cocok diterapkan di lahan berukuran 6x8 meter baik kamu tinggal di kota ataupun di desa.
11. Ini ada lagi 1 contoh desain rumah 6x8 meter yang lengkap dari denah rumah dan desain tampak depan rumah yang minimalis

12. Lanjut dengan konsep desain rumah 6x8 meter atap miring yang juga bisa kamu pertimbangkan ketika ingin membangun rumah dengan desain yang kekinian

13. Nuansa desain berwarna hijau seperti ini juga membuat kesan rumah tampak depan lebih segar

14. Desain rumah dengan 2 lantai lainnya yang bisa kamu terapkan di lahan 6x8 adalah seperti ini tampak lebih modern dan mewah yah!

15. Tidak kalah mewah dan modern, contoh desain rumah 2 lantai ini juga bisa jadi bahan inspriasi membangun rumah impianmu

16. Contoh denah rumah selanjutnya juga cocok diterapkan untuk kamu yang ingin membangun rumah dengan 3 kamar tidur

17. Desain rumah selanjtnya ini juga tidak kalah menarik, kamu bisa mengusung desain rumah nuansa putih dengan atap datar yang modern dan minimalis

18. Ingin gambaran desain rumah yang lengkap untuk bangunan 2 lantai, ini adalah salah satu contohnya

19. Untuk gambaran denah di lantai 2 bisa kamu terapkan desain seperti ini ada 2 kamar tidur, area jemuran, 2 kamar mandi, ada ruang keluarga dan ada juga ruang santai

20. Masih dengan desain denah rumah 6x8 meter yang modern, ini adalah gambaran desain yang sangat menarik loh!

21. Untuk gambar denah selanjutnya ini bisa kamu terapkan jika kamu ingin menambahkan area untuk mushola dan juga area untuk mencuci dan menjemur pakaian

22. Kesan minimalis dan elegan nampak dari desain rumah yang mungil seperti ini

23. Untuk denah pengembangan renovasi rumah, bisa kamu dapatkan dari desain denah rumah 2 lantai ini

24. Lanjut dengan contoh rumah minimalis yang tidak kalah menarik dengan desain lainnya diatas

25. Ini adalah contoh desain rumah kayu yang minimalis, sederhana dan cocok untuk yang tinggal di kampung

26. Untuk desain rumah diperumahan kamu bisa menerapkan desain rumah ini dengan 3 kamar tidur

27. Desain rumah 2 lantai ini memiliki 4 kamar tidur, 2 dilantai 1 dan 2 kamar lagi di lantai 2

28. Ini adalah salah satu rumah yang telah dibangun di tanah dengan luas 6x8 meter, sangat indah dan modern bukan?

29. Untuk inspirasi baru lagi, ini adalah contoh denah dari desain rumah yang memiliki 3 kamar tidur

30. Terakhir adalah contoh desain rumah 6x8 meter 2 lantai dengan kesan yang sangat mewah

