Desain Rumah 7x9 - Desain rumah modern minimalis kini semakin berubah, baik dari bentuk ataupun ukurannya. Mulai dari ukuran kecil sampai besar. Dapat dibuat dengan desain yang sederhana hingga mewah seperti istana. Semua itu tergantung keinginan dari pemilik rumah.
Kebanyakan keluarga di Indonesia tidak menyukai bentuk rumah yang terlalu ribet dan memiliki banyak aksen yang tidak telalu penting dan berguna. Sehingga desain rumah sederhana dengan ukuran sedang masih menjadi pilihan. Dari sekian banyak ukuran dan betuk rumah. Berikut adalah beberapa contoh desain rumah 7x9.
1. Desain Rumah Dua Lantai

Bagi keluarga dengan jumlah penghuni yang luamayan banyak, desain rumah dua lantai ini sangat cocok untuk diaplikasikan. Selain bisa membuat kamar dengan jumlah banyak, setiap ruangan juga bisa dibuat lebih luas.
2. Desain Rumah Dua Lantai 7x9 Sederhana

Desain Rumah 7x9 dua lantai ini sederhana namun terlihat sangat mewah. Cat tembok warna nude membuat rumah terlihat semakin cantik dan indah. Dilengkapi dengan pagar besi sehingga dapat membuat penghuni merasa terlindungi dari kemungkinan buruk yang bisa saja terjadi.
3. Desain rumah 7x9 satu lantai

Bagi kamu yang tidak suka dengan desain rumah dua lantai, mungkin pilihan desain rumah satu lantai ini patut menjadi pilihan. Selain desain atap yang unik, warna yang disuguhkan pun terlihat bersih dan elegan. Jangan lupa untuk menanam pohon di area taman, agar udara disekitar rumah terasa lebih segar.
4. Desain rumah 7x9 Sederhana

Desain rumah 7x9 satu lantai kali ini terlihat sederhana. Namun, tidak mengurangi keindahannya sama sekali. Dengan warna cat tembok yang gelap menambah kesan mewah pada rumah itu sendiri. Ditambah beberapa tanaman gantung yang diletakkan di depan membuat rumah terlihat lebih indah. Dilengkapi pagar rumah besi bercat putih juga membuat penghuni merasa lebih aman dan tenang untuk memarkirkan kendaraan pribadinya.
5. Desain Ruang Tamu Untuk Rumah 7x9

Jika kamu menginginkan rumah yang memiliki privasi bagi pemiliknya, pilihan ruang tamu yang minimalis ini boleh menjadi rujukan. Ruang tamu yang memiliki area tidak cukup luas, cocok untuk menerima orang baru yang bertamu. Sehingga tidak mengganggu penghuni rumah lain yang sedang bersantai di dalamnya.
6. Desain Kamar Tidur Utama Untuk Rumah 7x9

Kamar tidur utama biasanya sengaja dibuat dengan ukuran yang lebih luas. Desain yang bagus dan nyaman tentunya telah dipersiapkan dengan matang. Nuansa cat putih membuat ruangan tampak menjadi lebih luas.
7. Ruang Ibadah atau Mushola Untuk RUmah 7x9

Sebagai umat beragama terutama seorang muslim. Tempat ibadah yag bersih adalah suatu keharusan. Selain bersih desain yang indah juga patut untuk kamu coba.
8. Taman Outdoor Rumah 7x9

Dengan ukuran rumah yang cukup besar. Keberadaan taman ini mungkin bisa menjadi ide yang cemerlang. Setelah sibuk bekerja selama satu hari penuh, dengan melihat taman yang indah ini memungkinkan pikiranmu akan kembali menjadi cerah dan segar.
9. Dapur dan Ruang Makan Rumah 7x9

Desain rumah 7x9 bagian dapur bersih minimalis ini terlihat sangat nyaman untuk memasak. Dapur ini biasanya berada di area paling belakang. Kecil namun sangat penting untuk menunjang kebutuhan. Ruang makan yang berada dekat dengan dapur ini bertujuan untuk memudahkan ibu saat menaruh makanan usai memasak.
10. Desain Kamar Mandi dan Toilet

Kamar mandi dan toilet ini biasanya identik dengan sesuatu yang kotor. Maka dibutuhkan desain ruangan yang apik dan menarik. Dilengkapi dengan tanaman artifisial semakin membuat kamar mandi menjadi indah dan terlihat bersih dengan cat yang berwarna putih.
11. Renovasi Desain Rumah 7x9 berikut ini mungkin bisa kamu pertimbangkan untuk dicoba ketika kamu sedang ingin merombak rumah menjadi lebih tampak modern

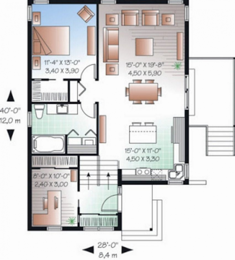
12. Denah Desain Rumah 7x9 meter berikut ini memiliki bangunan minimalis dengan 2 kamar tidur dan 1 kamar mandi

13. Contoh Desain Rumah 7x9 tampak sangat sederhana dengan cat berwarna hijau

14. Denah Desain Rumah 7x9 Minimalis ini memiliki halaman depan dan belakang yang cocok untuk dibuat taman yang hijau nan asri

15. Hasil Renovasi Desain Rumah 7x9 ini menampakan perbedaan tata letak dari kamar tidur, ada penambahan ruang tamu dan ruang keluarga, terdapat ruang makan dapur berada di paling ujung, teradapat juga tempat untuk mencuci dan menjemur pakaian

16. Desain Rumah 7x9 Modern memiliki 2 kamar tidur yang minimalis dengan interior yang modern

17. Desain Rumah 7x9 Split Level selanjutnya ini memiliki desain tampak depan yang tampak sangat natural

18. Desain Rumah 7x9 Minimalis berikut ini tampak sangat simple dan sederhana

19. Desain Rumah 7x9 Minimalis Modern ini adalah contoh denah rumah berbentuk 3D yang juga bisa menjadikan inspirasi dalam memilih interior rumah yang modern

20. Desain Rumah 7x9 3 Kamar Tidur ini nbisa menjadi salah satu desain impian yang sedang kamu cari-cari selama ini

21. Desain Rumah 7x9 1 Lantai selanjutnya ini bisa menjadi inspirasi untuk kamu yang belum memiliki gambaran tampak depan rumah dan juga denah di dalam rumah

22. Desain Rumah 7x9 1 Lantai 3 Kamar Tidur selanjutnya ini juga memiliki tampilan tampak depan yang sangat modern sehingga pastinya banyak dari kalian ter tarik memiliki rumah seperti ini

23. Gambar Denah Desain Rumah 7x9 berikut ini memiliki desain dengan 2 lantai, dan denah ini adalah contoh denah di lantai 2nya

24. Desain Rumah 7x9 4 Kamar Tidur selanjutnya ini memiliki 4 kamar tidur, dan juga memiliki 2 lantai dan tampak depan rumah ini sangat mewah

25. Apakah kamu sedang mencari Desain Rumah 7x9 Simple? maka kamu bisa simak penjelasan dari denah rumah dengan 2 kamar berikut ini

26. Gambar Desain Rumah 7x9 Minimalis selanjutnya ini sangat simple dan sederhana, apakah kamu terinspirasi?

27. Desain Rumah 7x9 Terbaru selanjutnya ini cocok untuk kamu yang memiliki tanah kapling di perumahan dan masih bingung rumah akan dibangun dan didesains eperti apa

28. Sketsa Desain Rumah 7x9 selanjutnya ini memiliki ruangan yang sangat lengkap dengan ada 2 kamar tidur, ruang tamu, ruang tengah multi fungsi, ada ruang makan, ada ruang keluarga, ada ruang untuk mushola ada dapur, ada teras belakang, 2 kamar mandi, dan paling belakang ada ruangan untuk dijadikan gudang dan taman belakang rumah minimalis

29. Denah Desain Rumah 7x9 2 Lantai selanjutnya ini sangat simple dan tampaknya cocok untuk kamu coba pertimbangkan dan bandingkan dengan contoh denah rumah 2 lantai lainnya

30. Terakhir ada Desain Rumah 7x9 Dapur Luas yang memiliki 3 kamar tidur dan desain bangunan menggunakan konsep modern dan natural dengan adanya batu alam dibagian dinding depan rumah

