Desain Rumah 7x9 - Sudah mencari beberapa desain rumah tetapi masih belum cocok, mungkin kamu masih kekurangan referensi dan inspirasi terbaru untuk membangun rumah impian.
Jadi untuk membantu kamu menemukan contoh desain rumah 7x9 meter terbaru dan terbaik di tahun ini, disini kami akan memberikan sekitar 30 contoh desain rumah minimalis dan modern yang dapat kamu jadikan sebagai inspirasi. Yuk langsung saja pilih salah satu dari beberapa desain rumah di bawah ini.
1. Konsep Renovasi Rumah Minimalis dan Modern

Pertama kami akan memberikan inspirasi terbaik untuk kamu yang ingin merenovasi rumah yang tadinya berukuran kecil menjadi rumah yang memiliki ruangan yang lebih lengkap.
Konsep renovasi rumah ini cocok untuk kamu yang tinggal di perumahan yang umumnya rumah hanya memiliki 2 kamar tidur, ruang tamu/ruang keluarga dan 1 kamar mandi.
Dengan contoh desain pertama ini, kamu akan bisa memiliki tambahan ruangan pertama adalah ruang tamu dengan konsep terbuka, dapur, ruang makan, mushola dan kamar mandi dipindah ke posisi belakang rumah.
2. Contoh Denah Desain Rumah 7x9 Meter

Selanjutnya pada contoh kedua terdapat denah Desain Rumah 7x9 meter yang bisa kamu contoh dalam menentukan setiap ruangan yang kamu bangun di rumah impian.
Tapi jika kamu lihat pada contoh denah diatas, ini adalah contoh denah untuk ukuran 10x20 meter, tapi jika kamu ingin membangun rumah berukuran 7x9 meter kamu bisa memperkecil skala perbandingan dari denah diatas.
selain itu contoh denah ini adalah contoh gambaran dalam membangun rumah 2 lantai, dan ini adalah penempatan ruang untuk lantai 1.
3. Denah Rumah Kecil

Masih membahas tentang tenah rumah berukuran kecil, pada konsep denah selanjutnya ini bisa diterapkan untuk kamu yang hanya memiliki lahan terbatas. Pada desain ini kamu bisa memiliki taman depan dan belakang rumah cukup luas.
Karena pada bangunan utama hanya memiliki beberapa ruang, pertama untuk ruang kamar tidur ada 2, 1 kamar mandi, ruang tamu, ruang makan dan dapur.
4. Desain Tampak Depan Minimalis Modern

Jika kamu membutuhkan referensi untuk membangun rumah dengan ukuran kecil, tapi desain tampak depan rumah lebih minimalis dan modern, maka desain ini wajib kamu lihat.
Dalam desain rumah keempat ini, kamu dapat memiliki rumah dengan pagar depan rumah yang tertutup rapat yang difungsikan untuk memberikan keamanan rumah. Untuk warna cat yang digunakan juga sangat sesuai dengan trend desain rumah terbaik 2020 atau beberapa tahun kedepan.
5. Desain Rumah Atap Miring Modern

Jika kamu hanya ingin membangun rumah dengan ukuran kecil dan tampilannya tidak ingin terlalu sederhana dan biasa-biasa saja. Maka konsep desain rumah yang satu ini bisa kamu pertimbangkan.
Karena pada desain rumah ini, kamu bisa menerapkan desain rumah dengan atap miring. Untuk rumah ini juga bisa dibilang dibangun dengan budget terbatas, terutama untuk kamu yang hanya memiliki tanah di gang sempit yang hanya biasa dilalui oleh motor.
6. Desain Rumah 7x9 Meter 3D

Untuk contoh Desain Rumah 7x9 meter selanjutnya ini adalah penggambaran denah menggunakan konsep 3D untuk membangun rumah dengan 2 kamar tidur.
Bisa kita lihat bersama pada konsep denah desain rumah satu ini kamu bisa memiliki teras depan rumah yang cukup luas, untuk bagian dapur ditempatkan di bagian depan bersama dengan ruang makan dan ruang tamu.
Rumah ini hanya memiliki 1 kamar mandi, 1 toilet, 2 kamar tidur dan 1 ruangan yang digunakan sebagai tempat laundry pakaian.
7. Desain Rumah 7x9 Meter Dengan Konsep Split Level

Desain rumah split level sekarang ini menjadi trend terbaru dalam dunia desain rumah di Indonesia. Dengan menggunakan desin split level maka bangunan 2 atau 3 lantai tidak terlalu terlihat dari depan dan bisa menambah ruangan menjadi lebih luas karena memanfaatkan sedikit ruangan.
8. Inspirasi Denah Desain Rumah 7x9 Meter 3 Kamar Tidur

Bisakah memiliki Desain Rumah 7x9 meter dengan 3 kamar tidur? Tentunya bisa loh. Kamu bisa menerapkan contoh dari denah desain rumah 3D satu ini. Kamu bisa membuat 3 kamar tidur di dalam satu rumah dengan 1 kamar tidur utama dan 2 kamar tidur anak.
9. Denah Rumah 2 Kamar Tidur

Lanjut lagi dengan contoh denah rumah dengan 2 kamar tidur yang konsepnya bisa kamu bangun di lahan 7x9 meter ataupun lebih luas seperti yang dicontohkan pada contoh desain di atas.
Pada contoh desain ini kamu bisa memiliki garasi mobil dan taman dibagian depan, sedikit teras depan rumah, ruang tamu, ruang makan, dapur, kemudian di sisi sebelahnya kamu buat 2 kamar tidur. Dibagian paling belakang kamu bisa membangun taman belakang rumah yang asri.
10. Desain Rumah 2 Kamar di Perumahan

Ke sepuluh kamu juga bisa melihat contoh desain rumah yang menerapkan 2 kamar tidur pada gambar denah yang dibuat diatas.
Pada konsep denah rumah di atas, umumnya bisa diterapkan di lahan yang telah kamu beli di sebuah perumahan. Jika kita lihat desain rumah kecil seperti ini sangat umum digunakan pada sebuah rumah untuk keluarga kecil yang ingin tinggal di perumahan dengan suasana yang nyaman.
11. Contoh denah desain selajutnya ini adalah contoh denah dengan ruangan yang lengkap dan memiliki 3 kamar tidur, 2 kamar mandi dan lengkap dengan dapur.

12. Untuk yang ingin contoh desain lengkap dari tampak depan dan denah rumahnya bisa terinspirasi dari desain ini.

13. Desain rumah 7x9 selanjutnya ini juga tidak kalah menarik untuk kamu yang ingin mendesain rumah untuk tinggal di kampung

14. Untuk bangunan 1 lantai yang modern dan memiliki 3 kamar tidur bisa di desain seperti ini

15. Konsep Desain rumah 7x9 kecil dan minimalis terbaik untuk minim budget adalah seperti desain ini

16. Desain nuansa klasik minimalis dan modern sangat nampak jelas di desain rumah ini

17. Ingin membangun rumah 2 lantai modern dan napak mewah, ini contohnya

18. Untuk rumah dengan 4 kamar tidur dan 3 kamar mandi mewah contohnya ini loh!

19. Konsep desai rumah minimalis sederhana ini cocok untuk kamu yang tinggal di desa

20. Untuk contoh denah desain 3D ini juga cocok diterapkan untuk keluarga kecil yang ingin rumah dengan interior modern

21. Bagaimana membangun rumah dengan Desain rumah 7x9 terbaik?

22. Rumah minimalis dengan konsep split level untuk memiliki banyak ruang atau kamar untuk lahan berukuran terbatas

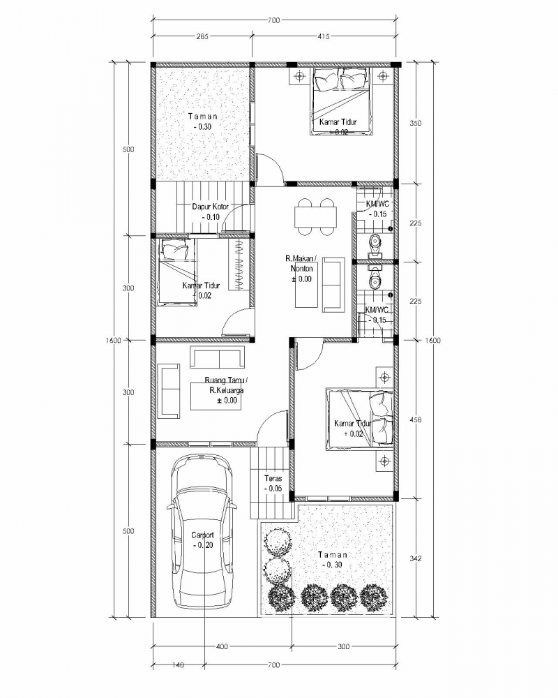
23. Ini adalah penjelasan detail tentang contoh denah Desain rumah 7x9 terbaru

24. Desain rumah 7x9 dengan 1,5 lantai atau split level ini cukup menarik untuk dijadikan inspirasi

25. Bangunan dengan 1 lantai yang minimalis dan modern ini juga tampak nyaman untuk dihuni

26. Dengan budget terbatas kamu bisa membangun rumah seperti desain satu ini dengan 2 kamar mandi ruang keluarga, dapur dan ada 1 toilet.

27. Lanjut lagi dengan contoh Desain rumah 7x9 meter yang memiliki kolam ikan

28. Untuk membangun rumah type 45, kamu bisa terinspirasi dari desain rumah ini

29. Karya RahmatzF ini juga tidak kalah menarik untuk menerapkan Desain rumah 7x9 dengan 2 kamar tidur

30. Terakhir adalah denah rencana untuk Desain rumah 7x9 dengan memiliki 2 kamar tidur dan ruangan yang lengkap seprti gudang, mushola, taman belakang rumah, dan dapur modern

