Desain Rumah 8x10 - Untuk yang mencari desain rumah minimalis dan modern untuk rumah ukuran 8x10 meter, kami disini akan menyediakan sekitar 29 contoh desain terbaik yang dapat kamu pilih.
Jadi kamu bisa melihat detail gambar yang kami bagikan disini satu persatu untuk menentukan denah rumah yang tepat, desain tampak depan dan beberapa gaya desain yang akan membuat bangunan rumah impian yang kamu buat sesuai dengan keinginan.
1. Denah Desain Rumah 8x10

Pertama kami akan memberikan contoh denah Desain Rumah 8x10 meter untuk membangun rumah dengan type 60. Jadi bangunan rumah ini sangat cocok untuk kamu yang ingin membangun rumah dengan 3 kamar tidur.
2 Kamar Pertama berukuran sama dan kamar ketiga memiliki ukuran lebih kecil, bisa kamu jadikan sebagai kamar anak ataupun kamar pembantu.
2. Denah Rumah 3 Kamar Tidur

Masih sama dengan contoh desain rumah yang pertama, pada contoh denah satu ini kamu bisa memiliki rumah dengan 3 ruangan yang dibuat sebagai kamar tidur. Selain itu kamu juga bisa membangun rumah lengkap dengan ruang tamu, ruang makan, dapur, carport dan halaman depan serta halaman belakang untuk dijadikan taman yang indah.
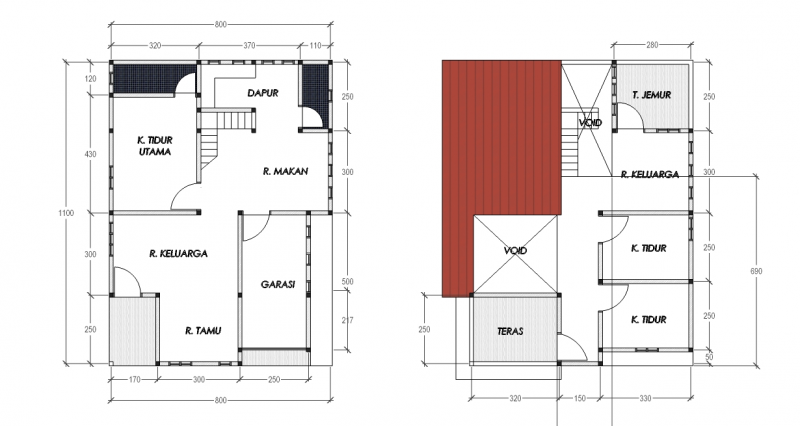
3. Denah Rumah 3 Kamar Tidur Minimalis

Selanjutnya adalah contoh desain dari denah rumah dengan 3 kamar tidur, pada contoh desain di atas kamu bisa membangun rumah di area perumahan yang memiliki luas 8x10 meter.
Dengan desain ini kamu juga sudah bisa memiliki rumah dengan ruangan yang lengkap terdiri dari ruang tamu, ruang makan, dapur, dan ada 2 kamar mandi.
4. Konsep Denah Rumah 3 Kamar Tidur Luas

Masih dengan contoh denah rumah dengan 3 kamar tidur, tetapi yang membedakan konsep dari desain rumah satu ini. Kamu bisa membangunnya untuk rumah dengan 2 lantai.
jadi selain kamu bisa memiliki 3 kamar tidur di lantai 1, kamu juga bisa menambahkan beberapa kamar tidur lagi di lantai 2 dan menambahkan beberapa ruang fungsional lainnya.
5. Desain Rumah Minimalis 3 Kamar Tidur 2 Kamar Mandi

Untuk contoh desain selanjutnya ini kamu bisa mendapatkan inspirasi denah rumah 3 kamar tidur dan 2 kamar mandi. Pada denah rumah minimalis ini, kamu bisa memiliki rumah dengan balkon di lantai 1 untuk tempat besantai yang terhubung dengan kamar tidur.
Jadi bisa dibilang dengan menerapkan desain rumah seperti ini, rumah kamu akan tampak sangat modern dilihat dari interior dan penataan ruangan di dalamnya.
6. Desain Rumah di Perumahan

Lanjut lagi dengan contoh desain rumah yang cocok diterapkan di aea perumahan. Jika kamu memiliki tanah yang cukup luas sekitar 8x10 meter, maka kamu dapat membangun rumah dengan 3 kamar tidur.
Selain itu kamu juga dapat melengkapi rumah dengan ruang tamu, ruang keluarga, dapur dan 2 kamar mandi.
7. Rumah Lengkap Dengan Tempat Jemuran

Jika kamu saat membangun rumah sangat memikirkan kalau menjemur pakaian dimana, maka kamu bisa mendapatkan inspirasi terbaik dari contoh denah ini.
Dimana kamu bisa memiliki 3 kamar tidur, 2 kamar mandi, ruang tamu, ruang keluarga, teras depan rumah, taman, carport dan tentunya area untuk menjemur pakaian di lantai 2.
8. Gambar Denah Rumah 3 Kamar Minimalis 8x10 Meter

Kamu masih kurang puas dengan beberapa contoh penerapan desain rumah 8x10 meter diatas? Mungkin kamu bisa cocok dengan contoh denah rumah 3 kamar minimalis ini.
Karena pada desain rumah minimalis ini setiap kamar memiliki area yang cukup luas. Apalagi dengan desain kamar utamanya, memiliki kamar mandi dalam dan juga ada tempat wardrop untuk tempat penyimpanan pakian.
9. Contoh Desain Rumah 8x10 Meter

Pada urutan yang ke 10, kamu bisa membangun rumah impan dengan rumah yang bisa dihuni dengan nyaman dengan gaya yang modern dan minimalis. Pada desain ini kamu bisa mendapatkan gambaran contoh desain dengan interior yang minimalis dan modern.
10. Contoh Denah Rumah 5 Kamar Tidur

Pada denah selanjutnya ini bisa kamu terapkan untuk membangun rumah yang memiliki banyak kamar, pada contoh desain ini kamu bisa membangun rumah dengan 5 kamar sekaligus.
Jadi selain kamu bisa membangun rumah impian untuk keluarga besar, pada contoh desain seperti ini kamu juga bisa menerapkan untuk rumah yang dijadikan sebagai tempat kost-kostan.
11. Ini adalah contoh penerapan konsep desain rumah untuk bagian inteiror dapur dan ruang makan

12. Untuk lahan yang sempit hanya berukuran 8x10 meter kamu bisa membangun rumah dengan split level dengan 3 kamar tidur, 2 kamar mandi dan bagian depan bisa dibuat parkiran untuk 2 mobil

13. Konsep desain rumah selanjutnya ini adalah penerapan desain rumah dengan 3 kamar tidur yang minimalis

14. Contoh desain selanjutnya ini sangat modern dan minimalis dengan 2 kamar tidur

15. Kemudian masih dengan contoh desain rumah dengan 3 kamar tidur yang melebar ke samping

16. Untuk selanjutnya adalah penerapan konsep rumah panggung dengan nuansa klasik bangunan terbuat dari kayu

17. Ini adalah rancangan untuk contoh desain rumah dengan 2 lantai di lahan 8x10 meter

18. Lanjut lagi dengan penerapan konsep denah rumah 3 kamar dengan ukruan 8x10 meter

19. Ini adalah inspirasi desain rumah 8x10 minimalis 2 lantai yang tampak sangat mewah

20. Untuk desain selanjutnya ini adalah gambaran desain rumah di lantai 2

21. Pada desain ini kamu bisa memiliki rumah dengan 4 kamar tidur, ada kolam renang mini, rooftop dan mushola

22. Untuk contoh desain rumah yang mungil dan minimalis bisa kamu dapatkan inspirasi dari contoh ini

23. Pada desain rumah ini memiliki 3 kamar tidur dengan tampak depan yang modern

24. Sketsa Desain Rumah 8x10 dengan menerapkan desain split level 1,5 lantai

25. Untuk contoh desain berikut ini adalah penerapan desain untuk rumah dengan 2 kamar tidur

26. Ingin rumah lengkap dengan mushola, 3 kamar tidur dan 3 kamar mandi maka desain ini tepat untuk dijadikan inspirasi

27. Untuk gambaran desain rumah 2 lantai di lahan 8x10 meter terbaik adalah seperti ini

28. Ini adalah contoh konsep desain rumah 2 lantai di lahan terbatas seluas 8x10 meter

29. Konsep desain rumah ini juga sangat cocok untuk kamu yang mencari inspirasi desain rumah 8x10 meter dengan desain simple dan sederhana

