Desain Rumah 8x15 - Untuk memiliki rumah impian sesuai dengan kita inginkan selama ini, kita tidak terlepas dari contoh desain rumah. Karena itu kamu harus mencari banyak referensi sebelum rumah benar-benar kamu bangun.
Ketika kamu sudah memikirkan anggaran untuk membeli tanah dan membangun rumah, mungkin lahan seluas 8x15 meter adalah yang kamu pilih karena sesuai dengan budget dan ukuran yang tepat untukmembangun rumah.
Karena itu, pada kesempatan kali ini kami akan mengajak kamu yang sedang mencari referensi desain rumah 8x15 meter silahkan simak sekitar 30 contoh desain rumah minimalis dan modern berikut ini.
1. Desain Rumah 8x15 Meter Lengkap Dengan Gudang dan Mushola

Apakah kamu sedang mencari contoh Desain Rumah 8x15 meter sesuai dengan impian dengan memiliki rumah 2 lantai, dengan ada gudang, tempat untuk sholat dan juga terdiri dari 3 kamar tidur? Jika ini yang kamu cari selama ini, maka kamu tidak boleh mengabaikan contoh desain rumah pertama satu ini.
Pada contoh desain rumah yang pertama kamu bisa memiliki rumah dengan bangunan 2 lantai yang tampak depan sangat modern dan minimalis. Ditambah lagi area depan rumah kamu bisa memiliki halaman yang cukup luas untuk parkir mobil dan motor.
Di halaman depan rumah juga kamu bisa memiliki taman depan rumah yang dapat menghijaukan dan menyegarkan area rumah. Untuk bagian lantai 2 kamu bisa memiliki balkon untuk tempat bersantai di pagi atau sore hari.
2. Tampak Depan Minimalis

Jika kamu masih ingin melihat contoh desain rumah minimalis modern lainnya, maka kamu juga tidak boleh mengabaikan contoh desain kedua ini.
Pada desain rumah yang kedua, kamu dapat membangun rumah dengan konsep 2 lantai. Untuk bagian depannya kamu dapat menerapkan batu alam yang ditempel untuk memberikan nuansa rumah agar tampak natural tapi tetap memiliki gaya yang modern.
3. Contoh Denah Desain Rumah 8x15

Pada inspirasi ketiga ini, kami akan mengajak kamu yang masih bingung dalam mencari referensi untuk denah rumah dengan 3 kamar tidur.
Jadi kamu jika ingin menerapkan penempatan yang terbaik, mungkin contoh desain ketiga ini bisa menjadi inspirasi yang tepat. Kamu dapat memiliki 2 kamar tidur disisi kanan dan ditengah-tengahnya kamu buat kamar mandi.
Untuk kamar ketiga kamu letakan di sisi kiri dibagian belakang rumah, di depannya kamu bisa membuat ruang makan dan sampingnya adalah dapur.
4. Contoh Desain Rumah 8x15 Mungil

Untuk kamu yang sudah memiliki tanah seluas 8x15 meter, tetapi budget untuk membangun rumah masih terbatas. Kamu masih bisa menerapkan konsep desain rumah minimalis sederhana seprti ini.
Kamu dapat memiliki rumah mungil yang sederhana dengan memiliki 2 kamar tidur. Tetapi kamu masih bisa memiliki ruangan yang lengkap untuk sebuah rumah.
5. Konsep Desain Rumah 8x15 di Perumahan

Untuk desain kelima, kita bisa melihat dengan sekesama karya dari arsitektur Aditra Perkasa Studio. Pada desain ini menggambarkan suasana rumah yang asri dengan taman depan rumah yang minimalis di kanan dan kirinya.
Pada bagian depan rumah umumnya area carport terletak di sisi kanan atau kiri, tetapi dengan konsep terbaru ini posisi garasi mobil di area terbuka diletakan dibagian tengah rumah.
6. Desain Rumah 8x15 Meter 2 Lantai

Untuk keenam, kamu bisa melihat konsep dari desain rumah yang dibuat dengan 2 lantai. Jadi untuk kamu yang memiliki banyak anggaran untuk membuat rumah impian dengan 2 lantai di area seluas 8x15 meter, maka contoh desain ini bisa menjadi pilihan paling tepat.
Karena kamu bisa memiliki rumah dengan 3 kamar tidur, 2 kamar mandi, dan ruangan pelengkap lainnya yang wajib ada di dalam sebuah rumah.
7. Tampak Depan Rumah 2 Lantai Minimalis

Lanjut lagi dengan contoh Desain Rumah 8x15 Meter dengan konsep rumah 2 lantai. Pada desain rumah satu ini, kita bisa melihat secara seksama bahwa rumah ini dibuat dengan konsep modern minimalis.
Dimana kamu dapat menemukan bangunan yang didesain dengan gaya kotak-kotak. Pada desain bagian depan rumah juga lebih di dominasi oleh dinding kaca berukuran lebar dan lanjang yang dijadikan sebagai jendela rumah.
8. Desain Rumah Loteng

Selanjutnya di desain yang ke delapan, kami akan memberikan referensi untuk kamu yang ingin membuat desain rumah yang sangat sederhana dan lebih terkesan klasik estetik.
Pada desain rumah ini, kamu bisa membuat gaya desain klasik yang membiarkan tumpukan bata pada dinding rumah tidak dilapisi lagi dengan semen halus untuk nantinya di cat.
Untuk desain rumah satu ini juga dibuat lebih memanjang, untuk desain atap juga sangatlah unik karena menggunakan konsep atap miring.
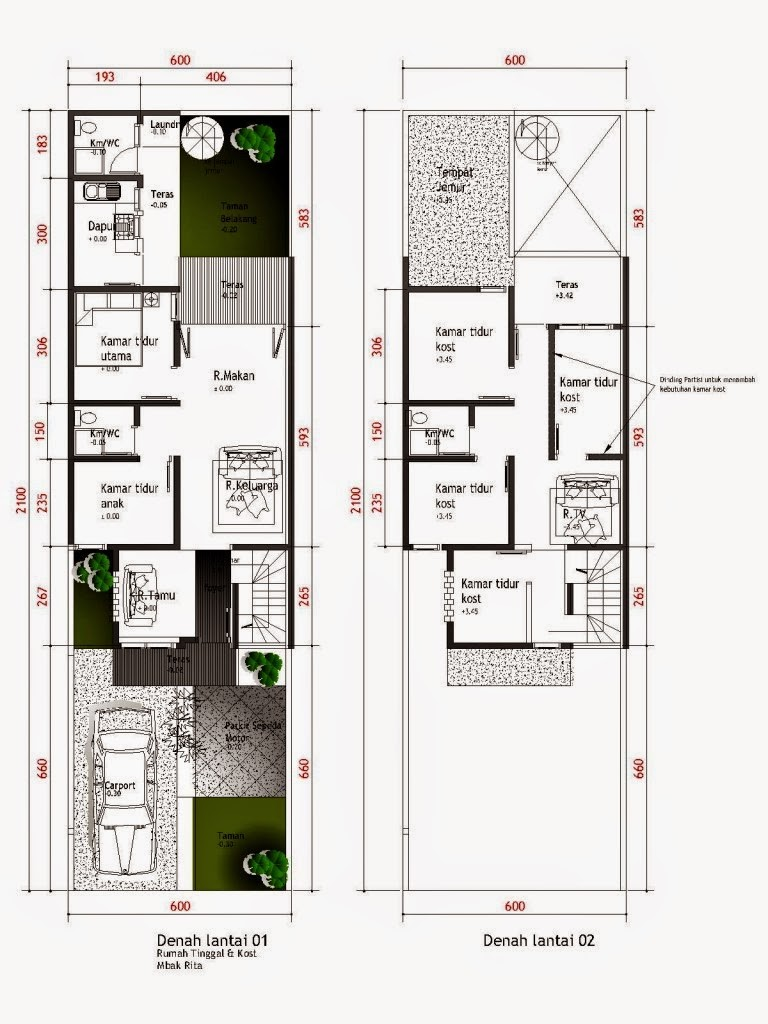
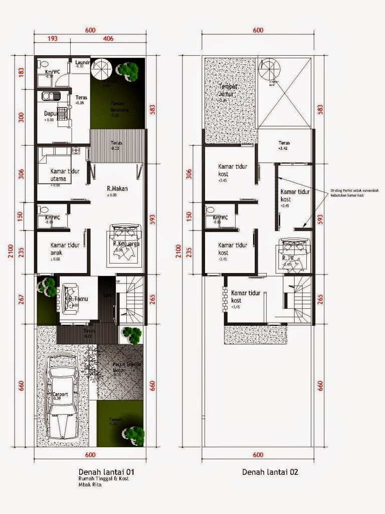
9. Denah Rumah Dengan 3 Kamar Tidur di Lahan 8x15 meter

Dengan memiliki lahan seluar 8x15 meter, sebenarnya kamu akan bisa lebih banyak berkreasi untuk mendesain rumah sesuai dengan yang kamu impikan.
Contohnya saja pada denah rumah satu ini, kamu dapat memiliki rumah dengan penempatan posisi setiap ruangan sesuai dengan keingian. Jadi jika kamu belum memiliki gambaran penempatan ruangan terbaik, mungkin contoh denah rumah satu ini bisa dijadikan referensi terbaik.
10. Desain Rumah Dengan Garasi Luas

Jika kamu dalam membangun rumah ingin memiliki garasi yang luas, maka konsep dari desain rumah yang berikut ini mungkin bisa menjadi pilihan terbaik.
Apalagi dalam contoh desain rumah ke sepuluh ini memiliki konsep desain yang unik yaitu dengan menerapkan desain rumah ala jepang.
11. Contoh desain rumah 8x15 1 lantai ini memiliki 3 kamar tidur

12. Lanjut dengan contoh desain rumah lainnya yang dibangun dengan ukuran 8x15 dengan 2 kamar tidur yang minimalis modern

13. Desain rumah di pedesaan ini menggunakan gaya modern tropis lengkap dengan kolam renang loh

14. Untuk desain selanjutnya ini adalah desain rumah 8x15 meter dengan 3 kamar tidur dan ada taman di dalam rumah

15. Selanjutnya ini adalah konsep desain rumah sederhana dengan bentuk geometris kotak dengan atap datar

16. Ini adalah desain rumah 8x15 meter berukuran kecil lengkap dengan kolam renang, sky garden, mini gym dan ada office room loh

17. Selanjutnya ada desain rumah 2 lantai dengan fasilitas ruangan yang lengkap karya yogie ewanata

18. Ini adalah contoh desain rumah 8x15 meter dengan desain rumah kayu yang memiliki 3 kamar tidur yang klasik minimalis

19. Lanjut dengan gaya desain scandinavian dengan kearifan lokal yang memiliki 3 kamar tidur

20. Ini adalah inspirasi desain rumah minimalis dan modern dengan bangunan yang klasik

21. Selanjutnya ada contoh denah rumah 2 lantai yang cocok untuk membangun rumah 8x15 mter

22. Denah rumah berikut ini adalah penerapan denah rumah untuk 4 kamar tidur dengan 1 lantai

23. Untuk memiliki tampilan yang minimalis tropis kamu bisa gunakan desain ini ketika membangun rumah di desa

24. Rumah dengan 2 lantai yang tertutup seperti ini juga bisa dijadikan referensi dalam membangun rumah mewah dengan budget terbatas

25. Masih dengan konsep desain rumah 2 lantai minimalis, yang memiliki desain sangat mewah dan modern

26. Ini adalah rumah yang didesain cocok untuk kamu yang tinggal di perumahan modern

27. Lanjut lagi dengan konsep desain rumah kontemporer yang terdiri dari 3 kamar tidur, 2 kamar mandi, ada ruang kerja, dapur dan area BBQ

28. Denah rumah berikutnya ini cocok untuk kamu yang ingin menerapkan rumah sederhan dengan 2 kamar tidur di tanah seluas 8x15 meter

29. Denah desain rumah 8x15 meter ini juga tidak kalah menarik untuk kamu jadikan sebagai inspirasi

30. Terakhir ada contoh penerapan halaman belakang yang minimalis di lahan seluas 8x15 meter

