Desain Rumah 9 x 12 - Memiliki rumah yang cukup luas menjadi keinginan banyak orang. Namun rumah yang luas akan tampak biasa saja jika tidak didesain dengan baik. Sebenarnya ada banyak cara untuk mendesain rumah antara lain dengan browsing di internet selain itu juga berkonsultasi dengan arsitek atau orang yang lebih paham.
Jika ingin menghemat biaya maka kita bisa melihat beberapa desain rumah di internet yang selanjutnya bisa kita terapkan pada rumah yang akan kita bangun. Seperti dibawah ini ada beberapa desain rumah 9 x 12 yang perlu kita tahu.
1. Desain Rumah 9 x 12 dengan 4 kamar

Desain rumah ukuran 9 x 12 ini mempunyai 4 kamar. Untuk ukuran ketiga kamarnya hampir sama,tetapi ada satu kamar yang kecil mempunyai ukuran 2.5 x 3.5. Kamar yang kecil tersebut bisa untuk orang yang bekerja dirumah kita ataupun ada saudara yang mau menginap.
Untuk bagian depan rumah juga terdapat teras dengan beberapa kursi. Jika masuk kedalam maka akan menjumpai ruang tamu. Untuk jumlah kamar mandi yang ada berjumlah 2. Kamar mandi yang satu ketaknya didalam kamar utama,sedangkan kamar mandi 2 berada di dekat kamar anak-anak.
2. Desain Rumah 9 x 12 dengan 3 kamar tidur

Untuk desain rumah diatas terdiri dari 3 kamar tidur. Untuk halaman depannya cukup luas dan terdapat juga carport. Dengan perpaduan cat rumah warna kuning,orange serta putih menjadikan rumah tampak segar dan asri. Untuk pagar depan rumah menggunakan besi,tetapi untuk pintu gerbangnya menggunakan kayu sehingga tampak natural.
3. Desain Rumah 9 x 12 simpel

Desain ini mempunyai 3 kamar. Untuk kamar utama terletak di bagian depan dengan jendela menghadap ke taman. Selain itu pada bagian depan yng lain terdapat teras kecil yang bisa digunakan untuk bersantai maupun menerima tamu.
4. Desain Rumah 9 x 12 dengan taman yang luas di depan dan belakang

Desain rumah ini memiliki taman yang luas baik yang ada didepan maupun dibelakang rumah. Untuk tamannya sendiri berbentuk huruf L. Terdapat juga carport, disebelah carport kita akan menjumpai kamar tidur utama dengan jendela yang menghadap kearah carport.
5. Desain Rumah 9 x 12 Halaman depan terbatas

Desain rumah ini tampak sederhana dan minimalis. Didalamnya terdapat 3 kamar tidur yang berukuran luas. Untuk taman depannya tidak terlalu luas. Terdapat juga carport serta teras yang bisa digunakan untuk menerima tamu.
6. Desain Rumah 9 x 12 dengan penambahan mushola

Desain rumah ini terlihat asri dan kokoh. Didalamnya terdapat 3 kamar tidur,terdiri dari 1 kamar tidur utama dan 2 kamar tidur anak. Untuk kamar mandinya berjumlah 2. Dan didalam rumah ini juga terdapat mushola yang bisa digunakan untuk berdoa bagi umat muslim.
7. Desain Rumah 9 x 12 Modern

Desain ini terdiri atas 3 kamar tidur. Terdapat 2 buah pintu gerbang untuk dapat masuk kedalam rumah. Yang pertama terletak disebelah kiri yang hanya bisa dilalui oleh satu orang. Sedangkan pintu lainnya terbuat dari material besi dan kayu. Pintu ini bisa dilalui oleh mobil.
8. Desain Rumah 9 x 12 Mewah 2 Lantai

Desain rumah ini tampak kekinian sekali. Untuk taman bagian depan juga sudah dikondisikan, terdapat rumput yang menghijau. Untuk atapnya msih dipakai oleh dokter dan saya.
9. Desain Rumah 9 x 12 Modern Minimalis

Untuk desain rumah ini terlihat sangat modern sekali. Kesan natural bisa didapat dengan menambahkan material kayu.
10. Desain Rumah 9 x 12 Dengan Warna Cat Kalem

Kita bisa memilih warna sesuai dengan kesukaan kita. Dengan konsidi yang belum tahu entah sampai kapan berakhir maka dipunggung atau iklan.
11. Desain Rumah 9 x 12 selanjutnya ini memiliki desain yang sederhana dengan taman samping rumah dan depan rumah, selain itu contoh denah ini juga memiliki 3 kamar tidur, 1 kamar tidur utama dan 2 kamar tidur anak

12. Desain Rumah 9 x 12 Minimalis selanjutnya ini memiliki bangunan berukuran kecil tapi lengkap karena memiliki 3 kamar, ruang tamu, ruang keluarha dan dapur

13. Desain Rumah 9 x 12 Tampak Depan ini bisa dikatakan cukup simple dan sederhan dan cocok untuk kamu yang sedang mencari desain rumah yang minimalis

14. Denah Desain Rumah 9 x 12 dengan 3 kamar tdiur ini sangat simple dan minimalis

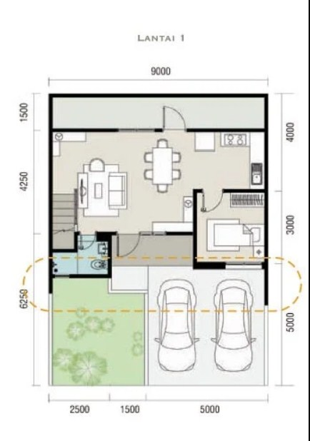
15. Jika kamu ingin membangun rumah dengan 2 lantai, maka inspirasi Desain Rumah 9 x 12 Lantai 1 bisa kamu jadikan contoh

16. Lanjutan dari rancangan desain diatas, ini adalah gambaran Desain Rumah 9 x 12 Lantai 2 nya

17. Inspirasi Desain Rumah 9 x 12 lainnya yang dapat kamu contoh adalah desain rumah 3 kamar berikut

18. Contoh Desain Rumah 9 x 12 selanjutnya memiliki bangunan cukup luas dengan menyisakan halaman depan untuk dibuat taman dan kolam ikan

19. Desain Rumah 9 x 12 3 kamar selanjutnya ini memiliki taman depan rumah, samping rumah dan belakang rumah

20. Desain Rumah 9 x 12 Simple ini mungkin bisa jadi inspirasi untuk kamu dalam membangun rumah di tanah seluar 9x12 meter

21. Desain Rumah 9 x 12 Sederhana selanjutnya ini memiliki ukuran bangunan yang kecil tapi muat untuk 3 kamar

22. Jika kamu tidak memiliki software untuk mendesain denah rumah kamu juga bisa mencontoh Sketsa Desain Rumah 9 x 12 ini dalam membuat konsep denah rumah

23. Desain Rumah 9 x 12 Modern ini sangat cocok untuk kamu yang ingin membangun rumah impian dengan 2 lantai yang terlihat mewah namun minimalis

24. Desain Rumah 9 x 12 Minimalis Sederhana ini cocok untuk kamu yang ingin membangun rumah dengan 1 lantai saja

25. Desain Rumah 9 x 12 Terbaru ini adalah contoh pembuatan desain rumah dengan software desain rumah 3 dimensi

26. Masih bingung konsep untuk mendesain rumah 2 lantai? mungkin kamu bisa mendapatkan inspirasi dari Desain Rumah 9 x 12 2 Lantai berikut

27. Gambar Desain Rumah 9 x 12 selanjutnya ini juga sangat menginspirasi kamu yang ingin membangun rumah dengan ruangan yang banyak

28. Gambar Sketsa Desain Rumah 9 x 12 selanjutnya ini sangat cocok untuk kamu yang ingin memiliki rumah dengan 4 kamar tidur

29. Punya tanah hook, tapi bingung membuat konsep desainnya? maka kamu wajib melihat Desain Rumah 9 x 12 Hook berikut ini

30. Desain Rumah 9 x 12 Modern Minimalis selanjutnya ini sangat simple tapi terlihat sangat modern ditambah unsur natural dari bahan lantai kayunya

