Pada artikel kali ini kami akan membahas mengenai desain rumah mewah 1 lantai 4 kamar tidur. Memiliki rumah mewah merupakan impian dari semua orang. Berikut ini beberapa desain rumah mewah 1 lantai 4 kamar tidur yang bisa menjadi referensi untuk membangun hunianmu.
1. Contoh Denah Desain Rumah Mewah 1 Lantai 4 Kamar Tidur

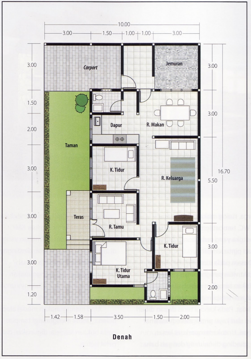
Jika dilihat dari denah tersebut, carport berada di dua sisi rumah. Carport pertama berdekatan dengan ruang kantor, sedangkan carport kedua berdekatan dengan gudang. Di dekat kedua carport tersebut juga terdapat taman-taman kecil yang asri.
Nampaknya rumah ini mengusung tema yang alami karena memiliki banyak area taman. Area taman ini bisa menjadi tips bagi kalian yang menginginkan suasana segar dan sejuk di daerah perkotaan. Masuk ke area dalam rumah, ruang tamunya terletak bersebelahan dengan kantor.
Kamar utamanya dilengkapi dengan dress room dan juga kamar mandi dalam. Sementara untuk kamar anak terdiri dari 2 buah dengan kamar mandi luar yang terletak diantara 2 kamar anak tersebut.
Untuk ruang keluarga, ruang makan, dan dapur dibuat tanpa sekat sehingga terlihat lebih luas. Area belakang terdapat ruang cuci jemur dan juga kamar pembantu serta kamar mandi.
2. Desain Rumah Minimalis 3 Lantai Mewah dan Elegan

Inilah tampak depan tampilan rumah mewah 1 lantai dengan 4 kamar tidur. Tiang-tiang di rumah ini menggunakan marmer sehingga tampak mewah. Aksen cat warna putih juga membuat rumah ini semakin mewah dan elegan.
Carport nya berada di sisi kanan rumah, sementara terasnya tidak terlalu besar. Selain itu, ada taman kecil dan rerumputan yang membuat rumah ini terlihat asri dan sejuk. Rumah ini menggunakan jendela kaca berukuran besar yang bagus untuk pencahayaan.
3. Desain Rumah Dengan Carport

Denah rumah ini memiliki teras di sisi rumah dengan ukuran yang cukup besar. Begitu masuk kamu akan langsung ke ruang tamu. Sebelah ruang tamu terdapat kamar utama yang dilengkapi dengan kamar mandi dalam. Sebelah lainnya dari ruang tamu terdapat kamar anak.
Sementara itu, bersebelahan dengan kamar utama juga terdapat kamar anak lainnya. Ruang keluarga dan ruang makan terletak bersebelahan dengan sekat tanpa pintu. Di dekat area ruang makan terdapat dapur dan kamar mandi.
Area belakang rumah terdapat carport dan tempat menjemur serta satu space kosong yang bisa difungsikan. Area kosong di dekat teras dan kamar utama digunakan sebagai taman agar rumah lebih sejuk.
4. Contoh Denah Rumah 4 Kamar Tidur Yang Luas

Pada desain ini, tidak menggunakan space yang besar untuk teras. Tapi space tersebut lebih dimanfaatkan untuk taman depan. Begitu masuk rumah kamu akan menjumpai area ruang kamu. Ruang keluarga dan ruang makan dibuat tanpa sekat.
Garasi mobil dibuat disisi rumah yang terhubung dengan dapur dan area peralihan menuju ruang makan atau ruang keluarga. Kamar utamanya terletak di dekat taman belakang yang dilengkapi dengan kamar mandi. Sementara itu, terdapat taman terbuka di area depan kamar utama.
Terdapat 2 kamar anak yang masing-masing dilengkapi dengan kamar mandi. Terdapat juga kamar mandi di area belakang yang bersebelahan dengan tempat cuci. Rumah ini memiliki taman depan dan belakang yang cukup luas. Selain menambah keasrian juga menambah keindahan rumah ini.
5. Desain Rumah Minimalis Klasik Natural

Apabila kamu memiliki tanah yang lebih luas, kamu bisa membuat hunian dengan desain seperti ini. Tampak depan rumah ini terlihat mewah. Penggunaan dinding bata ekspos membuat rumah ini terlihat natural dan klasik, cocok untuk interior industrialis.
Jika melihat denah rumah ini, penggunaan space sangat diperhitungkan sehingga memaksimalkan ruangan yang ada. Rumah ini memiliki teras yang cukup luas disertai dengan foyer sebagai space peralihan.
Rumah ini memiliki kamar utama yang dilengkapi dengan wardrobe dan kamar mandi, 3 kamar anak, dan 1 kamar pembantu. Ruang makan dan ruang keluarganya dibuat tanpa sekat dengan pemandangan taman indoor.
Sebagai sarana ibadah, rumah ini juga memiliki musholla yang berada di dekat taman. Desain rumah ini juga memiliki area teras belakang.
6. Denah Rumah Dengan Penataan Ruangan Yang Tepat

Antara ruang tamu dengan ruang makan dipisahkan dengan sekat tanpa pintu. Sementara antara ruang makan dengan ruang keluarga dibuat tanpa sekat. Tiap kamar dalam rumah ini memiliki kamar mandi masing-masing. Terdapat area terbuka di belakang rumah untuk memberikan kesegaran.
7. Rumah 4 Kamar Dengan Kolam Renang

Jika dilihat dari tampak depan rumah ini sangatlah mewah. Adanya kolam dan kursi-kursi untuk bersantai menambah suasana mewah. Desain rumah ini terlihat seperti dua area yang disatukan. Desain rumah ini cocok buat kamu yang memiliki lahan luas.
8. Rumah Dengan 4 Kamar Tidur Tingkat

Space yang terbatas tidak menghalangi untuk membuat rumah yang tampak mewah. Rumah tanpa sekat ini bisa membuat space sempit akan terlihat lebih luas. Kamar mandinya terpusat pada satu tempat jadi tiap kamar tidak dilengkapi dengan kamar mandi.
9. Rumah 4 Kamar Nuansa Modern Klasik

Kemewahan sangat terasa apabila melihat desain rumah ini. Desain rumah mewah 1 lantai 4 kamar ini memiliki banyak jendela kaca besar yang berfungsi sebagai pencahayaan dan sirkulasi udara. Rumah ini juga memiliki desain atap yang seperti menara sehingga tampak unik.
10. Denah Dan Sketsa Rumah 4 Kamar Tidur

Rumah dengan 4 kamar ini memiliki kolam renang, 4 kamar tidur, ruang tamu, ruang makan, dan mini bar. Sebagai penghijauan, area rumah ini juga memiliki taman dan ditanai dengan pepohonan agar menjadi sejuk.
Dalam memabangun sebuah hunian, kebutuhan kmar tidur yang relatif banayk seringkali membuat kita menjadi bingung. Untuk itu desain rumah mewah 1 lantai 4 kamar tidur ini bisa ditiru desainnya dalam mebnagun rumah impian
11. Desain rumah mewah dengan 4 kamar tidur yang cocok diterapkan pada lahan yang luas

12. Desain rumah mewah yang menggunaan atap flat disebagain, serta dominasi warna putih yang terlihat elegan

13. Desain ruamh mewah denagn dekorasi batu alam pada tiang dibagian depannya

14. Desain rumah mewah dengan halaman yang luas disekelilingnya

15. Desain rumah mewah denagn pepohonan disekelilingnya menambha kesan asri

16. Desain rumah mewah dengan perpaduan dekorasi batu alam yang cantik

17. Desain rumah mewah yang luas dengan desain jendela dan pintu yang mirip dengan rumah jaman Belanda

18. Desain rumah mewah yang meiliki garasi luas serta balkon di lantai 2 untuk tempat bersantai

19. Desain rumah denagn 4 kamar tidur yang mengakomodasi seluruh anggota keluarga dengan runag publik yang terletak dibagian tengah

20. Desain ini cocok digunakan sebagai hunian keluarga karena antara area publik dan area privat tidak terlalu memisah

21. Desain rumah mewah tanpa sekat antara ruang tamu, runag keluarga dan ruang makan

22. Desain rumha mewah denagn 4 kamar dan setiap masing-masing kamar memiliki toilet

23. Desain rumah dengan 4 kamar dan memiliki garasi yang luas yang bisa memuat 2 mobil

24. Desain rumah tanpa menggunakan sekat diabgain tengahnya agar runagannya terlihat luas

25. Desain rumah 4 kamar, 2 kamar terletak dibagian samping kanan dan kiri dengan terdapat kamar mandi antara kedua kamar tersebut

26. Desain rumah dengan 4 kamar dan menggunakan pagar yang terbuat dari kayu

27. Desain rumah dengan taman minimalis yang terletak dibagian depan

28. Desain rumah dengan 4 kamar yang memiliki ruang tamu dengan ukuran yang luas

29. Desain rumah mewah 4 kamar tidur dengan atap yang berbentuk unik

30. Desain rumah mewah dengan ukuran kamar tidur utama yang luas dan terdapat walk in closet dibagian dalamnya

