Desain rumah minimalis 2 lantai ukuran 6x7 - Mempunyai rumah yang bagus dan mewah memang impian semua orang. Biasanya mereka terpegaruh dengan iklan yang di tayangkan di televisi. Lantas bagaimana jika impian besar kalian ini di batasi dengan terbatasnya lahan yang di miliki? Berikut solusinya, desain rumah minimal
is 2 lantai ukuran 6x7 :
1. Desain rumah mewah lantai

Desain rumah minimalis yang pertama di fokuskan pada pemilihan dinding yang di buat dengan bentuk vertical kombinasi dengan adanya garis – garis horizontal. Pemilihan bentuk seperti ini mampu memberikan kesan yang luas pada bangunan sehingga menjadikan rumah akan terlihat besar dan mewah. Meskipun sebenarnya lahan yang di gunakan hanya berukuran 6 x 7.
2. Desain rumah 6 x 7 dengan garasi

Siapa bilang mau membuat rumah dengan lahan yang berukuran 6 x 7 tidak mungkin bisa memiliki garasi? Desain yang satu ini jawabannya. Kuncinya ada di pengukurann untuk tiap ruangan yang ada di dalam rumah. Setiap meter lahan yang tersedia di dalam rumah haruslah di gunakan dengan maksimal agar kebutuhan tetap terpenuhi. Yang harus di perhatikan adalah untuk tidak terlalu meminimalisir ruangan dengan berlebihan. Hal ini karena yang ada bukan nyaman yang di dapatkan tapi malah sumpek dan sempit.
3. Desain rumah minimalis dengan taman mini

Tidak perlu taman yang luas, yang penting cukup untuk memberikan kesan yang asri dan sejuk di pandang di pagi hari ketika matahari baru muncul serta di sore hari sambil melihat burung – burung di atas langit sana. Di bagian samping taman mini bisa di manfaatkan sebagai tempat untuk memarkir mobil. Jika ingin mempunyai balkon bisa dengan memanfaatkan sedikit tempat yang ada di lantai bagian atas.
4. Desain rumah ala hotel

Untuk desain rumah yang satu ini mencontek dengan gaya hotel – hotel atau penginapan yang biasanya di sediakan di tempat - tempat wisata seperti di daerah pantai. Untuk bagian lantai bawahnya cukuplah hanya berisi ruang tamu dengan ukura mini yang hanya bisa digunakan untuk tamu yang berjumlah 2 atau 3 orang saja serta dapur. Sedangkan untuk di lantai atasnya di fokuskan untuk tempat tidur yang di lengkapi dengan kamar mandi dalam.
5. Desain rumah 6 x 7 dengan 3 kamar tidur

Untuk kamar tidurnya di bagi menjadi 2 lantai. Lantai pertama atau lantai bawahnya di gunakan untuk kamar tidur anak dengan ukuran yang tidak terlalu besar sehingga tidak memakan banyak lahan. Sedangkan di bagian lantai kedua atau lantai atasnya di gunakan untuk kamar tidur utama yang memiliki ukuran paling besar di antara kedua kamat tidur lainnya serta satu kamar tidur yang memiliki ukuran yang sama dengan kamar tidur anak di lantai pertama.
6. Desain rumah ajaib

Tampak dari bagian depannya desain rumah yang satu ini memang seperti rumah dengan hanya satu lantai utama saja, namun sebenarnya rumah ini memiliki dua lantai lho. Kuncinya ada di ukuran tinggi dari masing – masing lantai nya. Di lantai pertama memiliki tinggi yang lumayan bear sedangkan untuk di lanai keduanya memang sengaja hanya memiliki tinggi yang sangat minim yaitu hanya seukuran tinggi orang dewasa. Hal inilah yang menjadikan desain rumah yang satu ini terlihat seperti rumah hanya dengan satu lantai saja.
7. Desain rumah greenhouse

Mengapa di sebut dengan desain rumah greenhouse? Karena warna yang di gunakan dalam desain rumah yang satu ini hanya menggunakan satu warna cerah yaitu warna hijau saja. Sedangkan untuk yang lainnya dominan hanya warna putih saja.
8. Desain rumah ala jepang

Desain rumah yang satu ini sanagtlah mirip dengan desain rumah orang – orang jepang. Terlihat minimalis namun terkesan unik dan lucu. Penggunaan dinding di pilih dengan menggunakan kaca yang berukuran persegi panjang. Di tiap kaca nya di berikan hiasan berupa dinding yang di buat vertikal sehingga menambah kesan unik nya.
9. Desain rumah white house

Pemilihan warna yang dominan putih menjadikan desain rumah yang satu ini sangat cocok di peruntukkan bagi mereka yang tidak terlalu menyukai warna – warna cerah . kesan yang manis akan di temukan saat orang pertama kali melihat rumah ini.
10. Desain rumah super minimalis

Balkon mini di letakkan di lantai bagian atas dengan ukuran yang tidak terlalu besar sehingga tidak mengurangi lahan untuk ruangan yang lainnya. Di bagian bawahnya juga di berikan lahan untuk digunakan sebagai garasi yang hanya cukup untuk satu mobil saja. Di bagian depannya di manfaatkan untuk menanam tanaman dengan ukuran memanjang agar rumah tetap terlihat segar dan manis.
Dalam merancang desian rumah 6x7 ini kita harus mendesainnya dengan detail dan teliti. Pengaturan tata letak juga sangat penting untuk membuat tampilan rumah menjadi makin menarik. Kami juga akan membantu dalam menemukan desain rumah minimalis ukuran 6x7 ini.
Berikut beberapa contoh desain yang kami rekomendasikan.
11. Desain rumah yang terlihat sederhana dengan ukuran 6x7, walaupun sederhana namun menggunakan model kekinian

12. Desain rumah dengan menggunakan model atap yang berundak dan dekorasi horisontal dibagian depannya

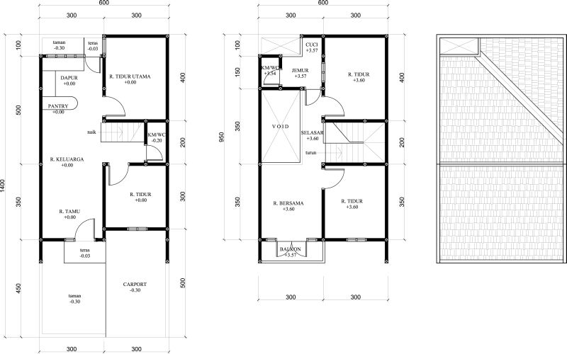
13. Desain rumah 2 lantai dengan memaksimalkan lahan yang dilengkapi dengan denahnya

14. Jika dilihat dari depan desain rumah ini tampak hanya memiliki 1 lantai saja, namun sebenarnya jika kita masuk kedalam maka rumah ini terdiri dari 2 lantai

15. Desain rumah terlihat mewah dan elegan dengan penggunaan pintu gerbangnya terbuat dari kayu

16. Desain rumah lengkap dengan denahnya dan terdapat carport yang panjang cocok bagi kamu yang memiliki mobil lebih dari satu

17. Desain yang sederhana dengan ukuran 6x7

18. Desain rumah minimalis ukuran 6x7 dengan 3 tempat tidur

19. Menempatkan taman minimalis dilantai 2 akan membuat hunian terlihat asri dan sejuk

20. Denah rumah ukuran 6x7 yang terdiri dari 2 lantai dengan halaman depan dan belakang yang luas

21. Penggunaan dekorasi yang cocok pada bagian eksteriornya akan memberikan tampilan rumah terkesan modern

22. Desain rumah 6x7 dengan 2 lantai dan penggunaan atap miring yang unik

23. Desain rumah minimalis yang terlihat keren dengan 2 kamar tidur yang berukuran 3x3 meter

24. Halaman depan yang terlihat rapi membuat hunian tampak nyaman

25. Desain rumah 2 lantai dengan pagar minimalis

26. Desain rumah dengan perpaduan warna putih dan abu-abu

27. Desain rumah 6x7 ini seringkali kita temukan di perumahan

28. Desain rumah 2 lantai dengan dominasi warna abu-abu

29. Rumah 2 lantai yang megah dengan perpaduan hitam putih yang elegan

30. Denah rumah yang memiliki kamar utama yang lebih luas dibandingkan dengan kamar lain

