Desain rumah minimalis dengan ukuran 7x6 masih dijadikan tren dalam membangun sebuah hunian. Tempat tinggal serta desain rumah seperti ini juga bisa menghemat waktu dalam menata rumah. Hal ini juga dikarenakan desain ini lebih mudah dalam perawatannya.
Bagi kamu yang ingin membuat desain rumah minimalis ukuran 7x6, terdapat beberapa contoh desainnya berikut ini.
1. Desain Minimalis Idaman

Hampir semua orang pasti menginginkan rumah idaman. Namun biasanya yang menjadi permaslahan yaitu mengenai budget yang tersedia untuk membangun rumah tersebut. Untuk itulah kita juga bisa membangun desain rumah minimalis.
Desain minimalis ini makin banyak peminatnya di masyarakat. Selain dana, lahan yang tersedia juga menjadi alasan orang membangun rumah minimalis. Dan bagi yang ingin membangun desain minimalis idaman maka bisa mencontoh inspirasi rumah ini.
2. Desain Rumah Minimalis yang Elegan

Jika dilihat secara sepintas, desain rumah ini terlihat sederhana namun elegan. Bagi yang menyukai keteduhan disekitar rumah, desain ini layak dijadikan pilihan. Meskipun model rumah ini sudah agak lama,namun masih bisa digunakan untuk saat ini.
Dalam pemilihan warna untuk cat rumah, sebaiknya kita juga harus bisa memilih warna cat yang tepat. Contohnya pada desain ini yang menonjolkan warna putih dan pink tua, menjadikan rumah terlihat bersih.
3. Desain Minimalis dengan Nuansa Alam

Bagi yang menginginkan desain minimalis dengan nuansa alami, maka rumah ini bisa dijadikan inspirasi. Pada bagian depannya kita bisa menggunakan material batu alam. Batu alam ini akan terlihat lebih natural dan memanjakan mata bagi yang memandang.
Desain rumah minimalis ini terdiri dari 1 lantai dengan 2 kamar tidur. Karena ukurannya tidak terlalu luas, kita harus pandai menata bagian dalam rumahnya.
4. Desain Minimalis Modern

Desain rumah ini memang terlihat indah ditambah lagi dengan komposisi warna cat yang menarik. Untuk warna yang mendominasi rumah ini menggunakan warna putih yang membuat tampilan rumah makin terlihat modern dan elegan.
Agar setiap ruangan yang ada didalam rumah ini telihat lebih luas, maka kita bisa menggunakan furniture yang multifungsi agar bisa menghemat ruangan. Apabila kita ingin menambahkan kamar tidur atau ruangan lain maka kita bisa mengalihkan halaman depan untuk dijadikan sebuah ruangan.
5. Desain Rumah Minimalis yang Asri

Desain rumah ini terlihat sangat asri dengan dihiasi tanaman bunga yag tertata rapi di halaman depan. Selain itu, kombinasi warna cat yang dipakai juga tampak serasi dengan perpaduan coklat dan putih.
Untuk bagian deqan dan pondasi bagian bawahnya dihiasi dengan batuan alam yang memberikan kesan natural. Meskipun modelnya sederhana namun tampilan rumah ini enak dilihat dan asri.
6. Desain Minimalis yang Bergaya Peristirahatan

Desain rumah minimalis ini memiliki gaya resort atau rumah peristirahatan. Kita juga seringkali menjumpai desain ini di sekitar wisata yang ada di Puncak. Kebanyakan rumahnya memang dipakai sebagai rumah peristirahatan atau villa.
Dengan 2 lantai maka kita juga bisa memaksimalkan setiap ruangan. Jadi meskipun lahan yang tersedia terbatas, kita masih bisa menata ruangan dengan baik.
7. Rumah Minimalis 2 Lantai

Bagi yang menginginkan memiliki rumah yang bertingkat dan terlihat cantik, kamu bisa mencontoh desain ini. Penggunaan batu alam dibagian depan di lantai 1 dan 2 juga makin mempercantik hunian ini.
Kebanyakan desain rumah ini banyak dipakai oleh generasi milenial yang menyukai hal-hal simpel dan praktis. Dan untuk dominasi warnanya yang dipakai hanya putih dan coklat untuk bagian pintu dan jendalanya.
8. Desain Rumah Minimalis dengan Taman

Banyak orang menginnginkan area terbuka hijau pada bagian depan rumahnya. Tentunya hal ini juga akan membuat rumah terihat asri dan nyaman. Seperti yang ada pada desain ini yang juga memberikan area terbuka hijau dibagian depannya.
Sedangkan untuk penataan pohon-pohonnya, kita bisa menempatkan beberapa pohon yang besar agar rumah menjadi terlihat lebih asri.
Dan untuk pagar depan rumahnya bisa menggunakan batu alam serta penambahan beberapa pot berukuran sedang dengan bunga yang cantik akan menambah kesan yang sejuk dan nyaman.
9. Desain Rumah Minimalis Kecil

Dengan luas lahan yang terbatas, kita juga bisa mensiasatinya dengan hunian minimalis seperti gambar berikut. Dengan desain yang minimalis maka kita juga tidak memasukkan banyak dekorasi yang membuat rumah terlalu ramai.
Di sekelilingnya juga hanya ada beberapa pohon yang menghiasi taman. Selain karena keterbatasan lahan, menempatkan banyak pohon malah akan menjadikan rumah terlihat lebih sempit.
10. Desain Minimalis 2 Lantai

Memiliki rumah 2 lantai memang terlihat menyenangkan. Kita juga bebas berkreasi dengan ruangan yang ada. Karena ada banyak ruang sehingga kita juga bisa menempatkan barang-barang untuk mengisi rumah.
Karena terdiri dari 2 lantai, maka lantai dasarnya bisa untuk daput, ruang tamu dan kamar mandi. Sedangkan lantai kedua bisa kita manfaatkan untuk kamar tidur serta kamar mandi.
11. Jika kamu sedang mencari inspirasi dalam membangun rumah sederhana maka contoh denah rumah satu ini bisa jadi contohnya

12. Rumah dengan teman mini dan cat tembok bagian depan berwarna abu-abu ini juga sangat minimalis

13. Atau jika kamu ingin membangun rumah simple maka rumah seperti ini paling cocok untuk dibangun

14. Rumah dengan bangunan 2 lantai ini cocok untuk kamu yang ingin membangun rumah 7x6 meter

15. Desain Rumah Minimalis Ukuran 7x6 Keren dengan atap miring ini apakah kamu tertarik?

16. Kamu juga bisa membangun atau merenovasi rumah sesimple dan elegan seperti sketsa rumah ini

17. Desain Rumah Minimalis Ukuran 7x6 Gambar ini juga sagat indah bukan, cocok untuk dijadikan rumah impian

18. Rumah dengan 2 lantai ini memiliki nuansa yang sangat natural dan modern

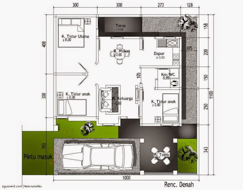
19. Ini adalah contoh gambaran denah rumah yang bisa dibangun untuk 3 kamar tidur

20. Masih dengan denah rumah yang cocok untuk kamu yang ingin membangun rumah 2 kamar dengan ukuran 7x6 meter

21. Untuk contoh denah rumah dan bangunan lengkap bisa kamu dapatkan inspirasi dari contoh sketsa rumah ini

22. Untuk foto atau Gambar Desain Rumah Minimalis Ukuran 7x6 yang sudah jadi seperti ini

23. Konsep Desain Rumah Minimalis Ukuran 7x6 ini memiliki 3 kamar tidur dengan 1 lantai

24. Sketsa Desain Rumah Minimalis Ukuran 7x6 selanjutnya ini cocok untuk kamu yang ingin membangun rumah 2 lantai

25. Foto Desain Rumah Minimalis Ukuran 7x6 ini adalah contoh penerapan tata ruang untuk rumah 2 lantai

26. Gambaran Desain Rumah Minimalis Ukuran 7x6 dengan cat warna coklat dan merah bata ini cocok untuk 3 kamar tidur

27. Arsitek Desain Rumah Minimalis Ukuran 7x6 Ini cocok ditermpatkan jika kamu membangun rumah di perumahan

28. Contoh Gambar Desain Rumah Minimalis Ukuran 7x6 cocok untuk kamu yang memiliki lahan hook

29. Inspirasi Desain Rumah Minimalis Ukuran 7x6 ini sangat simple tetapi nampak sangat elegan

30. Terakhir ada Ide Desain Rumah Minimalis Ukuran 7x6 yang cocok untuk kamu yang ingin membangun rumah minim budget

