Desain Rumah 8 x 10 - Mempunyai rumah impian merupakan harapan bagi semua orang. Rumah yang sesuai dengan keinginan sehingga kita akan merasa nyaman didalamnya. Oleh karena itu desain rumah sangat penting untuk kita lakukan sebelum membangun sebuah hunian baru.
Seperti halnya dengan mendesain rumah 8 x 10 ini, kitapun perlu untuk mencari referensi agar apa yang kita mau bisa terwujud. Dibawah ini ada beberapa referensi desain rumah 8 x 10.
1. Desain Rumah 8 x 10 2 kamar tidur

Desain rumah ini terdiri dari 2 kamar tidur. Untuk bagian depan terdapat carport dan taman kecil. Taman ini ada 2 macam yaitu taman yang ada didepan rumah dengan berbentuk huruf L dan taman yang ada dibelakang rumah yang memanjang dari kiri ke kanan. Untuk dapurnya tertutup berada didalam rumah bersebelahan dengan ruang makan.
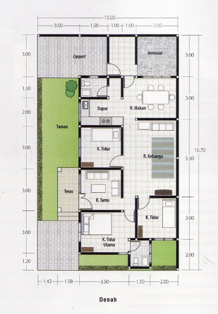
2. Desain Rumah 8 x 10 dengan dapur terbuka

Rumah ini mempunyai dapur terbuka yang ada dibelakang rumah. Untuk ruang tamunya menyatu dengan ruang makan serta ruang keluarga. Ketiganya berada dalam satu ruangan tanpa penggunaan sekat. Untuk kamar tidurnya terdiri dari kamar tidur utama dan kamar tidur anak.Diantara kamar tidur utama dan kamar tidur anak terdapat kamar mandi.
3. Desain Rumah 8 x 10 2 Lantai

Desain ini terdiri dari dua lantai. Untuk lantai pertama terdapat ruang tamu,ruang makan,dapur,dan ruang keluarga. Sedangkan di lantai 2 terdapat kamar tidur,ruang keluarga dan kamar mandi.
4. Desain Rumah 8 x 10 modern minimalis

Warna abu-abu pada desain rumah ini terlihat elegan dan modern,dipadukan dengan warna orange sehingga menambah menarik tampilan rumah.Untuk bagian samping terdapat carport serta bagian depan juga terdapat taman minimalis.
5. Desain Rumah 8 x 10 2 lantai dengan 3 kamar

Desain ini memiliki 2 lantai. Untuk lantai pertama terdiri atas kamar tidur,ruang tamu,ruang makan,dapur,kamar mandi serta dapur. Untuk taman letaknya tidak hanya didepan rumah saja,tetapi ada juga taman yang letaknya di belakang.
6. Desain kamar tidur anak untuk Rumah 8 x 10

Pemilihan kamar tidur untuk anak sebaiknya gunakan warna-warna yang ceria. Karena kamar merupakan tempat anak untuk belajar,bermain sekaligus beristirahat jadi kita bisa membuat senyaman mungkin area kamar. Kamar yang terlihat rapi dan bersih akan membuat betah anak-anak. Sehingga mereka bisa beristirahat dengan tenang setelah seharian beraktifitas.
7. Desain Ruang Tamu Untuk Rumah 8 x 10

Untuk desain ruang tamu sebaiknya pilih warna yang cerah seperti putih. Agar ruangan terkesan lebih luas. Sedangkan untuk dekorasinya pilih yang senada dengan warna cat. Begitu juga untuk warna karpet,sofa dan pernak pernik lain.
8. Desain kamar tidur utama untuk Rumah 8 x 10

Untuk kamar tidur utama kita bisa memilih model yang minimalis. Dengan jendela yang panjang pada kamar akan membuat sirkulasi udara yang ada dapat berjalan dengan baik. Pilihlah warna-warna yang kalem dan soft agar kita bisa beristirahat dengan nyaman.
9. Desain Taman di depan rumah untuk Rumah 8 x 10

Untuk taman yang ada didepan rumah,kita bisa membuat taman yang minimalis. Agar tampilan taman terlihat lebih menarik maka kita bisa menambahkan beberapa batuan atau tempat untuk melakukan joging kecil disekitar taman.
10. Desain Dapur untuk Rumah 8 x 10

Apabila ingin memiliki konsep desain dapur outdoor maka bisa melihat referensi diatas. Dapur ini terletak diluar ruangan dan biasanya dibelakang rumah menyatu dengan taman yang ada dibelakang rumah. Kita bisa mendesain dapur dan ruang makan tersebut mirip dengan suasana di cafe. Sehingga bisa membuat suasanya semakin nyaman.
11. Desain Rumah 8 x 10 berikutnya ini memiliki bangunan dengan 2 lantai yang memiliki desain tampak depan berbentuk kotak yang minimalis

12. Denah Desain Rumah 8 x 10 selanjutnya ini memiliki 3 kamar tidur cocok untuk keluarga dengan 2 anak

13. Denah Desain Rumah 8 x 10 Lantai 2 berikutnya ini cocok untuk kamu yang masih bingung penempatan ruangan di lantai 2

14. Desain Rumah 8 x 10 Sederhana selanjutnya cocok untuk yang ingin membangun rumah tapi minim budget

15. Contoh Desain Rumah 8 x 10 selanjutnya ini memiliki lantai 2 dengan 2 kamar di lantai 1 dan di lantai 2 bisa kamu buat menjadi beberapa ruangan atau kamar lagi

16. Contoh dari Rencana Desain Rumah 8 x 10 ini memiliki konsep yang lengkap dengan gambar desain tampak depan dan denahnya

17. Desain Rumah 8 x 10 2 Lantai Minimalis selanjutnya ini memiliki ukuran kecil tapi memiliki 2 lantai

18. Desain Rumah 8 x 10 Terbaru ini memiliki lahan parkir untuk 2 mobil, dengan dilengkapi dengan 4 kamar tidur

19. Desain Rumah 8 x 10 3 Kamar ini bisa kamu terapkan untuk membangun rumah di kapling perumahan yang sudah kamu beli

20. Desain Rumah 8 x 10 2 Lantai 4 Kamar ini cocok untuk kamu yang ingin membangun rumah untuk keluarga besar

21. Gambar Denah Desain Rumah 8 x 10 merupakan gambaran denah rumah yang minimalis dan fungsional

22. Desain Rumah 8 x 10 Simple satu ini memiliki 3 kamar tidur, ada garasi mobil, ada ruang tamu, ruang keluarga, dapur dan ruang makan serta ada tangga menuju je lantai 2

23. Contoh Denah Desain Rumah 8 x 10 yang selanjutnya ini juga sangat menarik loh

24. Denah Desain Rumah 8 x 10 3 Kamar simple tapi tetap memiliki ruangan yang lengkap

25. Inspirasi Desain Rumah 8 x 10 mungkin bisa kamu pertimbangkan penempatan setiap ruangannya dan juga interior di dalamnya

26. Desain Rumah 8 x 10 2 Kamar Tidur ini cocok untuk dibangun jika kalian baru menikah atau baru memiliki 1 anak

27. Desain Rumah 8 x 10 1 Lantai memiliki taman depan dan belakang rumah dan teras yang cukup luas untuk tempat bersantai

28. Desain Rumah 8 x 10 Tampak Depan ini memiliki bangunan 2 lantai dengan balkon di bagian depan dan samping diatas garasi

29. Gambar Desain Rumah 8 x 10 berikut ini juga tidak kalah menarik dengan tampilan desain yang mewah dan elegan

30. Terakhir ada Desain Rumah 8 x 10 Minimalis 2 Lantai yang simple tapi tetap enak dilihat

