Rumah 1,5 lantai atau yang disebut juga dengan spilt level, awalnya memang didesain untuk menyiasai bentuk tanah yang tidak rata atau tanah didaerah perbukitan. Namun untuk sekarang, mungkin fungsi lebih untuk menyiasati luas tanah yang kurang luas dan dana yang tidak memungkinkan untuk membangun rumah 2 lantai. Jadi biasanya rumah 1,5 lantai dibangun dengan langit-langit yang cukup tinggi, dimana nantinya ditengah tengahnya dibangun lantai untuk ruangan-ruangan.
Berikut beberapa desain rumah 1,5 lantai yang menarik.

pinoyhouseplans.com, id.pinterest.com

pinoyhouseplans.com, id.pinterest.com

pinoyhouseplans.com, id.pinterest.com

pinoyhouseplans.com, id.pinterest.com
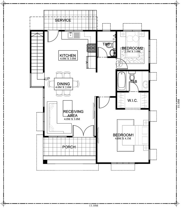
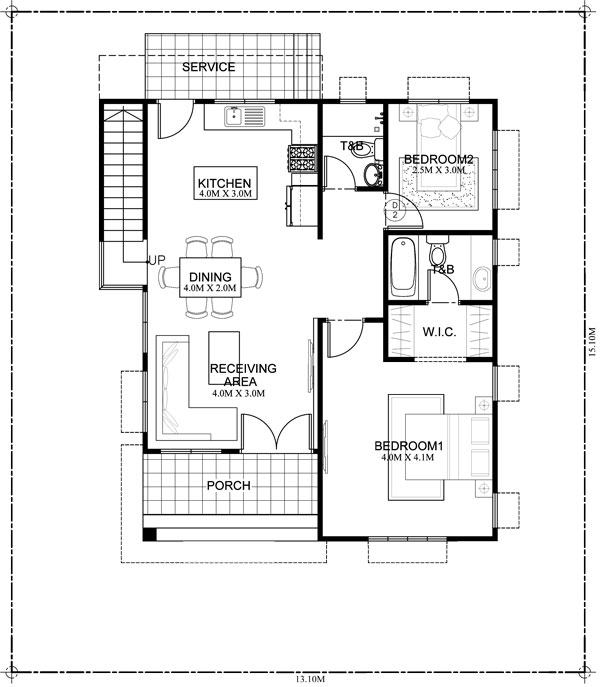
Denah lantai 1.

pinoyhouseplans.com, id.pinterest.com
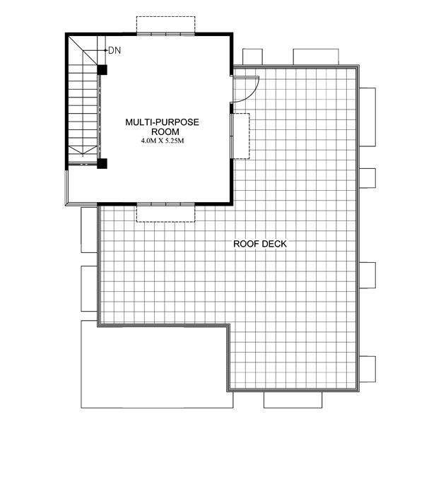
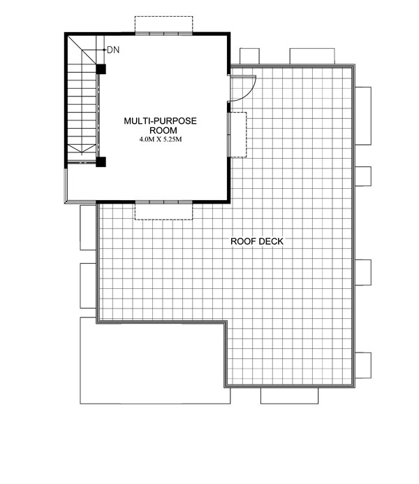
Dan denah lantai lainnya.
Lantai atas dengan roof deck yang cukup luas.

id.pinterest.com

id.pinterest.com

id.pinterest.com

id.pinterest.com
Selain berfungsi sebagai kamar, ruang kerja, lantai setengahnya juga kita jadikan gudang penyimpanan, agar lantai bawah terlihat lebih luas.
.jpg)
id.pinterest.com, interiordesign.id
Bila tampak depan.
.jpg)
id.pinterest.com, interiordesign.id
Desain tangga yang minimalis.

id.pinterest.com, interiordesign.id
Penampakan ruang bagian setengah lantai.

id.pinterest.com, interiordesign.id
Penampakan dapur dari lantai atas.

id.pinterest.com

id.pinterest.com
Dengan dinding bata ekspos ini, bikin rumah tampak eksotis.

id.pinterest.com
Langsung menatap bulan bintang ya kalau malam hari.

id.pinterest.com

id.pinterest.com, lingkarwarna.com

id.pinterest.com

id.pinterest.com
Dengan motif kayu yang kenta, bikin rumah nampak gimana gitu.
Demikianlah aneka desain rumah dengan 1,5 lanti, semoga dapat menjadi inspirasi bagi kita semua ya dan selalu diberi keberkahan agar semua cita tercapai. Amin
