Desain Rumah 1 Lantai Mewah - Desain rumah sangat penting untuk selalu diperhatikan. Jika ingin menampilkan rumah mewah tak harus menggunakan desain 2 lantai atau lebih. Namun desain rumah 1 lantai juga bisa terlihat mewah.
Kita bisa mendesain rumah 1 lantai dengan apik sehingga terlihat mewah dan elegan. Ada banyak sekali model rumah 1 lantai modern yang bisa kita pilih. Ini juga terkait dengan lahan yang kita punya.
Berikut ini ada beberapa desain rumah 1 lantai mewah yang bisa dijadikan referensi :
Desain Rumah Dengan Atap Jengki ( Yankee)

Dengan menggunakan desain 1 lantai bukan menjadi halangan untuk membuat kesan mewah. Salah satu cara yang harus kamu lakukan adalah dengan membuatnya menggunakan atap gaya jengki ( yankee).
Dengan atap jengki yang merupakan desain arsitektur modern ini adalah adaptasi dari gaya arsitektur Amerika serikat dan berkembang di Indonesia dari tahun 1950 sampai tahun 1960.
Desain menggunakan atap jengki tersebut banyak diminati karena akan menimbulkan kesan mewah bagi rumah tersebut. Jadi bagi kamu yang ingin memberikan kesan mewah pada hunian, desain atap jengki merupakan pilihan yang tepat.
Bentuk dari atap jengki tersebut asimetris sehingga membuat tampilan rumah terlihat menarik dan mewah. Selain itu dengan memakai atap jengki, rumah yang hanya 1 lantai terlihat menjadi dua lantai.
Selain itu pada bagian depan ataupun sekeliling rumah ini bisa kita manfaatkan untuk membuat taman kecil agar rumah tampak asri dan indah.
Desain Rumah Menggunakan Fasad Bangunan Material Kayu

Rumah minimalis dengan desain 1 lantai tersebut terlihat mewah dan elegan. Hal ini dikarenakan kita mengaplikasikan material kayu yang digunakan sebagai fasad bangunan.
Artinya, kita menjadikan material kayu sebagai bagian utama dari desain eksterior rumah minimalis 1 lantai ini. Oleh karena itu rumah 1 lantai tersebut tampilannya terlihat begitu menarik dan mewah. Sehingga menjadikan hunian rumah ini terasa nyaman.
Agar tidak monoton dan terlihat asri maka kita bisa menanam beberapa pohon di sekelilingnya. Selain itu juga keberadaan taman disekitar rumah akan membuat rumah terlihat sejuk dan nyaman.
Desain Rumah Dengan Atap Asimetris

Dengan memiliki rumah 1 lantai yang beratapkan asimetris tentulah menjadi pusat perhatian banyak orang. Hal ini dikarenakan desain atap asimetris terlihat berbeda dari atap rumah kebanyakan.
Desain atap rumah yang berbentuk asimetris yang menyerupai trapesium menjadi daya tarik tersendiri. Karena tampilan rumah tersebut yang terlihat besar, modern dan mewah. Selain itu dengan atap asimetris ini tampilannya terlihat tidak membosankan.
Bagi kamu keluarga baru, rasanya cocok sekali dengan memilih desain rumah ini. Selain terlihat mewah, tampilan rumah ini juga berbeda dari yang lain.
Desain Rumah Serba Putih

Desain rumah 1 lantai yang serba putih ini terlihat begitu modern dan mewah, hal itu juga tak lepas dari penggunaan palet satu warna saja. Penggunaan warna putih juga menjadikan rumah terlihat luas dan bersih.
Ini berarti bahwa cat yang digunakan dalam rumah tersebut hanya satu warna yaitu putih. Oleh karena itu nilai estetika rumah 1 lantai ini begitu menonjol.
Selain itu kita juga bisa berkreasi dengan menggunakan warna lain asalkan kita tetap mengedepankan nilai estetika yang menarik.
Desain Rumah 2 Lantai Dengan Material yang Tepat

Banyak cara yang bisa dilakukan agar rumah 1 lantainya mempunyai kesan yang mewah. Salah satu cara tersebut yaitu dengan mengkombinasikan material rumah.
Misalnya dengan mengkombinasikan material kayu untuk tiang rumah yang kita kombinasikan dengan menggunakan batu alam sebagai tembok rumah.
Apabila kita tepat membuat padu padan material rumah maka akan memberikan kesan hunian yang terasa nyaman. Hal ini bisa menjadi salah satu inspirasi rumah bagi kamu.
Kesan Mewah dan Elegan dengan Warna Gelap

Jika kamu menginginkan desain rumah yang terlihat mewah dan elegan maka kamu bisa mengaplikasikan warna-warna gelap. Kita bisa menggunakan warna hitam ataupun coklat tua dalam skema warna rumah.
Sedangkan untuk area depan rumah kita bisa menanam dengan berbagai jenis tanaman seperti pohon palem, bunga keladi atau bisa juga dengan menanam bunga sepatu. Hal ini akan menjadikan rumahnya tampak lebih asri dan nyaman.
Rumah Dengan Bentuk Geometris Dasar yang Sederhana

Bagi kamu yang merupakan penggemar rumah dengan bentuk geometris dasar, maka desain rumah 1 lantai tersebut bisa dijadikan referensi.
Tampilan rumah yang terlihat elegan dan mewah dengan aplikasi ragam dimensi segi empat pada kerangka rumah. Dengan bentuk rumah tersebut kamu bisa menghadirkan konsep desain rumah modern dengan 1 lantai yang terlihat estetik dan mewah.
Desain Rumah Mewah Konsep Minimalis

Konsep desain rumah ini menggunakan atap kombinasi yaitu atap datar dan piramid. Dan untuk tampilan warnanya juga hanya menggunakan dua warna saja yaitu warna putih dan abu-abu. Hal ini akan menciptakan kesan rumah yang mewah dan elegan.
Untuk bagian kusen jendela modern ini banyak diterapkan pada beberapa sisi dengan desain yang panjang. Agar rumah terlihat natural maka kita bisa menambahkan beberapa tanaman yang terletak pada area jendela.
Rumah ini disangga dengan menggunakan dua buah tiang yang terletak pada bagian depan rumah dengan menggunakan atap yang lebar. Rumah ini juga cocok bagi kamu yang menginginkan hunian mewah dengan konsep yang minimalis.
Desain Rumah Modern

Sekilas rumah dengan desain modern ini juga tampak mewah dengan dindingnya yang didominasi oleh warna putih. Selain warna putih beberapa warna juga ditambahkan di beberapa area agar penyebaran warnanya menjadi merata, terlihat seimbang dan serasi.
Desain atap rumah ini juga cukup tinggi sehingga bisa dimanfaatkan untuk apapun. Selain itu kita juga bisa memanfaatkannya untuk jangka panjang, misalnya dengan membuat rumah menjadi 2 lantai.
Untuk area carport juga disediakan yang menjadi satu dengan area teras yang dipisahkan dengan dinding. Hal ini bertujuan agar tidak mengganggu aktivitas.
Agar tampilan depan rumah terlihat mewah dan asri juga bisa ditambahkan beberapa tanaman dan pot bunga.
Rumah Dengan Desain Atap Kombinasi

Rumah dengan desain atap kombinasi ini juga terlihat mewah. Desain atap segitiga ini dipadukan dengan menggunakan atap yang rata pada area yang cukup luas sehingga terlihat lebih menarik.
Untuk desain jendela pada rumah ini menggunakan konsep yang minimalis. Agar kesannya lebih menarik maka pada bagian area jendela diberikan warna yang berbeda sampai dengan sisi rumah.
Untuk mengisi halaman depan yang luas maka kita bisa membuat taman kecil dengan ditumbuhi beberapa tanaman palem di bagian pinggirnya. Ini akan memberikan kesan yang asri dan indah.
Dengan dinding serba kaca membuat rumah tampak lebih mewah dan modern

Kamu juga bisa menerapkan desain ala ala eropa klasik

Contoh desain rumah 1 lantai mewah lainnya bisa kamu dapatkan inspirasinya dari rumah nuansa eropa ini

Untuk mendapatkan kesan mewah kamu bisa menggunakan konsep atap datar

Selanjutnya ada Sketsa Desain Rumah 1 Lantai Mewah yang cocok diterapkjan di pedesaan

Foto Desain Rumah 1 Lantai Mewah berikut ini juga tidak kalah elegan dan mewah loh

Ini adalah konsep rumah 1 lantai mewah dengan konsep yang asri

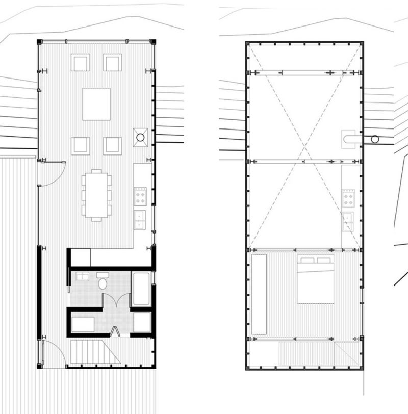
Untuk gambaran contoh denahnya kamu bisa terinspirasi dari denah berikut

Selanjutnya ada rumah dengan 1 lantai dengan tambahan lantai 2 yang dapat digunakan untuk dijadikan tempat menjemur pakaian

berikut ini adalah contoh denah 3D untuk rumah mewah 1 lantai dengan 3 kamar tidur utama

Masih dengan Desain Rumah 1 Lantai Mewah Minimalis Terbaru dengan gambaran denah rumahnya

Desain Rumah 1 Lantai Mewah Sederhana cocok untuk merenov rumah diperumahan

Desain Rumah 1 Lantai Mewah Modern berikut ini mengunakan dinding terbuat dari kayu berwarna coklat cerah

Masih dengan konsep desain sama dengan gambar diatas, ini hanya tampilan tampak di malam harinya

Membuat konsep atap rumah datar bisa membuat rumah 1 lantai terlihat lebih mewah

Lanjut lagi dengan contoh denah rumah 1 lantai untuk rumah mewah

Desain Rumah 1 Lantai Mewah Ukuran Kecil cocon untuk kamu yang tinggal di desa

Desain Rumah 1 Lantai Mewah Mewah memiliki bangunan terlihat seperti rumah 2 lantai

Desain Rumah 1 Lantai Mewah Konsep Natural selanjutnya membuat halaman depan dan samping rumah ditanami rerumputan hijau

Terakhir ada contoh Desain Rumah 1 Lantai Mewah Alami yang terlihat sangat memanjakan mata untuk area taman depan rumahnya

Itulah beberapa desain rumah 1 lantai yang modern yang bisa dijadikan inspirasi bagi kamu dalam mendesain ataupun mendekorasi rumah baru.
