Desain Rumah 10 x 10 Meter - Mempunyai rumah dengan ukuran yang pas membuat kita beruntung. Karena jarang kita memiliki ukuran yang mempunyai lebar dan panjang yang sama. Ada juga yang mempunyai panjang 10 meter,tetapi lebarnya Cuma 5 meter. Ini yang membuat kita bingung untuk mendesainnya.
Oleh karena itu jika kita mempunyai tanah 10x10 meter,kitapun akan lebih leluasa untuk membuat desain rumah tersebut. Tak masalah jika masih ada tambahan untuk carport. Berikut desain rumah 10 x 10 meter yang bisa menjadi referensi buat kamu.
1. Desain Rumah dengan 3 kamar tidur

Terdapat 3 kamar tidur dari desain rumah ini, terdiri dari 1 kamar tidur utama dan 2 kamar tidur anak. Ditengahnya terdapat ruang keluarga yang bisa digunakan untuk bersantai. Untuk bagian belakang terdapat teras kecil yang bisa digunakan untuk menjemur pakaian.
2. Desain dengan ruang tamu sekaligus sebagai ruang keluarga

Desain rumah ini mengambil konsep terbuka dan mengurangi penggunaan sekat. Lihat saja antara ruang tamu dan ruang makan tidak ada sekat yang membatasi antar ruangan. Hal ini memberikan tampilan yang luas dan lapang. Dengan 3 kamar yang masing-masing mempunyai jendela yang langsung terhubung dengan taman kecil.
3. Desain rumah 10 x 10 m dengan menambahkan carport

Desain rumah ini mempunyai carport yang ada di depan rumah. Untuk kamarnya terdiri dari 1 kamar utama dan 2 kamar tidur anak. Pada ruang tengah terdapat ruang untuk bersantai keluarga serta disebelahnya terdapat ruang makan. Kedua ruangan ini tidak ada sekat untuk membedakannya.
4. Desain rumah 10 x 10 m dengan 2 Kamar Tidur

Desain rumah ini hanya mempunyai 2 kamar tidur saja, terdiri dari 1 kamar tidur utama dan 1 buah kamar anak. Terdapat 2 buah taman yang cukup luas yang ada didepan dan belakang rumah.
5. Penambahan taman di pojok depan dan pojok belakang

Desain ini terdapat 2 buah taman yang ada di pojok depan dan belakang. Terdapat juga carport dengan fasilitas kamar tidur terdapat 3 ruangan.
6. Desain rumah dengan taman di sepanjang sisi kiri rumah

Untuk peletakkan taman yang ada pada desain ini terletak memanjang dari depan kebelakang yang berada sisi kirinya. Untuk bagian kanan terdapat carport. Untuk kamar tidurnya berjumlah 3 ruangan.
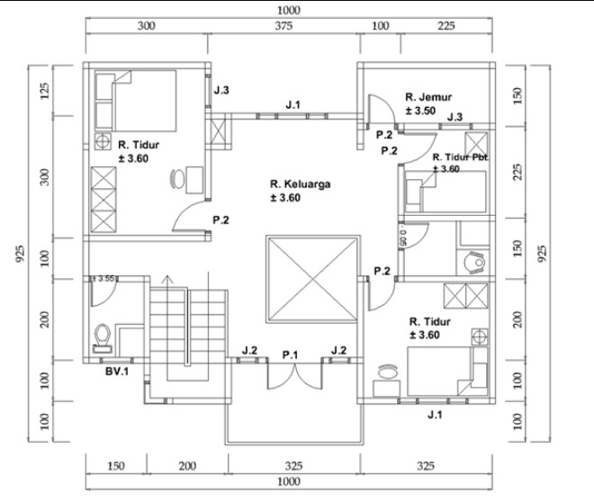
7. Desain rumah dengan 4 kamar tidur

Desain ini terdiri dari 4 kamar tidur,terdiri dari 1 kamar tidur utama dan 3 kamar tidur anak. Untuk toiletnya berjumlah 2 buah yang berada di sisi kanan dan kiri. Bagian tengah terdiri dari ruang tamu dan ruang makan.
8. Penggunaan sekat yang unik untuk ruang tamu

Penggunaan sekat ini tidak harus menggunakan tembok yang menjulang tinggi. Tetapi kita juga bisa memanfaatkan partisi kayu sehingga terkesan lebih unik.
9. Penambahan taman kering dibelakang rumah

Dengan adanya penambahan taman kering yang ada dibelakang rumah maka akan memberikan kesan yang sejuk dan segar. Selain itu taman ini juga tidak memerlukan perawatan khusus, jadi cocok untuk kita yang terkadang malas untuk merawat tanaman.
10. Bentuk depan rumah elegan

Pilihan depan rumah bisa meniru desain diatas. Desain rumah tersebut tampak elegan dan nyaman.
11. Desain Rumah 2 Lantai ini cocok untuk yang kamu ingin membuat rumah dengan 2 lantai pada sebuah sebidang tanah berukuran 10 x 10 meter

12. Desain Rumah selanjutnya untuk kamu yang ingin membangun rumah di luas tanah 10 x 10 meter, kamu bisa menerapkan konsep denah 3 Kamar Tidur yang kami sarankan di bawah ini

13. Denah selanjutnya yang bisa menjadi inspirasi kalian dalam membangun Rumah pada tanah berukuran 10 x 10 meter ini memiliki ruangan yang lengkap dengan adanya 3 kamar tidur

14. Masih dengan inspirasi terbaru tentang denah desain rumah 10 x 10 meter, dan ini sangat cocok untuk kamu yang ingin memiliki rumah minimalis dengan 2 lantai

15. Sketsa Desain Rumah 10 x 10 meter ini sangatlah modern, kamu bisa mencontoh dari sekta yang saya bagikan ini untuk membangun rumah 2 kamar dan memiliki garasi, taman samping rumah, 2 kamar mandi, ruang tamu, ruang keluarga dan dapur minimalis

16. Jika kamu mencari Desain Rumah untuk rumah type 80 dengan luas tanah 10 x 10 meter, contoh desain denah berikut bisa menjadi inspirais terbaik apalagi ini adalah desain rumah untuk 3 kamar, dan memiliki taman depan dan belakang rumah yang asri

17. Denah Desain Rumah 10 x 10 meter sederhana ini sangat cocok kamu jadikan referensi ketika kamu ingin membangun rumah tapi belum menemukan tata letak dan denah yang tepat untuk membangun rumah impian

18. Desain Rumah 10 x 10 meter satu lantai berikutnya sangat cocok untuk kamu yang ingin memiliki rumah yang sederhana di luas tanah yang cukup luas yaitu 10x10 meter

19. Contoh denah desain rumah dengan luas tanah 10 x 10 meter berikutnya memiliki luas bangunan 78 m2, jadi kamu bisa mencontoh tata letak setiap ruangan dengan ukuran luas setiap ruangan dengan tapat

20. Selanjutnya ini masih dengan konsep rumah 10 meter kali 10 meter dan untuk contoh desain denah ini khusus untuk kamu yang hanya ingin membangun rumah dengan 2 kamar

21. Sketsa Desain Rumah 10 x 10 meter 2 Lantai ini memiliki konsep atap rumah datar dengan adanya balkon di lantai 2 dan tidak memiliki teras rumah yang luas

22. Desain Rumah 10 x 10 meter Modern ini memiliki konsep rumah 2 lantai, masih dengan tema atap datar dan rumah di dominasi oleh kaca yang akan membuat rumah lebih berkesan modern

23. Desain Rumah 10 x 10 meter Sederhana ini sangat cocok untuk kamu yang memiliki tanah di pedesaan, memiliki garasi mobil dan dikelilingi oleh pagar

24. Sketsa Rumah 10 x 10 meter 1 Lantai ini bisa menjadi pilihan terbaik untuk kamu yang ingin membangun rumah dengan 3 kamar dan 2 kamar mandi

25. Desain Rumah 10 x 10 meter Lantai 2 ini untuk kamu yang ingin memangun lantai 2, tapi masih bingung denah untuk di lantai 2nya

26. Desain Rumah 10 x 10 meter Terbaru kali ini cocok untuk kamu yang hanya ingin membangun rumah dengan 2 kamar tetapi memiliki taman depan rumah dan halaman belkakang yang luas

27. Desain Rumah 10 x 10 meter Modern Minimalis ini tetap mengutamakan desain yang asri dengan tampak taman depan yang unik dikombinasikan dengan desain rumah atap miring yang modern

28. Denah Desain Rumah 10 x 10 meter 2 Lantai selanjutnya ini sangat lengkap dari denah di lantai 1 dan denah untuk lantai 2nya

29. Desain Rumah 10 x 10 meter Mewah ini sangat lengkap dari contoh desain tampak luar dan tampak dalam yang bisa menginspirasi kamu

30. Terakhir ada Desain Rumah 10 x 10 meter Tampak Depan yang juga memiliki konsep rumah mewah modern dengan 2 lantai

Itulah beberapa rekomendasi yang bisa digunakan untuk melengkapi desain rumah 10 x 10 meter . Untuk penambahan yang lain bisa disesuaikan dengan kebutuhan dan dana yang tersedia.
