Desain Rumah 100 Meter - Saat ini harga tanah yang kian melambung tinggi menjadikan orang banyak memilih lahan kecil dengan hunian yang berbentuk vertikal. Jika dulu orang lebih suka rumah di lahan luas, kini kebanyakan memilih dengan lahan kurang dari 100 m2 hingga 100 m2.
Walaupun begitu kita masih tetap bisa berkreativitas diatas lahan 100 meter. Salah satunya yaitu dengan membuat rumah bertingkat. Berikut akan kami berikan beberapa desain rumah 100 meter.
1. Rumah Dengan Desain Ventilasi Terbuka

Bangunan rumah ini terlihat modern dan sagat kekinian. Dengan ventilasi terbuka sehingga mempunyai pencahayaan yang alami sehingga menjadikan rumah ini terasa lega.
Untuk sinar matahari juga bisa mencapai sebagian besar rumah salah satunya yaitu daerah tempat tidur. Karena menggunakan pencahayaan alami sehingga di siang hari sampai sore hari kita bisa mengurangi pemakaian listrik.
Utnuk menambahkan kesejukan rumah maka kita bisa menambahkan beberapa tanaman di halaman rumah ataupun di dalam rumah sebagai hiasan.
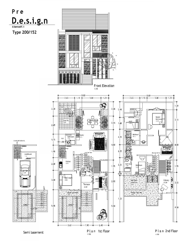
2. Desain Rumah 100 Meter Luas

Rumah dua tingkat ini dibangun diatas lahan seluas 96 m2 dengan jumlah keseluruhan rumah 100 m2.
Pada lantai 1 diperuntukkan bagi ruangan semi privat dan untuk akses masuknya dibuat melalui teras dengan agak tersembunyi.
Posisi bangunan dari rumah ini juga terletak pada tengah lahan dengan pada bagian depannya digunakan untuk carport dan bagian belakang digunakan untuk taman.
Di lantai 2 nya terdapat ruangan yang privat bagi para penghuninya seperti ruang tidur, ruang kerja serta ruang duduk untuk bersantai dengan keluarga.
3. Desain Rumah Atap Miring

Desain rumah ini dibuat agak menjorok kebelakang, jadi kita memiliki taman depan yang luas. Selain digunakan sebagai taman juga dimanfaatkan untuk carport.
Pada lantai 1 terdapat beberapa ruangan yang sifatnya semi privat. Misalnya ruang tamu, teras, runag keluarga , dapur serta kamar mandi.
Untuk lantai 2 terdapat beberapa ruangan yang privat seperti kamar tidur, kamar mandi, dan ada juga space yang dibuat untuk bisa bersantai dengan keluarga.
Dikarenakan luas hunian tidak terlalu luas maka dipergunakan pintu kaca lipat yang terdapat pada bagian pintu samping.
4. Desain Rumah Rumah Plus Carport

Untuk desain ini bagian depannya terdapat area yang digunakan sebagai carport.
Dan untuk lantai 1 nya hampir sama dengan desain sebelumnya yaitu terdapat kamar mandi, teras, ruang tamu, runag keluarga , ruang makan, dapur.
Sedangkan untuk semua kamar tidurnya yang berjumalah dua runagan terdapat di lantai 2 dengan penambahan satu kamar mandi.
Yang menjadi point of view pada bangunan ini yaitu dindingnya yang berwarna kuning serta pada finishing plafon kayu yang digunakan.
5. Desain Rumah Terbuka Minimalis

Pada sisi depan desain rumah ini terdapat area yang terbuka yang dapat kita manfaatkan sebagai taman untuk mempercantik tampilan rumah.
Pada lantai 1 terdapat beberapa ruangan yang terdiri dari ruang tamu, ruang makan, rang keluarga, teras dan juga kamar mandi. Pada area ini dikhususkan untuk kumpul bersama keluarga jadi bersifat semi privat.
Lantai 2 bisa difungsikan untuk digunakan sebagai kamar tidur, ruang keluarga serta kamar mandi. Pada lantai ini merupakan area privat bagai setiap penghuni rumah.
6. Desain Rumah 100 Meter Atap Datar

Lahan yang terdapat pada rumah ini bentuknya memanjang kebelakanag dan berada di hook. Sehingga kita bisa menampikan bangunan dari dua arah.
Untuk lantai 1 terdapat ruang semi privat yang terdiri atas ruang tamu, ruang keluarga, ruang makan, dapur serta kamar mandi.
Pada lantai 2 terdapat ruang kerja serta ruang tidur yang berjulah 2 buah. Jadi lantai 2 ini kita sebut juga dengan ruangan privat bagi anggota keluarga.
Untuk ruang tamunya berada di sisi luar dan terlihat dari jalan, jadi jika ada tamu yang masuk maka langsung ke ruangan keluarga.
7. Denah Desain Rumah 100 Meter

Rumah ini terdiri dari satu lantai dengan penambahan taman depan dan belakang rumah yang cukup luas.
Untuk area depan rumah terdapat carport serta taman. Dan ketika masuk kedalam maka kita akan menemukan beberapa ruangan diantaranya adalah ruang tamu, ruang makan, dapur, kamar mandi.
Untuk tempat tidurnya sendiri berjumlah dua buah,terdiri tas kamar tidur anak dan kamar tidur utama. Pada bagian ruang tamu dan ruang makan tidak ada sekat. Hal ini dikarenakan untuk memberikan kesan luas pada ruangan.
Dan pada bagian belakang terdapat taman yang bisa difungsikan sebagai tempat untuk menjemur pakaian. Selain itu juga bisa dijadikan tempat bersantai bersama keluarga.
8. Desain Rumah 100 Meter 2 Lantai

Desain rumah ini terdiri dari dua lantai dengan bentuk bangunan yang modern.
Pada bagian lantai 1 terdapat beberapa ruangan diantaranya adalah carport, ruang tamu, 2 buah kamar tidur, dapur, ruang makan, kamar mandi serta taman belakang.
Dan untuk lantai 2 terdapat dua buah kamar tidur, kamar mandi, ruang keluarga serta ada juga taman kecil untuk menambah keindahan. Selain itu ada juga balkon yang bisa dimanfaatkan untuk bersantai di sore hari
9. Desain Rumah Atap Limas

Desain rumah ini terlihat sangat modern dengan bentuk atap limas. Untuk bagian depannya terdiri atas carport dan taman kecil.
Saat ini desain rumah yang tampak pada gambar juga sudah banyak dipakai untuk membuat ruangan rumah.
Penggunaan cat yang dipakai juga sangat soft dengan warna-warna yang kalem. Cocok bagi kamu yang tidak suka ribet dan praktis dalam segala hal.
Pada lantai 2 terdapat balkon yang mengarah ke jalan. Sehingga kita bisa menikmati sore hari bersama keluarga sambil memandang kearah jalan.
Penggunann kaca yang lebar pada lantai 2 ini akan membantu untuk pencahaayaan ataupun sirkulasi udara pada ruangan tersebut
10. Denah Desain Rumah 100 Meter 2 Lantai

Desain yang terdiri dari 2 lantai ini terdapat taman depan dan belakang yang cukup asri.
Pada lantai 1 terdapat beberapa ruangan yaitu bagian depan terdapat carport, ruang tamu, dapur , ruang makan, serta dua buah kamar tidur.
Agar ruangan tampak luas dan lapang maka kita tidak memberikan sekat diantara ruang tamu dan ruang makan.
Sedangkan pada lantai 2 terdiri atas 2 buah kmaar tidur, kamar mandi dan ruang keluarga.pada lanai 2 in cukup simpel dalam memanfaatkan ruangan.
11. Ini adalah contoh denah untuk rumah berukuran 100 meter untuk desain 2 lantai

12. Untuk desain rumah selanjutnya ini adalah denah rumah untuk 1 lantai

13. Untuk desain ini merupakan desain yang sangat elegan dan terlihat sangat minimalis

14. Ini adalah contoh desain rumah minimalis dengan ukuran 100 meter yang memiliki halaman parkir di samping rumah yang luas

15. Lanjut dengan desain rumah 100 meter yang memiliki tingkat atau lantai 2 dengan konsep yang alami

16. Jika belum memiliki gambaran desain rumah dan denah, kami kasih gambaran lengkapnya untuk dijadikan inspirasi

17. Masih dengan contoh denah yang memiliki 2 kamar dan beberapa ruangan lengkap lainnya

18. Untuk tampak depan rumah yang simple dan sederhana kamu bisa terinspirasi dari desain ini

19. Lanjut ke desain rumah dengan 4 kamar tidur untuk rumah berukuran 100 meter

20. Jika kamu butuh inspirasi rumah 2 lantai maka konsep perumahan 2 lantai ini sangat tepat untuk dijadikan bahan refensi

21. Masih dengan contoh desain rumah 100 meter dengan 2 lantai, ini adalah desain yang sangat elegan

22. Untuk rumah selanjutnya adalah contoh desain untuk type 86

23. Masih kurang inspirasi dalam membangun denah rumah? coba deh lihat desain denah ini

24. Ini adalah contoh desain rumah 1 lantai dengan bangunan yang luas

25. Untuk desain rumah 100 meter sederhana bisa kamu dapatkan dari contoh berikut

26. Ada juga konsep desain rumah yang memiliki taman yang asri di bagian depannya

27. Kalian dapat menambahkan teras depan rumah untuk tempat bersantai seperti ini loh

28. Untuk desain rumah yang tertutup rapat dan aman mungkin desain ini bisa menginspirasi

29. Kemudian ada contoh denah rumah 100 meter dengan 3 kamar tidur

30. Untuk rumah yang memiliki bawah tanah seperti ini juga mungkin cukup menarik untuk dicontoh dalam membangun rumah

Itulah beberapa desain rumah 100 meter. Pada umunya model rumah tersebut tidak membuat ribet dan tersusun atas beberapa hal diantaranya desain tidur, model ruang tamu, kamar, serta kamar mandi.
Untuk penemmpatan ruangan tersebut bisa kita sesuaikan dengan keadaan ruangan yang ada. Misalnya untuk ruang tamu sudah bisa dipastikan bahwa letaknya didepan dari sebuah rumah.
Sedangkan untuk kamar tidurnya biasanya disesuaikan dengan keinginann dari pemilik rumah. Namun biasanya kamar tidur juga terletak di samping runag tamu.
Namun jika kamu yang lebih ingin privasinya terjaga , maka bis amenmepatkan kamar tidur supaya posisinya tidak terlau nampak dari runag tamu.
Semoga ulasan meneganai desai rumah 100 meter ini bisa bermanfaat.
