Desain Rumah 6x10 - Mendesain rumah kita tidak boleh sembarangan, karena ada aturan desain tentang ukuran bangunan dan luas tanah yang kita miliki. Salah satu desain yang umum banyak orang cari adalah desain rumah 6x10 meter.
Dengan ukuran yang terbatas seperti ini, maka pemilik rumah harus benar-benar memperhitungkan dengan matang desain interior dan eksterior rumahnya agar rumah bisa memiliki ruangan yang komplit dan juga memiliki interior yang nyaman untuk dihuni.
1. Desain Ruang Tamu Rumah 6x10 Meter

Pertama kami akan memberikan contoh desain ruang tamu rumah berukuran 6x10 meter. Jadi jika kamu sedang membangun rumah dengan ukuran ini dan belum mengetahui desain interior ruang tamu atau ruang keluarga bagusnya seperti apa, maka desain ini mungkin cocok untuk kamu terapkan.
Pada desain ruang tamu ini kamu dapat mendesain ruangan dengan kursi sofa yang memanjang, ditambah dengan adanya furnitur meja dan tv layar datar untuk menghemat ruangan. Dibagian sudut ruang ini kamu juga dapat menambahkan lemari yang menempel langsung pada dinding.
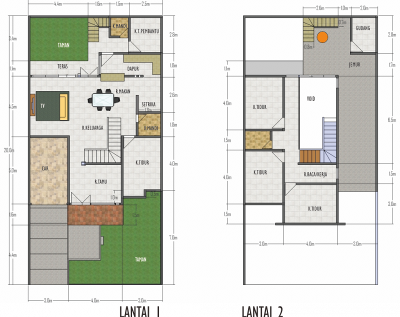
2. Denah Desain Rumah 6x10

Selanjutnya untuk inspirasi kedua ini kami memberikan contoh denah desain rumah 6x10 meter. Pada desain denah rumah ini kamu bisa memiliki 3 kamar tidur,dan beberapa ruangan yang lengkap.
Untuk mengukur sesuai dengan luas tanah dan bangunan yang kamu miliki, pada denah ini sudah sangat lengkap dengan setiap ukuran yang harus kamu bangun di setiap ruangannya. Sehingga kamu dapat memastikan dengan lebih tepat ukuran yang harus kamu bangun.
3. Contoh Desain Rumah 3D

Pada contoh selanjutnya kamu dapat menemukan inspirasi dari contoh desain rumah 3D yang dibuat secara komputerisasi. Pada desain rumah ini nampak sangat sederhana desainnya.
Pada tampak samping kamu dapat menambahkan jendela di bagian sudut rumah bagian depan, pada ruang tengah kamu dapat menambahkan jendela kecil yang memanjang untuk mendapatkan pencahayaan di ruang tenah. Dan terakhir di bagian belakang kamu bisa menambahkan lagi jendela kecil untuk lubang udara dapur dan juga kamar mandi.
4. Denah Rumah 3 Kamar Tidur

Untuk contoh desain yang keempat, disini kamu bisa memiliki rumah dengan 3 kamar dengan bentuk memanjang. Sehingga kamu bisa memiliki banyak kamar walaupun hanya memiliki luas tanah 6x10 meter. Jadi dengan membagi bangunan mejadi 2 slot pada bagian kiri untuk dibuat 3 kamar dan bagian kanan kamu bisa gunakan sebagai ruang tamu, ruang keluarga, dapur dan kamar mandi.
5. Rumah 2 Lantai di Bumi Serpong Damai

Pada desain kelima kamu dapat menemukan inspirasi dari perumahan yang dibangun dengan 2 lantai. Tepatnya desain ini adalah desain dari rumah tinggal di bumi serpong damai.
Pada desain tampak depannya nampak jelas jika rumah ini memiliki desain yang elegan dan minimais. Kombinasi batu alam dan cat bewarna putih dan abu-abu membuat desain rumah ini tampak sangat enak dilihat.
Pada lantai 2 kamu juga bisa menambahkan balkon untuk ruang santai atau juga kamu bisa menambahkan pot tanaman hias dibagian ini. Untuk garasi kamu juga tidak perlu membuat carport karena desain rumah ini sudah termasuk garasi.
6. Desain Rumah Di Perumahan

Sebenarnya contoh desain rumah di perumahan satu ini memiliki ukuran 5x13,5 atau 6x13,5 tetapi kamu juga bisa menerapkan desain rumah seperti perumahan ini pada rumah berukuran 6x10.
Kamu bisa mencontoh desain dari tampak depan rumah 2 lantai sepertipada perumahan ini yang nampak sangat minimalis dan modern. Untuk penempatan ruangan yang tepat kamu juga dapat mencontoh denah yang ada pada desain ini.
7. Desain Denah Rumah 6x10 Meter

Lanjut lagi dengan contoh desain denah rumah berukuran 6x10 meter. Pada desain rumah satu ini kamu bisa membangun rumah dengan 2 lantai, untuk kamar pada desain rumah ini kamu akan memiliki sekitar 4 kamar tidur.
Dimana kamar tidur pertama bisa kamu letakan di lantai 1 dan 3 kamar lainnya ditempatkan di lantai 2. Pada desain ini kamu juga bisa memiliki garasi yang cukup luas dan muat untuk parkir 2 mobil loh. Untuk lahan hijau di sekitar rumah kamu masih memiliki kelebihan tanah untuk taman depan ruman dan taman belakang rumah.
8. Tampak Depan Rumah 6x10 Meter

Jika kamu ingin membangun rumah 6x10 meter dengan tampak depan yang minimalis dan modern, maka kami sarankan kamu untuk mencoba membangun rumah dengan desain tampak depan seperti desain ini.
Pada desain ini rumah dibagi menjadi 3 bagian, di bagian tenah depan rumah kamu juga bisa menambahkan teras depan rumah untuk mempercantik desainnya. Dan untuk membuat rumah lebih asri kamu juga bisa berkebun di halaman depan rumah yang terbatas.
9. Desain Rumah Simple dan Sederhana

Hampir sama dengan konsep desain rumah sebelumnya, desain rumah ini yang membedakan adalah letak dari taman depan rumahnya. Untuk kesan modern, simple dan sederhana juga tidak kalah menarik dengan desain sebelumnya.
Untuk desain ini cocok untuk kamu yang telah membeli kavling di perumahan dan masih bingung ingin membangun rumah dengan desain seperti apa.
10. Denah Rumah 2 Lantai 3 Kamar Tidur

Jika tanah yang kamu miliki sangat terbatas, kamu dapat mencontoh desain rumah 2 lantai dengan 3 kamar tidur seperti ini. Di lantai 1 kamu bisa memiliki ruangan seperti ruang tmau, ruang santai, ruang makan dan dapur, serta 1 kamar mandi, dibagian tengah rumah kamu buat tangga menuju lantai 2.
Pada lantai 2 kamu dapat memiliki 2 kamar mandi, dan 3 kamar tidur. Untuk kamar tidur utama di lantai 2 kamu bisa membuat kamar mandi dalam. Dan di kamar tidur utama di lantai 2 kamu juga bisa menambahkan balkon.
11. Contoh denah rumah 6x10 berikut ini cocok untuk kamu yang menerapkan rumah dengan 3 kamar tidur

12. Selanjutnya ini adalah salah satu contoh desain denah dan tampak depan rumah sebuah perumahan yang bisa kamu jadikan sebagai inspirasi

13. Masih dengan contoh denah, untuk gambar selanjutnya ini ada contoh denah rumah dengan 3 kamar tidur dan memiliki 2 lantai

14. Tampak depan rumah pada desain ini terlihat sangat modern dengan desain atap datar dan bangunan di dominasi dengan kaca

15. Untuk contoh desain rumah 6x10 meter dengan 2 lantai bisa kamu terapkan desain seperti ini

16. Berikut ini adalah penerapan desain rumah 6x10 dengan atap miring yang modern

17. Contoh denah berikut ini bisa kamu terapkan jika ingin membangun rumah dengan 2 lantai

18. Untuk denah selanjutnya cocok untuk diterapkan untuk kamu yang hanya ingin membangun rumah dengan 1 lantai dan memiliki 3 kamar tidur

19. Masih dengan contoh denah rumah 3 kamar tidur, kalau desain satu ini kamu memiliki ruangan rumah yang sangat modern

20. Contoh desain rumah 6x10 selanjutnya adalah contoh denah dengan 2 lantai

21. Tinggal di perumahan dan ingin merenovasinya? maka kamu bisa mencontoh tampak depan rumah di perumahan seperti ini

22. Untuk denah rumah berikutnya ini adalah contoh denah rumah dengan 2 kamar tidur dan memiliki ruangan untuk dijadikan sebagai mushola

23. Jika kamu membutuhkan desain simple untuk desain rumah 6x10 maka ini adalah pilihan paling tepat

24. Contoh denah rumah selanjutnya ini adalah untuk yang ingin membangun rumah dengan ukuran kecil dan memiliki 2 kamar tidur

25. Desain perumahan satu ini juga tidak kalah menarik seperti desain lain dengan tema desain bernuansa hijau

26. Suka dengan desain yang natural, maka desain rumah 6x10 dengan dinding bata modern yang terkspos seperti ini bisa jadi pilihan terbaik

27. Untuk yang igin menerapkan desain rumah 6x10 2 lantai maka desain ini patut untuk dipertimbangkan

28. Untuk rumah 3 lantai di lahan terbatas hanya 6x10 meter, mungkin kamu bisa menerapkan contoh desain ini

29. Selain desain diatas, kamu juga bisa menerapkan desain 2 lantai seperti desain ini dan memanfaatkan lantai 1 untuk dijadikan tempat berjualan

30. Selanjutnya ini adalah beberapa contoh dari desain rumah 6x10 meter dengan tampilan simple dan sederhana

