Desain Rumah 9x10 – Rumah dibangun untuk memberikan unsur kenyamanan bagi para penggunanya. Untuk itu kita harus merancang sesuai dengan kebutuhan kita. Misalnya saja ketika luas tanah di rumah kita berbentuk memanjang maka kita bisa pilih rumah dengan model 9x10. Rumah model ini memang sering digunakan di berbagai tempat di era modern ini. Alasannya karena penggunanya lebih fleksibel dan bisa dirancang ulang dengan mudah. Untuk kamu yang belum mendapatkan inspirasi dalam membangun rumah silahkan simak 30 contoh ide desain rumah 9x10 minimalis berikut ini.
1. Rancangan Rumah Pasutri Baru

Bagi para pasutri baru yang ingin membangun rumah, maka bisa pilih rumah dengan model yang satu ini. Jika kita lihat lagi, rumah ini berkonsep dua kamar tidur dimana kamar tidur utama bisa kita fungsikan sebagai kamar tidur kita. Selanjutnya Untuk kamar tidur yang kedua bisa kita atur sebagai kamar tidur buah hati kita. Cobalah untuk mendesain seunik mungkin.
2. Rumah Model Skandinavian

Rumah dengan desain 9x10 selanjutnya mengambil konsep Skandinavia. Maksud dari model yang satu ini adalah dengan memberikan aksen modern dengan pemilihan konsep arsitektur dan bentuk bangunan. Pada bagian atasnya bisa kita fungsikan juga sebagai balkon yang tidak dibuat menjorok. Dengan begitu tidak akan memakan banyak space.
3. Rumah minimalis atap tumpang tiga

Desain rumah 9x10 dengan bentuk seperti ini memang jadi ciri khas gaya modern yang baru. Dengan gaya ini maka rumah akan terkesan jadi lebih modern. Tidak hanya itu pemilihan warna cat juga berpengaruh pada konsep rumah yang satu ini. Disarankan untuk memilih warna pastel atau gelap dengan perpaduan warna hitam.
4. Rumah minimalis model skandinavia white

Model rumah ini memang dikonsep dengan cukup megah. Walaupun luas tanah yang digunakan hanya sedikit akan tetapi proses pengerjaan dan desain arsitekturnya sangat menawan. Menambah gaya skandinavia bisa membuat rumah kita memiliki ciri khas yang unik.
5. Perluas Area Rumah Dengan Basement

Mengonsep dengan desain rumah 9x10 kali ini ada terobosan yang bisa kita lakukan . Misalnya saja dengan mengonsep garasi di bawah bangunan. Garasi ini sering kita sebut dengan basement. Pemilihan basement ini bertujuan untuk meminimalisasi luas tanah yang tidak terlalu besar.
6. Rancangan Taman untuk 9x10

Siapa bilang rumah dengan tipe 9x10 ini tidak bisa dikombinasikan dengan taman yang mewah. Taman mewah ini bisa kita aplikasikan untuk menambah aksen keindahan pada bangunan. Cukup buat lekukan pada bagian depan rumah juga buat space pada bagian belakangnya.
7. Rancangan rumah dengan lantai dua full house

Desain rumah 9x10 ini mengambil konsep ruangan lantai dua serba guna. Lantai dua ini bisa kita manfaatkan sebagai tempat untuk berjemur, balkon, ruang pertemuan dan lainnya. Hal Ini karena di lantai dua memang sengaja dibuat tanpa sekat.
8. Rumah minimalis balkon menjorok

Salah satu ide yang menarik adalah dengan membuat balkon dengan konsep menjorok ke depan. Pada balkon itu tidak memiliki atap sehingga kita bisa menikmati segarnya angin di atas sana.
9. Desain rumah modern kotak

Ada yang menarik disini, pasalnya rumah dibuat dengan model geometris yaitu kotak. Dengan rumah model kotak ini akan meningkatkan kreatifitas dan juga kesan mendalam bagi siapa saja yang melihatnya.
10. Desain teras untuk rumah minimalis

Desain rumah 9x10 ini menekankan pada penggunaan Reds minimalis yang difungsikan semaksimal mungkin. Jangan ragu untuk menambahkan pot dan juga tanaman hias ya.
11. Denah Desain Rumah 9x10 berikut ini bisa kamu jadikan sebagai inspirasi karena memiliki desain yang minimalis dan lengkap

12. Jika kamu ingin membangun rumah minimalis dengan 2 lantai, maka inspirasi Desain Rumah 9x10 2 Lantai berikut ini bisa kamu pertimbangkan

13. Inspirasi Desain Rumah 9x10 selanjutnya sudah berisi keterangan lengkap yang bisa kamu jadikan sebagai sumber refernsi untuk membangun rumah impian

14. Ide Desain Rumah 9x10 selanjutnya ini cocok untuk kamu yang mencari desain tampak depan rumah 2 lantai

15. Contoh Desain Rumah 9x10 berikut ini adalah contoh desain rumah dengan budget sekitar 250 jutaan

16. Desain Rumah 9x10 Terbaru ini memiliki 3 lantai yang tampak sangat mewah seperti layaknya sebuah resiort

17. Desain Rumah 9x10 Sederhana ini cocok untuk kamu yang ingin membangun rumah berukuran 9x10 dengan anggaran terbatas

18. Desain Rumah 9x10 Minimalis ini bisa dijadikan inspirasi untuk kamu yang hanya ingin membangun rumah dengan 1 lantai yang sederhana

19. Desain Rumah 9x10 2 Lantai Modern berikut ini tampak sangat elegan yang membuat semua orang yang melihatnya ingin membangun rumah seperti ini

20. Desain Rumah 9x10 Modern seperti ini apakah kamu tertarik? tapi kamu juga harus menyediakan budget yang cukup besar

21. Desain Rumah 9x10 dan Denah cocok untuk kamu yang belum memiliki gambaran desain tampak depan berserta dengan denahnya

22. Contoh Gambar Desain Rumah 9x10 berikut ini merupakan salah satu desain rumah yang dibuat yogie ervanata

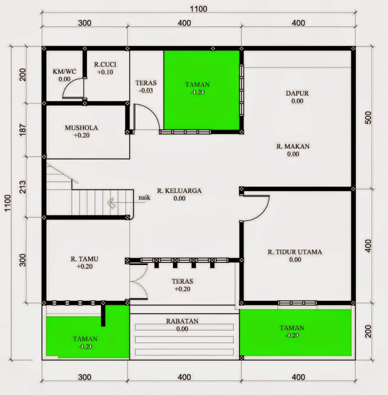
23. Sketsa Desain Rumah 9x10 ini sangat lengkap dengan adanya mushola dan ruang cuci di dalam rumah

24. Contoh Denah Desain Rumah 9x10 berikut ini juga cocok untuk kamu yang sedang mencari desain rumah dengan 3 kamar

25. Desain Rumah 9x10 3 Kamar Tidur lainnya yang dapat kamu contoh di bawah ini

26. Desain Rumah 9x10 Minimalis Terbaru menggunakan konsep rumah berbentuk kotak dengan tap datar

27. Contoh Desain Rumah 9x10 3 Kamar berikut ini memiliki 3 kamar tidur dengan halaman depan yang cukup luas untuk tempat parkir kendaraan dan taman depan rumah

28. Denah Desain Rumah 9x10 Terbaru ini juga sangat sederhana cocok untuk kamu yang ingin membangun rumah dengan ukuran minimalis

29. Desain Rumah 9x10 Tampak Depan ini juga sangat simple dan sederhana cocok untuk kamu yang ingin membuka praktek dokter atau bidan di rumah

30. Desain Rumah 9x10 1 Lantai Minimalis selanjutnya ini dengan tampak depan yang sangat menarik dan perpaduan cat rumah yang serasi

