Desain Rumah Sederhana dengan Biaya Murah - Memiliki hunian sederhana merupakan salah satu pilihan minimnya budget. Penggunaan dana yang sedikit dan bangunannya yang simple membuatnya bisa dibangun lebih cepat.
Selain itu, konsep rumah sederhana tidak melulu berbentuk persegi panjang atau persegi saja. Beberapa desain rumah sederhana ini bisa kamu jadikan contoh hunian nyaman dan aman.
1. Desain rumah sederhana lantai dua

Memiliki hunian luas bertingkat sering dijadikan sebagai simbol kekayaan dan kenyamanan. Namun, tidak semua orang memiliki prinsip demikian. Banyak yang lebih memilih rumah sederhana desain minimalis sebab biayanya murah.
Selain lebih terjangkau, desain rumah minimalis sangat bervariasi. Salah satunya yaitu desain rumah sederhana berlantai 2. Jika kebanyakan rumah sederhana berlantai satu, kamu bisa memperluas ruangnya menjadi 2 lantai.
Bangunan sederhana yang terdiri atas 2 lantai ini sangat cocok dijadikan hunian di perkotaan lahan sempit.
2. Desain Rumah super sederhana di lahan kecil

Desain sederhana ini terlihat sangat minimalis. Dibangun di atas lahan kecil, rumah sederhana ini hanya memiliki beberapa petak ubin teras.
Selain itu, tampilannya yang kecil menjadikan rumah ini murah. Cocok untuk dijadikan hunian keluarga kecil yang aman dan nyaman. Rumah ini dilengkapi oleh sebuah pintu yang senada dengan bingkai jendelanya.
Selain itu, bagian halamannya yang kecil bisa dijadikan sebagai lahan menjemur pakaian.
3. Desain rumah sederhana khas perumahan

Ingin memiliki rumah sederhana dengan tampilan desainnya yang kece tetap menjaga budget? Desain rumah sederhana biaya murah di atas sangat cocok dijadikan incaran.
Perpaduan warna abu, putih, orange dan hijaunya sangat menyejukan mata. Ada teras terbuka yang bisa dijadikan lahan parkir mobil atau motor.
4. Desain rumah sederhana di atas lahan luas

Desain rumah sederhana berbiaya murah tidak melulu menggunakan cat satu warna. Kamu bisa melirik desain di atas. Perpaduan warnanya yang elegan sangat cocok dengan lahan hijau di sekitarnya.
Desain rumah diatas memanfaatkan perpaduan corak batu bata sehingga terkesan lebih alami. Belum lagi pintunya yang menggunakan kayu asli membuat rumah ini sangat diminati.
5. Desain rumah Minimalis Garasi Terbuka

Kamu yang menginginkan desain rumah sederhana dengan biaya murah ternyata juga bisa menyematkan garasi di dalamnya. Seperti contoh rumah di atas. Garasi terbuka muat untuk penyimpanan mobil.
Pembatas bergaris dengan dinding bercorak batu menjadikan rumah ini terlihat lebih aesthetic. Lantainya yang terdiri atas satu menjadikan rumah ini terlihat sangat sederhana.
6. Rumah Sederhana Bergaya Mewah dan Modern

Salah satu bukti mengikuti perkembangan zaman juga bisa diterapkan pada bangunan rumah. Desain rumah sederhana kini sudah lengkap dengan serba-serbi pelengkapnya.
Seperti desain rumah sederhana bergaya modern di atas. Sentuhan garasi terlindungi pagar terlihat sangat elit dengan atap transparan dan dinding-dinding ala hunian elite di kawasan perumahan.
Tidak mahal-mahal, cukup siapkan dana 25 jutaan, ukuran rumah 6 x 10 cm ini bisa dijadikan hunian yang aman sekaligus nyaman.
7. Desain Rumah Sederhana yang Simple

Hunian yang sederhana dan simple seringkali dijadikan sebagai salah satu tempat tinggal keluarga kecil. Desain rumah sederhana bercat hijau matcha ini bisa dijadikan incaran.
Tampak super sederhana hanya dengan taman kecil yang terhubung ke teras depan serta kombinasi dinding bergaris horizontalnya. Jenis hunian ini memberikan kesan modern meski begitu simple.
8. Desain Rumah Kotak Sederhana Transparan

Desain rumah yang satu ini sangat terlihat sederhana. Mau dilihat dari manapun huniannya hanya terdiri atas satu ruangan transparan. Tanpa adanya teras, jenis rumah ini berdiri di atas lahan luas.
Terdapat dinding putih yang melindungi sisi samping dan belakang,s ementara bagian depannya yang dilindungi kaca bisa ditutup menggunakan tirai. Bangunan hunian sederhana ini hampir mirip dengan rumah kontainer.
9. Desain rumah Mungil super sederhana

Desain rumah yang satu ini juga termasuk dalam jenis rumah yang sederhana dan mungil. Sangat cocok dijadikan tempat tinggal keluarga kecil. Di samping itu, jenis hunian ini memiliki latar terbuka.
Bangunannya yang terbuat dari dinding batu bata menjadikannya tetap terasa sejuk meski di siang hari yang terik. Hal ini juga didukung oleh penggunaan genteng sebagai atapnya.
10. Desain rumah Sederhana Memanjang

Pemilik lahan mungil memang sangat cocok menempati hunian berbentuk memanjang. Seperti desain rumah sederhana yang terdiri atas 3 kamar tidur ini.
Pada bagian depannya tetap dilengkapi oleh teras. Masuk ke pintu depan akan menjumpai ruang tamu. Memanfaatkan ruang serba minimalis, desain rumah ini tetap menaruh ruang makan dan ruang kumpul keluarga.
Di samping itu, fasilitas sebuah dapur dan dua kamar mandi terbilang cukup mumpuni untuk rumah sederhana dengan konsep memanjang.
11. Jika kamu memiliki biaya terbatas untuk membangun rumah, mungkin kamu bisa membangun rumah dengan type 36 seperti ini dengan gaya minimalis

12. Konsep desain rumah sederhana dengan biaya murah lainnya, bisa kamu contoh seperti ini dengan memiliki taman mini dan area untuk parkir mobil dengan atas limas pada bangunan rumahnya

13. Atau jika kamu ingin merenovasi rumah di perumahan, mungkin konsep renovasi rumah yang murah seperti ini dengan menambah pagar depan rumah

14. Jika kamu ingin memiliki rumah dengan taman dan kolam mini di bagian depannya maka rumah sederhana ini cocok untuk dijadikan inspirasi

15. Desain Rumah Sederhana dengan Biaya Murah selanjutnya ini cocok untuk kamu yang ingin membangun rumah 2 lantai

16. Masih dengan desain rumah 2 lantai yang sederhana tapi enak dilihat, berikut ini adalah contoh rumah dengan biaya murah yang bisa dijadikan contoh untuk kamu yang tinggal di perumahan

17. Untuk kamu yang tinggal di desa, Desain Rumah Sederhana dengan Biaya Murah ini mungkin cocok untuk kamu buat

18. Dengan bangunan 2 lantai, dan memiliki garasi di dengan carport ini juga cukup menarik bukan?

19. Desain Rumah Sederhana dengan Biaya Murah ini sangat cocok untuk kamu yang baru ingin membangun rumah untuk keluarga kecil

20. Desain Rumah Sederhana dengan Biaya Murah ini menggunakan konsep atap miring, dengan nuansa yang natural dengan dinding material kayu dan batu alam

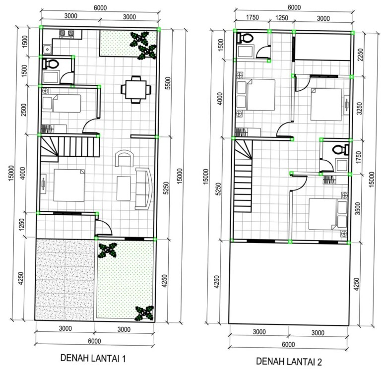
21. Jika kamu belum memiliki konsep denah rumah untuk membangun rumah impian yang sederhana, ini adalah contoh desain denah rumah simple

22. Lanjut lagi dengan contoh Desain Rumah Sederhana dengan Biaya Murah yang memiliki bangunan 2 lantai dan memiliki desain ornamen eksteror yang unik

23. Desain Rumah Sederhana dengan Biaya Murah ini cocok untuk kamu yang tinggal di perumahan dan memiliki rumah dengan type 36

24. Desain Rumah Sederhana dengan Biaya Murah ini sangat simple dengan atap datar dan bagian lantai 2 nya dibuat lebih terbuka, tidak ada carport rumah ini menggunakan garasi terbuka

25. Lanjut dengan contoh desain rumah sederhana dengan gaya desain rumah belanda yang klasik

26. Desain Rumah Sederhana dengan Biaya Murah ini cocok untuk kamu yang ingin rumah tampak modern tapi anggaran terbatas

27. Desain Rumah Sederhana dengan Biaya Murah menggunakan konsep rumah 2 lantai, ada carport dengan atap transparan dan atap rumah meggunakan gaya atap limas

28. Desain Rumah Sederhana dengan Biaya Murah selanjutnya masih dengan rumah 2 lantai yang dikelilingi pagar yang cukup tinggi, jadi rumah akan lebih aman

29. Konsep rumah dengan 2 lantai dan memiliki halaman yang luas untuk dijadikan taman bunga seperti ini tampak sangat asri

30. Terakhir ada Desain Rumah Sederhana dengan Biaya Murah dengan gaya scinadinavian

