Salah satu rumah minimalis yang disukai keluarga kecil adalah rumah ukuran 6x12. Rumah yang berukuran cukup mungil ini memang harus didesain dengan tepat. Desain rumah ukuran 6x12 ini harus didesain dengan cermat. Dengan demikian, hunian tersebut dapat lebih maksimal untuk ditinggali keluarga.
Membuat desain rumah menjadi langkah krusial karena bisa menggambarkan keseluruhan prosesnya. Hal ini berbeda ketika langsung membeli properti yang sudah jadi. Bagi yang sedang mencari referensi desain rumah 6x12, ulasan ini akan membantu.
1. Desain Rumah 6x12 Minimalis dan Modern

Dengan menerapkan konsep minimalis modern, pemilik bisa memilih desain yang satu ini. Mengingat konsep tersebut memang cukup fleksibel diterapkan di berbagai ukuran rumah. Desain di bawah ini memanfaatkan sedikit aksen kayu pada bagian fasad rumah. Pada bagian pintu utama dibuat simple dengan memperhatikan nilai fungsionalnya.
Rancangan di bawah ini juga terbilang sederhana. Terbatasnya lahan membuat pemiliknya harus memanfaatkan setiap area atau lahan sebaik mungkin. Pemilik bisa membuat tiga kamar tidur sehingga cukup efektif dihuni 4 anggota keluarga.
2. Desain Rumah 6x12 dengan 3 Kamar Tidur

Rumah berukuran 6x12 cocok untuk ditinggali keluarga, misalnya dengan dua orang anak. Pemilik tetap bisa menambahkan halaman atau teras sebagai tempat bersantai. Mengingat ukurannya yang tidak terlalu luas, umumnya rumah ukuran 6x12 tidak terlalu mahal. Tak heran jika rumah ini juga banyak menjadi pilihan bagi yang baru berkeluarga.
Desain di bawah ini memanfaatkan lahan dengan ukuran lebar 6 m dan panjangnya 12 m. Dengan total luas lahan 72 meter persegi, pemilik bisa menciptakan hunian yang nyaman untuk keluarga.
3. Desain Rumah Ukuran 6x12 dengan Aksen Batu Bata

Desain rumah ukuran 6x12 ini terbilang unik. Pada bagian fasad rumah, dindingnya memanfaatkan aksen batu bata merah. Pada dasarnya, desain rumah ini mementingkan koneksi antar ruang. Dengan demikian, setiap space di dalamnya bisa memiliki nilai fungsi yang baik. Harmoni antar ruangan yang tepat akan membuat rumah mungil pun menjadi hunian yang nyaman.
Contoh desain di bawah ini juga cocok sebagai rumah keluarga baru. Pemilik bisa membuat 2 atau 3 kamar tidur dengan ruangan-ruangan penting lainnya.
4. Desain Rumah 6x12 Dua Lantai

Membangun rumah dua lantai tidak selalu harus di area yang luas. Dengan ukuran lahan 72 meter persegi ini, kamu bisa membangun rumah dua lantai yang nyaman. Pada lantai 1, pemilik bisa membangun tiga kamar tidur beserta ruangan lainnya. Rumah dua lantai ini didesain dengan konsep minimalis sehingga cukup untuk satu keluarga.
Pada lantai bawah, bisa dibangun dua kamar tidur, ruang keluarga, ruang tamu, dapur, dan kamar mandi. Sementara itu, di lantai 2 bisa dibangun kamar tidur tambahan dan ruang bersantai.
5. Desain Rumah 6x12 Mewah dan Elegan

Desain rumah yang satu ini akan membuat kamu terpesona karena konsepnya yang elegan. Terdapat pintu utama yang didesain elegan dari material kaca. Balkon di lantai atas juga bisa menjadi tempat bersantai bersama keluarga.
6. Desain Rumah 6x12 Estetik

Mencari referensi sebelum membangun rumah merupakan hal yang penting dilakukan. Terlebih jika lahan yang dimiliki terbatas, pemilik harus cermat dalam mendesain hunian. Bagian interior rumah dengan lahan terbatas sebaiknya tidak dibuat kompleks. Ruang makan dan ruang tamu bisa disatukan sehingga menghubungkan dua ruang tidur.
Selain itu, pemilik juga bisa membuat area taman kecil di depan maupun belakang rumah. Taman tersebut bisa menjadi pemanis untuk hunian yang dimiliki. Kamar pada desain rumah ini dibuat tidak terlalu luas. Hal ini karena area sisanya perlu dibuat dapur mini.
7. Desain Rumah 6x12 Satu Lantai

Bagi yang memiliki budget terbatas, rumah 6x12 satu lantai bisa menjadi pilihan yang tepat. Contoh desain di bawah setidaknya memuat dua kamar tidur yang cukup luas. Selain itu, bagian teras atau halaman rumah juga cukup lega dan bisa dimanfaatkan untuk memarkir kendaraan pribadi.
8. Desain Rumah 6x12 Sederhana 2 Kamar

Desain rumah di bawah ini dibuat simple atau sederhana. Pada dasarnya, rumah 6x12 dengan dua kamar menjadi desain yang paling umum. Rumah bisa didesain memanjang seperti contoh di bawah ini. Jangan lupakan ruang penghubung yang diperlukan agar bisa dijadikan ruang serbaguna.
9. Desain Rumah 6x12 Memanjang

Salah satu trik agar rumah 6x12 bisa dibuat beberapa kamar adalah dengan cara didesain memanjang. Contohnya seperti desain di bawah ini yang memiliki nuansa putih dan elegan.
10. Desain Rumah 6x12 Elegan Mewah

Pemilik juga bisa menggunakan konsep desain rumah elegan dan mewah. Desain di bawah ini begitu memukau dengan gaya modern dan mewah. Tak heran jika hunian yang tidak terlalu luas ini akan terasa begitu nyaman bersama keluarga.
11. Contoh Desain Rumah Ukuran 6x12 berikutnya ini adalah contoh interior di dalamnya terutama untuk ruang tamu atau ruang keluarga

12. Gambar Desain Rumah Ukuran 6x12 sudah lengkap kamu bisa terinspirasi tampak depan rumah dan denahnya

13. Konsep Desain Rumah Ukuran 6x12 ni menggunakan konsep 2 lantai dengan balkon yang kecil

14. Sketsa Desain Rumah Ukuran 6x12 merupakan contoh denah rumah dengan konsep denah 3 dimensi yang memberikan gambaran bagaimana membangun rumah 1 lantai dengan 3 kamar tidur

15. Foto Desain Rumah Ukuran 6x12 ini adalah contoh konsep rumah 1 lantai dengan 2 kamar tidur yang simple

16. Gambaran Desain Rumah Ukuran 6x12 ini juga tidak kalah menarik dengan contoh denah 1 lantai lainnya

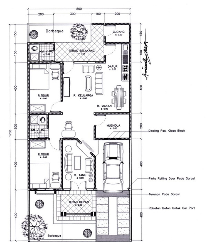
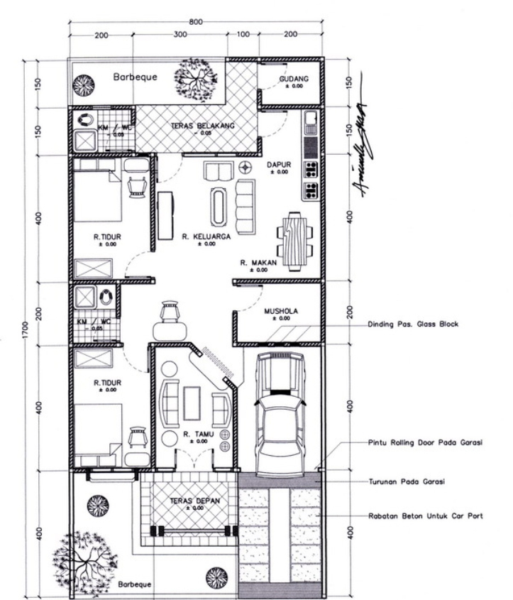
17. Arsitek Desain Rumah Ukuran 6x12 ini masih menggambarkan konsep denah rumah dengan 2 kamar tidur dan memiliki guadang dan mushola

18. Contoh Gambar Desain Rumah Ukuran 6x12 ini sangat lengkap karena kamu bisa melihat contoh denah rumahnya dari denah dan tampak depannya

19. Inspirasi Desain Rumah Ukuran 6x12 berikutnya cocok untuk kamu yang ingin membangun rumah dengan 1 lantia dan memiliki tampak depan yang elegan

20. Satu lagi contoh denah rumah untuk Ide Desain Rumah Ukuran 6x12 meter terbaru

21. Desain Rumah Ukuran 6x12 Minimalis Terbaru ini adalah contoh untuk kamu yang membutuhkan inspirasi interior di lantai 2

22. Desain Rumah Ukuran 6x12 Sederhana berikutnya ini cocok untuk kamu yang membutuhkan insprasi desain rumah dengan 3 kamar tidur, lengkap dengan 2 kamar mandi, ruang tamu, ruang makan, ruang keluarga dan dapur

23. Desain Rumah Ukuran 6x12 Modern berikutnya masih tentang conth denah rumah

24. Desain Rumah Ukuran 6x12 Modern dengan bangunan 3 lantainya yang tampak sangat mewah

25. Desain Rumah Ukuran 6x12 Modern Minimalis adalah inspirasi bagi kamu yang ingin membangun rumah dengan 3 kamar tidur

26. Desain Rumah Ukuran 6x12 Terbaru memiliki tampilan desain tampak depan yang simple, dan di dalamnya memiliki fasilitas lengkap termasuk mushola

27. Desain Rumah Ukuran 6x12 Simple berikutnya ini adalah cocok untuk kamu yang mencari ide dalam mendesain rumah 2 lantai

28. Desain Rumah Ukuran 6x12 Kekinian ini juga tidak kalah menarik karena rumah ini memiliki 3 kamar, ada ruang tamu, dapur, ruang keluarga dan tempat untuk cuci jemur pakaian

29. Desain Rumah Ukuran 6x12 Kekinian ini menggunakan konsep rumah modern dengan bentuk kotak-kotak

30. Terakhir ada contoh Desain Rumah Ukuran 6x12 Yang Simple

