Desain Rumah 6x15 - Saat ini kebutuhan akan tanah untuk dijadikan sebuah rumah atau hunian menjadi hal yang sangat mahal harganya, namun bila kita sudah memiliki sebidang tanah yang bisa kita gunakan untuk membangun rumah walau hanya rumah minimalis 6x15, mungkin beberapa ide denah tentang desain rumah 6x15 minimalis berikut ini bisa menjadi inspirasi anda untuk membangun sebuah hunian yang nyaman.
1. Desain Rumah 6x15 dengan taman depan dan belakang

Konsep desain yang satu ini lebih mempertimbangkan unsur area hijau yang luas, dimana area hijau ini bisa kita gunakan selain untuk menjemur pakaian, juga bisa digunakan untuk tempat bermain anak, dengan ruang dapur berada di luar dan tidak adanya ruang tamu membuat ruang utama ini sekaligus juga sebagai ruang tamu.
2. Desain Rumah 6x15 dengan ruang makan dan ruang tamu bersama

Konsep yang satu ini mengutamakan keluasan dari ruang tamu dan juga ruang makan, dimana ruang dapur masih berada di luar rumah dan memiliki 2 kamar tidur dengan kamar mandi berada di antara kamar tidur, konsep hijaunya taman juga masih diusung oleh design yang satu ini.
3. Desain Rumah 6x15 dengan ruang tamu sekaligus ruang utama dan dapur

Konsep yang ketiga ini mungkin agak jarang yang menggunakan, dikarenakan konsep ini mengatur ruang tamu, ruang dapur dan ruang utama menjadi satu, dimana taman belakang menjadi luas untuk penghijauan, dan pada saat kita membuka pintu utama masuk kedalam ruang tamu langsung kebelakang di taman belakang.
4. Desain Rumah 6x15 dengan ruang makan luar rumah

Untuk konsep yang satu ini, ketika kita membuka pintu utama dari area parker mobil kita akan langsung ke rung tamu yang sekaligus ruang keluarga, lurus terus kita akan menemui ruang makan yang berada di teras dan juga ruang dapur yang berada di luar rumah.
5. Desain Rumah 6x15 dengan kamar tidur sekaligus ruang keluarga

Konsep ini mengusung salah satu kamar menjadi ruang utama atau ruang keluarga, dimana nantinya ruang tamu juga akan ditambah dengan meja makan sebagai ruang makan keluarga, sedangkan untuk ruang dapur berada di luar dari rumah yang berada dekat dengan taman belakang.
6. Desain Rumah 6x15 dengan halaman depan luas

Konsep yang satu ini mengusung konsep dimana tempat parker mobil atau halaman depan terlihat luas dan juga tetap memiliki teras depan, sedangkan untuk kamar tidur terdapat dua buah ruang dan satu ruang tamu yang sekaligus sebagai ruang keluarga, sedangkan ruang dapur berada di luar rumah.
7. Desain Rumah 6x15 dengan kamar tidur luas

Konsep ini menjunjung konsep dua buah kamar tidur yang luas dengan adanya meja kerja di dalamnya, dan ruang tamu juga dijadikan ruang keluarga, selain itu juga ruang makan bersebelahan langsung dengan ruang tamu, dan untuk ruang dapur berada di luar rumah.
8. Desain Rumah 6x15 segaris

Dalam konsep ini ketika kita masuk dari pintu utama kita akan menemukan sebuah lorong ke belakang dimana adanya 3 buah makar tidur denga dua ruang sebelah kanan dan satu ruang sebelah kiri, pada ujung lorong terdapat ruang makan mungil dengan ruang dapur dalam satu ruangan.
9. Desain Rumah 6x15 dengan ruang langsung ke taman belakang

Dalam konsep ini, ketika kita masuk dari pintu utama kita bisa langsung melihat taman belakang rumah dan mendapati di ruang tamu tersebut selain sebagai ruang tamu juga sebagai ruang keluarga dan ruang makan, sedangkan untuk dapar berada di luar rumah dan juga disediakan teras yang berada di belakang rumah.
10. Desain Rumah 6x15 Lantai 2

Untuk rancangan Desain Rumah 6x15 selanjutnya ini merupakan contoh penempatan ruangan di lantai 2, jika kamu ingin membangun rumah dengan 2 lantai. Pada konsep desain rumah satu ini kamu bisa menambah 2 kamar tidur di lantai 2, terdapat ruang keluarga dan ruang santai, serta kamu bisa memiliki ruangan khusus menjemur pakaian dan juga balkon.
11. Desain Rumah 6x15 ini memiliki konsep 2 lantai yang nampak sangat modern dengan domunasi jendela kaca berukuran besar, rumah ini juga memiliki balkon di lantai 2 dan juga dindingnya menggunakan elemen batu alam agar terlihat natural

12. Desain Rumah 6x15 2 Lantai selanjutnya tidak kalah menarik, walaupun tidak terlalu terlihat mewah tapi desain rumah satu ini tamp[ak sangat elegan nan minimalis

13. Desain Rumah 6x15 2 Lantai Minimalis ini juga bisa menginspirasi kamu yang ingin membangun rumah impian dengan 2 lantai yang modern

14. Desain Rumah 6x15 Minimalis berikutnya ini sangat simple tapi tampak depannya tidak kalah menarik dengan desain diatas

15. Ini adalah salah satu Desain Rumah 6x15 Terbaik yang dapat kamu jadikan inspirasi dalam membangun rumah impian

16. Denah Desain Rumah 6x15 memiliki konsep rumah dengan 2 kamar tidur dan memiliki 2 taman depan dan belakang rumah

17. Gambar Denah Desain Rumah 6x15 yang selanjutnya ini sangat simple dan cocok untuk kamu yang memiliki anggaran membangun rumah yang terbatas

18. Ini adalah Contoh Desain Rumah 6x15 3 Kamar lengkap dari konsep denah dan desain tampak depan rumah

19. Denah Desain Rumah 6x15 2 Kamar Tidur selanjutnya ini memiliki desain yang simple dengan dapur berada di ruang terbuka di halaman belakang rumah

20. Contoh Desain Rumah 6x15 2 lantai ini sudah lengkap beserta inspirasi denah di dalam rumah

21. Pengen membangun rumah yang ada kolam renangnya? mungkin Desain Rumah 6x15 Ada Kolam Renang berikut ini bisa menginspirasi

22. Contoh Denah Desain Rumah 6x15 ini memiliki ukuran kecil dan cocok untuk konsep desain rumah untuk pasangan baru menikah atau memiliki 1 anak

23. Sketsa Desain Rumah 6x15 merupakan contoh konsep desain yang memanfaatkan seluruh lahan yang ada untuk dijadikan bangunan

24. Rancangan Desain Rumah 6x15 memiliki konsep bangunan yang minimalis dengan memiliki kelebihan tanah untuk taman dibagian belakang rumah yang cukup luas

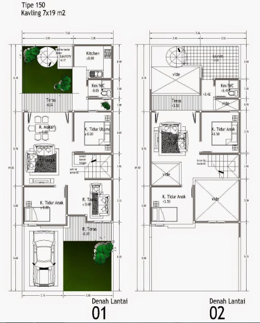
25. Desain Rumah 6x15 Tipe 150 juga tidak kalah menarik untuk kamu yang ingin membangun rumah dengan 4 kamar tidur dengan 2 lantai

26. Ingin membangun rumah dengan type 41? maka kamu wajib melihat Desain Rumah 6x15 Type 41 ini

27. Desain Rumah 6x15 Lantai 1 satu ini memiliki konsep yang cocok untuk dijadikan sebuah rumah kontrakan

28. Desain Rumah 6x15 Tampak Depan terlihat cukup mewah dan modern, apakah kamu tertarik?

29. Desain Rumah 6x15 Mewah berikut ini memiliki nuansa tampak depan yang gelap karena didominasi warna abu-abu dan hitam

30. Desain Rumah 6x15 Sederhana terakhir ini cocok untuk kamu yang ingin membangun rumah berukuran kecil tapi memiliki 3 kamar tidur

