Desain rumah 8x8 – Salah satu aspek yang penting kita perhatikan ketika membangun hunian adalah space rumah yang kita gunakan. Rumah seharusnya dibuat sedemikian rupa agar tidak hanya nyaman digunakan akan tetapi sesuai dengan kapasitas ruangan yang ada. Salah satu cara yang bisa kita lakukan adalah membuat rumah sesuai dengan banyaknya anggota keluarga. Untuk rekomendasi pertama kami akan memberikan desain rumah 8x8 meter dengan desain yang modern dan minimalis berserta dengan contoh denah rumahnya.
1. Arsitektur Rumah Ukuran 8x8 dengan 2 Lantai

Pada gambar yang pertama, kita bisa memadukan garasi menjorok ke dalam ruangan sehingga membentuk space yang agak luas. Rumah dengan model yang satu ini memang terlihat sempit. Akan tetapi jika kita buat agak tingkat, maka rumah akan terlihat lebih luas. Coba perhatikan pada lantai dua, ukurannya memang jauh lebih kecil tapi mampu melengkapi lantai yang bawah.
2. Desain Rumah Atap Tumpang Tindih

Rumah ini dibuat dengan memanfaatkan akses space pada bagian atapnya. Pada bagian atas kita bisa melihat ada model timpang tidih yang sangat apik. Dengan salah satu sisinya dibuat lebih bervolume. Membagi ruangan menjadi dua bagian merupakan solusi yang cocok untuk membuat model rumah 8x8 persegi.
3. Desain Rumah Lurus Tingkat

Desain rumah ini memiliki keunikan tersendiri dimana dengan memanfaatkan space yang lebih kecil, namun kita tetap memberikan ruangan yang banyak. Caranya adalah dengan membuat bangunan tingkat walaupun tanah yang digunakan sedikit.
4. Desain Rumah Tingkat 8x8 perpaduan balkon

Konsep rumah modern bisa digunakan dalam model yang satu ini. Pasalnya warna yang digunakan cukup warm disertai dengan beberapa aksen arsitektur yang digarap apik. Pada bagian tingkatnya kita bisa melihat ada balkon yang dibuat di dalam ruangan dan tidak menjorok ke luar. Ini sangat hemat space.
5. Desain Rumah 8x8 2 Lantai dengan 1 Kamar Tidur

Desain rumah 8x8 kali ini mengusung konsep yaitu satu kamar tidur. Ini sangat cocok dibangun untuk para single yang belum memiliki keluarga sendiri tetapi tetap mengonsep rumah mewah.
6. Desain Rumah Atap Lebar

Kali Ini konsep yang digunakan sangat unik dimana atap dibuat melebar ke samping. Maksud dari melebar ke samping ini untuk memberikan kesan yang timbul tetapi tetap memperhatikan ukuran dari bangunan.
7. Desain Rumah Modern Persegi

Desain rumah 8x8 kali ini mengusung konsep modern. Salah satu yang membuat modern adalah pemilihan model dan pengaplikasian warna yang dipilih.
8. Desain Rumah Memanjang

Desain rumah 8x8 kali ini dibuat memanjang. Akan tetapi model tanah yang dipakai tetap 8x8. Dengan membuat rumah model begini maka bisa diseuaikan dengan kebutuhan karena bentuknya yang fleksibel. Kita bisa memodifikasinya dengan menerapkan mengatur kamar tidur dan ruang tengah seluas mungkin.
9. Desain Rumah Klasik

Selanjutnya ada model rumah yang mengusung konsep klasik. Konsep klasik ini dipilih karena aksen warnanya yang putih dan sangat estetik.
10. Desain Rumah Jepang

Desain rumah 8x8 ini mengambil konsep Jepang. Hal ini terlihat pada bangunannya yang memiliki arsitektur mirip dengan rumah di negara sakura tersebut. Akan tetapi lebih dikonsep secara modern. Dengan begitu bisa disesuaikan dengan kebutuhan yang ada. Jika berminat jangan lupa untuk menambah perabotan bertema Jepang.
11. Desain Rumah 8x8 ini adalah contoh desain rumah yang diambil dari sebuah buku tentang desain rumah yang memiliki konsep desain dengan 2 kamar tidur dengan 2 lantai

12. Desain Rumah 8x8 Sederhana selanjutnya ini juga tidak kalah menarik karena memiliki desain yang simple tapi tetap memiliki ruangan yang lengkap untuk sebuah rumah tempat tinggal

13. Desain Rumah 8x8 2 Lantai ini juga menarik, karena kamu bisa mendapatkan gambaran sebuah konsep desain rumah dengan 4 kamar tidur dengan 2 lantai

14. Jika kamu tidak bisa menggunakan software desain rumah, kamu bisa membuat Sketsa Desain Rumah 8x8 2 Lantai seperti ini saat ingin membangun rumah

15. Desain Rumah 8x8 Minimalis berikut ini memiliki konsep dengan 3 kamar tidur dan interior yang serba modern dan minimalis

16. Selain mempertimbangkan interior kamu juga bisa mendapatkan inspirasi eksterior dari Desain Rumah 8x8 Tampak Depan berikut

17. Desain Rumah 8x8 Tingkat 2 satu ini di lantai 1 terdapat 1 kamar, dan di lantai 2 kamu bisa memiliki 3 kamar tidur dengan salah satu kamar memiliki view balkon

18. Ini adalah salah satu rancangan Desain Rumah 8x8 Anti Banjir dan Gempa yang bisa kamu contoh

19. Ingin membangun rumah yang simple dan minimalis, mungkin contoh Desain Rumah 8x8 2 Kamar Tidur ini cocok untuk dijadikan inspirasi

20. Untuk mempertajam imajinasimu dalam mendesain rumah, kamu bisa melihat-lihat salah satu Desain Rumah 8x8 3D terbaik

21. Selain contoh desain denah dan interior 3D diatas, kamu juga bisa mendapatkan inspirasi dari Desain Rumah 8x8 Minimalis Modern

22. Contoh Denah Desain Rumah 8x8 ini memiliki halaman yang luas untuk dijadikan taman yang asri

23. Desain Rumah 8x8 Simple untuk rumah 2 lantai bisa kamu dapatkan inspirasinya pada konsep desain berikut

24. Desain Rumah 8x8 Terbaru ini juga memiliki konsep minimalis dengan 2 kamar tidur

25. Denah Desain Rumah 8x8 ini memiliki sketsa dengan konsep 2 lantai, pada lantai 1 terdapat 1 kamar dan di lantai 2 juga terdapat 2 kamar

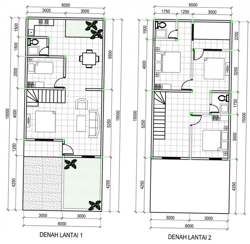
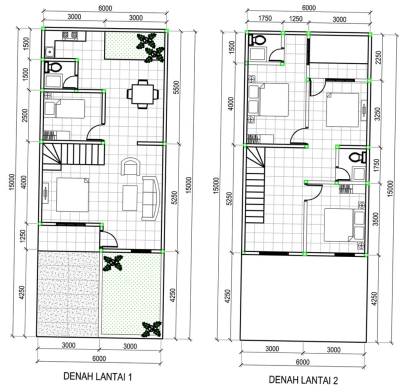
26. Rancangan Desain Rumah 8x8 berikut ini memiliki konsep dengan ruang hijau di halaman depan dan belakang, memiliki garasi mobil dan motor serta terdapat 3 kamar tidur

27. Apakah kamu tertarik dengan Desain Rumah 8x8 Minimalis Sederhana ini?

28. Gambar Desain Rumah 8x8 berikut ini cocok untuk kamu yang suka dengan desain tampak depan yang simple dan klasik

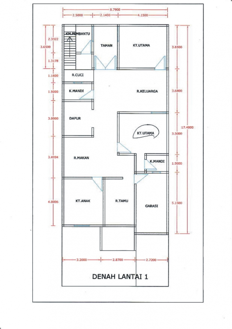
29. Denah Desain Rumah 8x8 Minimalis di desain untuk dibuat menjadi 4 kamar tidur, termasuk kamar tidur untuk pembantu

30. Ingin tampak depan rumah bernuansa modern, mmaka kamu bisa menerapkan Desain Rumah 8x8 Modern Minimalis berikut ini

Itulah beberapa desain rumah 8x8 yang bisa kamu jadikan referensi dalam membangun rumah impian dengan ukuran tanah 8 x 8 meter dengan desain yang modern dan minimalis.
